
Front Street, Brampton, CA8
- PROPERTY TYPE
Cafe
- SIZE
753 sq ft
70 sq m
Key features
- Three storey premises currently used as a cafe and bistro
- Popular market town centre location
- Currently let on a rolling monthly agreement
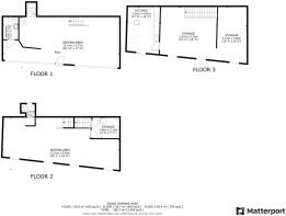
- Kitchen and serving area on ground floor and seating area on second floor
- Kitchen on second floor and two further rooms currently used for storage
- Ideal investment property
Description
Ideal investment opportunity.
A traditional three storey building located in the centre of the popular market town of Brampton, currently operated as a cafe/bistro and is located within the Brampton Conservation Area.
The property is entered from Front Street and the ground floor has a seating area, serving counter with kitchen behind and a w/c. The second floor has a large seating area, w/c and a storage room. The third floor is currently unused and used for storage in two rooms and a kitchen is installed in the third room.
The property is constructed of rendered masonry with a slate clad roof. The full length of the ground floor is glazed with a central access door. Windows to the first and second floor are timber framed.
The premises are currently let on a rolling monthly licence.
Location
Brampton is a popular town with locals and tourists alike. It is located off the A69 around 9 miles east of Carlisle. The property is located in the centre of Brampton, occupying a dominant position in the town.
General Remarks & Stipulations
Tenure and Possession: The Freehold title is offered for sale (Title Number CU267127).
Matters of Title: The property is sold subject to all existing servitude rights, burdens, reservations and wayleaves, including rights of access and rights of way whether contained in the Title Deeds or informally constituted and whether referred to in the General Remarks and Stipulations or not. The Purchaser(s) will be held to have satisfied themselves as to the nature of such servitude rights and others.
Fixtures and Fittings: All standard fixtures and fittings are to be included in the sale.
Planning: The property is situated in a Conservation Area.
Broadband: Standard broadband is assumed to be available and there is good mobile coverage available.
Services: Mr Browns is serviced by mains water supply, mains electricity, mains drainage and electric heating.
Viewings: Strictly by appointment through the sole selling agents, C&D Rural. Tel .
Rateable Value: Following enquiry to the Valuation Office Agency website we understand the Rateable Value is £9,100 with the payable liability being £4,540 (at a rate of £0.499 in the pound).
EPC Rating - E
Offers: Offers should be submitted to the selling agents. The owner reserves the right to sell without imposing a closing date and will not be bound to accept the highest, or indeed any, offer. All genuinely interested parties are advised to instruct their solicitor to note their interest with the Selling Agents immediately after inspection.
Money Laundering Obligations: In accordance with the Money Laundering Regulations 2017 the selling agents are required to verify the identity of the purchaser at the time an offer is accepted. All offers to purchase a property on a cash basis or subject to mortgage require evidence of source of funds.
Local Authority: Cumberland Council, Civic Centre, Rickergate, Carlisle, CA3 8QG. Tel.: .
Website and Social Media: Further details of this property as well as all others offered by C&D Rural are available to view on our website updates and the latest properties like us on facebook.com/cdrural and Instagram on @cdrural.
Referrals: C&D Rural work with preferred providers for the delivery of certain services necessary for a house sale or purchase. Our providers price their products competitively, however you are under no obligation to use their services and may wish to compare them against other providers. Should you choose to utilise them C&D Rural will receive a referral fee: Fisher Financial Associates– arrangement of mortgage & other products/insurances; C&D Rural will receive a referral fee of £50 per mortgage referral. Figures quoted are inclusive of VAT.
Front Street, Brampton, CA8
NEAREST STATIONS
Distances are straight line measurements from the centre of the postcode- Brampton (Cumbria) Station1.4 miles
- Wetheral Station5.6 miles
Notes
Disclaimer - Property reference 84d8ef03-86b9-4606-ba0b-85988f89e13b. The information displayed about this property comprises a property advertisement. Rightmove.co.uk makes no warranty as to the accuracy or completeness of the advertisement or any linked or associated information, and Rightmove has no control over the content. This property advertisement does not constitute property particulars. The information is provided and maintained by C & D Rural, Carlisle. Please contact the selling agent or developer directly to obtain any information which may be available under the terms of The Energy Performance of Buildings (Certificates and Inspections) (England and Wales) Regulations 2007 or the Home Report if in relation to a residential property in Scotland.
Map data ©OpenStreetMap contributors.









