
Brookfield Mill Butchers Lane, Aughton, Ormskirk, Lancashire, L39 6SY

- PROPERTY TYPE
Barn Conversion
- BEDROOMS
4
- BATHROOMS
5
- SIZE
Ask agent
- TENUREDescribes how you own a property. There are different types of tenure - freehold, leasehold, and commonhold.Read more about tenure in our glossary page.
Freehold
Key features
- STUNNING BARN CONVERSION
- KITCHEN/DINER
- CINEMA ROOM
- UTILTY KITCHEN ROOM & DOWNSTAIRS CLOAKROOM
- LOUNGE
- MASTER BEDROOM WITH DRESSING ROOM AND WALK IN WARDOBE
- GARDEN FRONT & REAR
- THREE FURTHER BEDROOMS WITH EN-SUITES
- POPULAR RESIDENTIAL LOCATION
Description
SUMMARY
Nestled on Butchers Lane in the sought-after village of Aughton, this exceptional four-bedroom semi-detached barn conversion is a true masterpiece, set within an expansive plot. The property’s impressive façade, complemented by striking glass elements, hints at the sophisticated interiors that await. A generous driveway welcomes you, leading to this prestigious residence that effortlessly combines character with contemporary luxury.
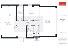
GROUND FLOOR :-
Upon entering, you are greeted by a breath-taking double-height entrance hall that bathes in natural light, showcasing the exquisite finishes and bespoke craftsmanship found throughout the home. At the heart of the property lies the state-of-the-art kitchen/diner, a true culinary masterpiece, complete with marble countertops, premium integrated appliances including a Smeg 900mm double oven, microwave, warming drawer, large fridge, separate freezer, and an inset 1 & 1.5 sink unit with 4 in 1 boiler water & filter tap. The large kitchen island with seating offers an ideal space for both casual dining and entertaining. The open-plan layout provides the perfect setting for modern living, and an adjacent utility room adds both practicality and style, featuring a matching fitted kitchen, integrated induction hob, stainless steel extractor, Smeg oven, and ample space for laundry appliances.
Entertainment is a key feature of this home, with a dedicated cinema room as well as a cosy lounge area with bifold doors that seamlessly lead out into a patio area. The lounge also benefits from panelled walls, TV point, and recessed ceiling spotlights. A downstairs cloakroom, with WC, hand washbasin in a vanity unit, part-tiled walls, and tiled flooring, completes the ground floor.
FIRST FLOOR :-
A stunning glass-walled staircase leads you to the first floor, where a spacious landing area offers tranquil views of the garden through the large windows. Each of the four bedrooms provides a sumptuous retreat, with spacious layouts and opulent en-suite bathrooms featuring premium fixtures and finishes, transforming each room into a private sanctuary. The master suite is particularly impressive, boasting a dressing area and walk-in wardrobe, en-suite comprising large shower, bath with shower attachment and built in TV, his and hers sinks in a vanity unit, WC, ladder radiator, ceiling spotlights, part tiled walls and tiled flooring, making it the ultimate place to unwind.
This home has been meticulously crafted with high-end finishes throughout, creating a seamless flow of space and light that redefines luxury living.
OUTSIDE :-
The property also boasts an unusually large garden, offering ample space for relaxation, entertaining, or simply enjoying the peaceful surroundings. Whether hosting gatherings or spending quality family time, the outdoor space provides the perfect setting for all occasions.
A rare opportunity to acquire one of Aughton’s finest residences, this property is a true reflection of prestige, comfort, and sophistication. With its exceptional design, outstanding craftsmanship, and an unbeatable location, this barn conversion offers an unparalleled standard of living.
OPEN PLAN KITCHEN DINING AREA - 10.52m x 4.75m (34'6" x 15'7")
CINEMA ROOM - 5m x 4.72m (16'5" x 15'6")
UTILITY KITCHEN - 4.98m x 2.29m (16'4" x 7'6")
LOUNGE - 9.45m x 5.28m (31'0" x 17'4")
CLOAKROOM - 1.91m x 1.88m (6'3" x 6'2")
STORAGE ROOM - 3.89m x 0.99m (12'9" x 3'3")
FIRST FLOOR
MASTER BEDROOM - 3.94m x 5.44m (12'11" x 17'10")
DRESSING ROOM - 2.11m x 1.8m (6'11" x 5'11")
VANITY ROOM - 5.41m x 1.45m (17'9" x 4'9")
ENSUITE - 3.71m x 1.91m (12'2" x 6'3")
BEDROOM 2 - 4.95m x 3.28m (16'3" x 10'9")
ENSUITE - 2.82m x 1.6m (9'3" x 5'3")
BEDROOM 3 - 4.9m x 3.4m (16'1" x 11'2")
ENSUITE - 1.5m x 1.52m (4'11" x 5'0")
BEDROOM 4 - 3.4m x 3.25m (11'2" x 10'8")
ENSUITE - 1.52m x 1.5m (5'0" x 4'11")
OUTSIDE
ADDITIONAL INFORMATION
LOCAL AUTHORITY
West Lancashire Borough Council, Council Tax - Band F.
BROADBAND
ENERGY PERFORMANCE RATING
SERVICES(NOT TESTED)
TENURE
VIEWINGS
Brochures
Brochure 1- COUNCIL TAXA payment made to your local authority in order to pay for local services like schools, libraries, and refuse collection. The amount you pay depends on the value of the property.Read more about council Tax in our glossary page.
- Band: F
- PARKINGDetails of how and where vehicles can be parked, and any associated costs.Read more about parking in our glossary page.
- Driveway
- GARDENA property has access to an outdoor space, which could be private or shared.
- Private garden
- ACCESSIBILITYHow a property has been adapted to meet the needs of vulnerable or disabled individuals.Read more about accessibility in our glossary page.
- Ask agent
Brookfield Mill Butchers Lane, Aughton, Ormskirk, Lancashire, L39 6SY
Add an important place to see how long it'd take to get there from our property listings.
__mins driving to your place
Get an instant, personalised result:
- Show sellers you’re serious
- Secure viewings faster with agents
- No impact on your credit score
Your mortgage
Notes
Staying secure when looking for property
Ensure you're up to date with our latest advice on how to avoid fraud or scams when looking for property online.
Visit our security centre to find out moreDisclaimer - Property reference S1386345. The information displayed about this property comprises a property advertisement. Rightmove.co.uk makes no warranty as to the accuracy or completeness of the advertisement or any linked or associated information, and Rightmove has no control over the content. This property advertisement does not constitute property particulars. The information is provided and maintained by Ian Anthony Estates, Ormskirk. Please contact the selling agent or developer directly to obtain any information which may be available under the terms of The Energy Performance of Buildings (Certificates and Inspections) (England and Wales) Regulations 2007 or the Home Report if in relation to a residential property in Scotland.
*This is the average speed from the provider with the fastest broadband package available at this postcode. The average speed displayed is based on the download speeds of at least 50% of customers at peak time (8pm to 10pm). Fibre/cable services at the postcode are subject to availability and may differ between properties within a postcode. Speeds can be affected by a range of technical and environmental factors. The speed at the property may be lower than that listed above. You can check the estimated speed and confirm availability to a property prior to purchasing on the broadband provider's website. Providers may increase charges. The information is provided and maintained by Decision Technologies Limited. **This is indicative only and based on a 2-person household with multiple devices and simultaneous usage. Broadband performance is affected by multiple factors including number of occupants and devices, simultaneous usage, router range etc. For more information speak to your broadband provider.
Map data ©OpenStreetMap contributors.







