
Arthurs Lane, Hambleton, FY6 9AT

- PROPERTY TYPE
Semi-Detached
- BEDROOMS
3
- BATHROOMS
3
- SIZE
807 sq ft
75 sq m
Key features
- Shared Ownership - 10% to 75%
- RENT TO BUY ALSO AVAILABLE
- Semi rural location
- En-suite to main bedroom
- Front and rear Gardens
- Driveway
Description
The ground floor boasts a living room to one side of the central hall and a kitchen diner to the other with French doors leading our to the garden. The ground floor accommodation is complimented by a useful WC/Cloaks.
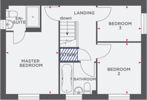
The first floor is home to an impressive main bedroom with en-suite shower room. A family bathroom and two further bedrooms complete the first floor - one of which could easily double up as a home office or even dressing room.
Externally the property enjoys a fenced and turfed rear garden, driveway or parking bay and further benefits from double glazing and gas central heating throughout.
Living Room - 16'3 x 12'9
Kitchen/Diner - 16'6 x 11'1
Bedroom 1 - 16'3 (max) x 9'7
Bedroom 2 - 9'0 x 7'7
Bedroom 3 - 7'7 x 7'1
*Please note that the price advertised is reflective of a 40% share and rent is payable to One Vision Housing on the unowned share. Additional shares are available from 10% to 75% and full ownership of 100% is available in the future through "Staircasing".*
**The price and figures advertised are based on the valuation available to us at the point of marketing, these may vary at the point of release - please speak to a member of the Sales and Home Ownership team for further confirmation.**
***Please also note that any images and measurements are for illustrative purposes only.***
****The estimated monthly rent based on the remaining 60% would be approx £288.75 per month - other monthly costs will include Estate and Buildings Insurance payments - please check with one of our Sales and Home Ownership Advisors for further details****
This property is also available as Rent to Buy from £780.00 pcm.
- COUNCIL TAXA payment made to your local authority in order to pay for local services like schools, libraries, and refuse collection. The amount you pay depends on the value of the property.Read more about council Tax in our glossary page.
- Ask developer
- PARKINGDetails of how and where vehicles can be parked, and any associated costs.Read more about parking in our glossary page.
- Driveway,Off street,Allocated
- GARDENA property has access to an outdoor space, which could be private or shared.
- Enclosed garden,Rear garden,Back garden
- ACCESSIBILITYHow a property has been adapted to meet the needs of vulnerable or disabled individuals.Read more about accessibility in our glossary page.
- Ask developer
Energy performance certificate - ask developer
Arthurs Lane, Hambleton, FY6 9AT
Add an important place to see how long it'd take to get there from our property listings.
__mins driving to your place
Get an instant, personalised result:
- Show sellers you’re serious
- Secure viewings faster with agents
- No impact on your credit score
About One Vision Housing
One Vision Housing is an award winning housing provider, with 13,000 homes for rent in Merseyside, primarily across the borough of Sefton.
We are committed to creating sustainable neighbourhoods; thriving, well run, active, inclusive and most importantly, safe places to live. Places that people are proud of and want to live in.
Your mortgage
Notes
Staying secure when looking for property
Ensure you're up to date with our latest advice on how to avoid fraud or scams when looking for property online.
Visit our security centre to find out moreDisclaimer - Property reference claydon40. The information displayed about this property comprises a property advertisement. Rightmove.co.uk makes no warranty as to the accuracy or completeness of the advertisement or any linked or associated information, and Rightmove has no control over the content. This property advertisement does not constitute property particulars. The information is provided and maintained by One Vision Housing. Please contact the selling agent or developer directly to obtain any information which may be available under the terms of The Energy Performance of Buildings (Certificates and Inspections) (England and Wales) Regulations 2007 or the Home Report if in relation to a residential property in Scotland.
*This is the average speed from the provider with the fastest broadband package available at this postcode. The average speed displayed is based on the download speeds of at least 50% of customers at peak time (8pm to 10pm). Fibre/cable services at the postcode are subject to availability and may differ between properties within a postcode. Speeds can be affected by a range of technical and environmental factors. The speed at the property may be lower than that listed above. You can check the estimated speed and confirm availability to a property prior to purchasing on the broadband provider's website. Providers may increase charges. The information is provided and maintained by Decision Technologies Limited. **This is indicative only and based on a 2-person household with multiple devices and simultaneous usage. Broadband performance is affected by multiple factors including number of occupants and devices, simultaneous usage, router range etc. For more information speak to your broadband provider.
Map data ©OpenStreetMap contributors.






