
Plot for sale
Harley Way, St. Leonards-On-Sea
- PROPERTY TYPE
Plot
- SIZE
Ask agent
Key features
- Investment Opportunity
- Panning Ref: HS/DS/21/00929.
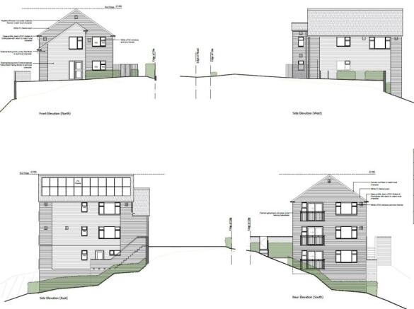
- Construction of a Detached Building
- 3x Two Bedroom Flats
Description
PCM Estate Agents present to the market this opportunity to acquire a DEVELOPMENT OPPORTUNITY to construct a DETACHED BUILDING comprising of 3X TWO BEDROOM FLATS. More information can be found under Planning Ref: HS/DS/21/00929.
Positioned on this sought-after cul-de-sac in West St Leonards, close to a vast range of amenities, the seafront and promenade.
Note: - We have been advised of the following by the vendor:
•Outline Planning permission no. HS/OA/18/00726, obtained on 13/08/2018, permits the erection of four two-bedroom flats.
•Initially, the Reserved Matters application reference no. HS/DS/21/00929, to build three numbers of two-bedroom flats, was refused on 19/01/2023.
•However, the Appeal reference no. APP/B1415/W/23/3326196, which had been registered, was granted on 23/08/2024, allowing the construction of three two-bedroom flats for four persons.
•All relevant pre-build conditions have been discharged under application numbers HS/CD/24/00664 and HS/CD/24/00740 by 11/11/2024.
•From November 2024 according to the above-mentioned references of the appeal, planning permission, and discharged conditions, 14-16 Harley Way is ready to commence construction.
Brochures
Harley Way, St. Leonards-On-SeaBrochureHarley Way, St. Leonards-On-Sea
NEAREST STATIONS
Distances are straight line measurements from the centre of the postcode- West St. Leonards Station0.5 miles
- St Leonards Warrior Square Station1.5 miles
- Hastings Station2.1 miles
Notes
Disclaimer - Property reference 34035735. The information displayed about this property comprises a property advertisement. Rightmove.co.uk makes no warranty as to the accuracy or completeness of the advertisement or any linked or associated information, and Rightmove has no control over the content. This property advertisement does not constitute property particulars. The information is provided and maintained by PCM Estate Agents, Hastings. Please contact the selling agent or developer directly to obtain any information which may be available under the terms of The Energy Performance of Buildings (Certificates and Inspections) (England and Wales) Regulations 2007 or the Home Report if in relation to a residential property in Scotland.
Map data ©OpenStreetMap contributors.






