Edison Way, Arnold

- PROPERTY TYPE
Town House
- BEDROOMS
3
- BATHROOMS
2
- SIZE
Ask agent
- TENUREDescribes how you own a property. There are different types of tenure - freehold, leasehold, and commonhold.Read more about tenure in our glossary page.
Freehold
Key features
- Three Bedroom Town House
- Deceptively Spacious Interior
- Large Master Suite With Dressing Area & En-Suite
- Second Double Bedroom With Juliet Balcony
- Lounge With French Doors To Rear Garden
- South Facing, Low Maintenance Rear Garden
- Off Road Parking
- Popular Location
Description
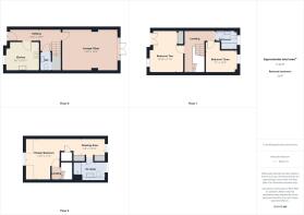
HALLWAY 16' 9" x 3' 10" (5.11m x 1.17m) Accessed via an external door with wooden flooring, wall mounted radiator, stairs rising to the first floor and two ceiling lights.
KITCHEN 10' 11" x 9' 6" (3.33m x 2.9m) With a range of fitted high and low level units with a rolled edge worktop over incorporating a one and half bowl stainless steel sink and drainer, splash back tiling, integrated electric oven, inset gas hob with extractor hood over, washing machine plumbing, tiled flooring, wall mounted radiator, uPVC double glazed window to the front elevation and fitted ceiling spotlights.
CLOAKROOM With a low flush w.c., pedestal wash hand basin, wood effect vinyl flooring, under stairs storage area, wall mounted radiator and ceiling light.
LOUNGE/DINER 18' 3" x 13' 8" (5.56m x 4.17m) With a fitted carpet, uPVC double glazed windows and French Doors to the rear garden, fire and surround, two wall mounted radiators and fitted ceiling spotlights.
FIRST FLOOR LANDING With a fitted carpet, wall mounted radiator, stairs rising to the second floor and ceiling light.
BEDROOM TWO 13' 10" x 11' 2" (4.22m x 3.4m) With a fitted carpet, uPVC double glazed window and Juliet balcony to the front elevation, fitted wardrobe, wall mounted radiator and ceiling light.
BEDROOM THREE 10' 7" x 7' 1" (3.23m x 2.16m) With a fitted carpet, uPVC double glazed window to the rear elevation, wall mounted radiator and ceiling light.
BATHROOM Comprising of a panelled bath with a mains fed mixer bar shower over, low flush w.c. pedestal wash hand basin, floor and part wall tiling, wall mounted radiator, opaque uPVC double glazed window to the rear elevation and fitted ceiling spotlights.
SECOND FLOOR LANDING With fitted carpet and ceiling light.
MASTER BEDROOM 13' 9" x 11' 3" (4.19m x 3.43m) With a fitted carpet, uPVC double glazed window to the front elevation, wall mounted radiator and ceiling light.
DRESSING AREA 14' 10" x 5' 5" (4.52m x 1.65m) Situated just off the main bedroom area the dressing (which could also be utilised as a study/work from home space) has a fitted carpet, fitted wardrobes, airing cupboard, uPVC double glazed window to the rear elevation, wall mounted radiator, loft hatch and ceiling light.
EN-SUITE Comprising of a double wide walk in shower enclosure with a mains fed mixer bar shower, low flush w.c., pedestal wash hand basin, floor and part wall tiling, wall mounted radiator, opaque uPVC double glazed window to the rear elevation and fitted ceiling spotlights.
EXTERNAL The property enjoys an enclosed, south facing rear garden with a paved patio area, gravelled beds, fenced boundary and gate access. To the front is a gravelled garden with railed boundary and off road parking.
Brochures
Sales Brochure - ...- COUNCIL TAXA payment made to your local authority in order to pay for local services like schools, libraries, and refuse collection. The amount you pay depends on the value of the property.Read more about council Tax in our glossary page.
- Band: C
- PARKINGDetails of how and where vehicles can be parked, and any associated costs.Read more about parking in our glossary page.
- Allocated
- GARDENA property has access to an outdoor space, which could be private or shared.
- Yes
- ACCESSIBILITYHow a property has been adapted to meet the needs of vulnerable or disabled individuals.Read more about accessibility in our glossary page.
- Ask agent
Edison Way, Arnold
Add an important place to see how long it'd take to get there from our property listings.
__mins driving to your place
Get an instant, personalised result:
- Show sellers you’re serious
- Secure viewings faster with agents
- No impact on your credit score
Your mortgage
Notes
Staying secure when looking for property
Ensure you're up to date with our latest advice on how to avoid fraud or scams when looking for property online.
Visit our security centre to find out moreDisclaimer - Property reference 100658010039. The information displayed about this property comprises a property advertisement. Rightmove.co.uk makes no warranty as to the accuracy or completeness of the advertisement or any linked or associated information, and Rightmove has no control over the content. This property advertisement does not constitute property particulars. The information is provided and maintained by Martin & Co, Hucknall. Please contact the selling agent or developer directly to obtain any information which may be available under the terms of The Energy Performance of Buildings (Certificates and Inspections) (England and Wales) Regulations 2007 or the Home Report if in relation to a residential property in Scotland.
*This is the average speed from the provider with the fastest broadband package available at this postcode. The average speed displayed is based on the download speeds of at least 50% of customers at peak time (8pm to 10pm). Fibre/cable services at the postcode are subject to availability and may differ between properties within a postcode. Speeds can be affected by a range of technical and environmental factors. The speed at the property may be lower than that listed above. You can check the estimated speed and confirm availability to a property prior to purchasing on the broadband provider's website. Providers may increase charges. The information is provided and maintained by Decision Technologies Limited. **This is indicative only and based on a 2-person household with multiple devices and simultaneous usage. Broadband performance is affected by multiple factors including number of occupants and devices, simultaneous usage, router range etc. For more information speak to your broadband provider.
Map data ©OpenStreetMap contributors.






