19 bedroom block of apartments for sale
Paragon Street, Hull

- PROPERTY TYPE
Block of Apartments
- BEDROOMS
19
- BATHROOMS
19
- SIZE
Ask agent
Key features
- Prime City Centre Investment
- Leasehold
- 19 Self-Contained Flats
- Gross Income: £145,800 p.a. (bills inclusive)
- Yield 8.10%
- EPC rating C (across all the flats)
Description
Gross Income: £145,800 p.a. (bills inclusive)
Yield 8.1%
Leasehold
A rare opportunity to acquire a striking period property comprising 19 fully self-contained residential flats in the centre of Hull. Formerly a cinema, this attractive mid-terrace building has been converted across three upper floors to provide 14 studio apartments and 5 one-bedroom flats, fully let on inclusive rents and generating a strong gross annual income of £145,800.
Located just south of the main retail core and moments from St Stephen’s Shopping Centre and Hull Paragon Interchange, the property is ideally placed for both professional and student tenants. The ground floor retail unit (Heron Foods) is excluded from the sale and forms part of a separate title.
Investment Highlights:
Potential to increase the annual rent to be £157,000 (Yield 8.72%)
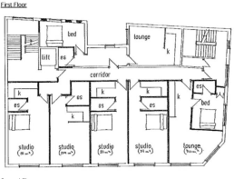
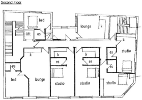
19 self-contained apartments (14 studios, 5 one-beds)
Well-maintained four-storey building in excellent central location
Planning permission previously granted for conversion
Measurements and layout in accordance with RICS Code of Measuring Practice
Floor plans and photographs available for marketing use
Freehold / Long Leasehold (peppercorn ground rent – to be confirmed)
Location:
Hull is the fourth-largest city in Yorkshire and the Humber, with a population of over 260,000. It sits approximately 50 miles east of Leeds, 35 miles south-east of York, and 55 miles north-east of Sheffield, making it strategically located and highly accessible.
Accommodation Summary (GIA):
Studios: approx. 16.5 – 41 sqm
1-Bed Flats: approx. 39.7 – 58 sqm
Full floor plans, images, and annotated valuation documents available on request.
A strong-yielding residential block in the heart of a thriving northern city – ideal for investors seeking long-term rental income with minimal voids.
Brochures
Paragon Street, Hull- COUNCIL TAXA payment made to your local authority in order to pay for local services like schools, libraries, and refuse collection. The amount you pay depends on the value of the property.Read more about council Tax in our glossary page.
- Band: A
- PARKINGDetails of how and where vehicles can be parked, and any associated costs.Read more about parking in our glossary page.
- Ask agent
- GARDENA property has access to an outdoor space, which could be private or shared.
- Ask agent
- ACCESSIBILITYHow a property has been adapted to meet the needs of vulnerable or disabled individuals.Read more about accessibility in our glossary page.
- Ask agent
Paragon Street, Hull
Add an important place to see how long it'd take to get there from our property listings.
__mins driving to your place
Get an instant, personalised result:
- Show sellers you’re serious
- Secure viewings faster with agents
- No impact on your credit score
Your mortgage
Notes
Staying secure when looking for property
Ensure you're up to date with our latest advice on how to avoid fraud or scams when looking for property online.
Visit our security centre to find out moreDisclaimer - Property reference 34038203. The information displayed about this property comprises a property advertisement. Rightmove.co.uk makes no warranty as to the accuracy or completeness of the advertisement or any linked or associated information, and Rightmove has no control over the content. This property advertisement does not constitute property particulars. The information is provided and maintained by Tulip, Hull. Please contact the selling agent or developer directly to obtain any information which may be available under the terms of The Energy Performance of Buildings (Certificates and Inspections) (England and Wales) Regulations 2007 or the Home Report if in relation to a residential property in Scotland.
*This is the average speed from the provider with the fastest broadband package available at this postcode. The average speed displayed is based on the download speeds of at least 50% of customers at peak time (8pm to 10pm). Fibre/cable services at the postcode are subject to availability and may differ between properties within a postcode. Speeds can be affected by a range of technical and environmental factors. The speed at the property may be lower than that listed above. You can check the estimated speed and confirm availability to a property prior to purchasing on the broadband provider's website. Providers may increase charges. The information is provided and maintained by Decision Technologies Limited. **This is indicative only and based on a 2-person household with multiple devices and simultaneous usage. Broadband performance is affected by multiple factors including number of occupants and devices, simultaneous usage, router range etc. For more information speak to your broadband provider.
Map data ©OpenStreetMap contributors.





