Dale Road, Marple

- PROPERTY TYPE
Detached
- BEDROOMS
5
- BATHROOMS
3
- SIZE
Ask agent
- TENUREDescribes how you own a property. There are different types of tenure - freehold, leasehold, and commonhold.Read more about tenure in our glossary page.
Freehold
Key features
- FIVE BEDROOM DETACHED FAMILY HOME
- INDOOR HEATED SWIMMING POOL
- HIGH SPECIFICATION THROUGHOUT
- LARGE GARDENS
- QUIET POSITION SET WELL BACK OFF DALE ROAD
- EXCELLENT POSITION FOR WELL REGARDED SCHOOLS AND TRANSPORT LINKS
- ADDITIONAL LAND NOW INCLUDED
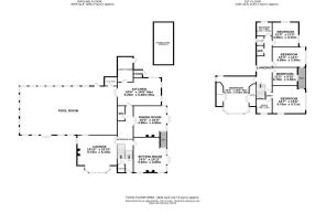
Description
The Residence is a most impressive property which is situated in private grounds of around 3 acres on the outskirts of Marple, close to the local beauty spot, Marple Dale.
Updated and improved to a high standard by the current owner, this attractive family home briefly comprises: entrance hall, lounge, sitting room, dining room, breakfast kitchen, separate utility room, plant room and downstairs WC. The property also has the benefit of a large indoor heated swimming pool.
To the first floor there are five bedrooms, two with en suite and one with access to a small balcony. There is a stylish family bathroom and a separate WC.
Externally, the property is set well back from the land and is approached via a long driveway which leads to a large block paved parking area.
The property is well screened from the lane and is surrounded by mature shrubs and trees. The gardens surround the property and are mainly laid to lawn.
LOCATION
Marple is a small town situated on the edge of beautiful countryside, yet Manchester city centre is less than 30 minutes away by train. Boasting parks and extensive recreational facilities, it is situated where the Peak Forest and Macclesfield canals meet and the canal towpaths provide extensive and beautiful walks. The centre hosts a wide selection of cafes, restaurants and bars, it also is the home of a popular independent cinema and many social and sports organisations and clubs are close by. There are regular well attended community events throughout the year which add to Marples friendly atmosphere. There are a number of well- regarded educational establishments in the area, from nursery schools to the Marple campus of Cheadle and Marple Sixth Form College. Marple station provides services to Manchester city centre and Sheffield whilst Rose Hill station provides commuter services to Manchester. The access points to the motorway network can be found at Bredbury and Stockport East junctions.
Brochures
RESIDENCE PDF.pdf- COUNCIL TAXA payment made to your local authority in order to pay for local services like schools, libraries, and refuse collection. The amount you pay depends on the value of the property.Read more about council Tax in our glossary page.
- Band: G
- PARKINGDetails of how and where vehicles can be parked, and any associated costs.Read more about parking in our glossary page.
- Yes
- GARDENA property has access to an outdoor space, which could be private or shared.
- Yes
- ACCESSIBILITYHow a property has been adapted to meet the needs of vulnerable or disabled individuals.Read more about accessibility in our glossary page.
- Ask agent
Dale Road, Marple
Add an important place to see how long it'd take to get there from our property listings.
__mins driving to your place
Get an instant, personalised result:
- Show sellers you’re serious
- Secure viewings faster with agents
- No impact on your credit score
Your mortgage
Notes
Staying secure when looking for property
Ensure you're up to date with our latest advice on how to avoid fraud or scams when looking for property online.
Visit our security centre to find out moreDisclaimer - Property reference 959222. The information displayed about this property comprises a property advertisement. Rightmove.co.uk makes no warranty as to the accuracy or completeness of the advertisement or any linked or associated information, and Rightmove has no control over the content. This property advertisement does not constitute property particulars. The information is provided and maintained by Gascoigne Halman, Marple Bridge. Please contact the selling agent or developer directly to obtain any information which may be available under the terms of The Energy Performance of Buildings (Certificates and Inspections) (England and Wales) Regulations 2007 or the Home Report if in relation to a residential property in Scotland.
*This is the average speed from the provider with the fastest broadband package available at this postcode. The average speed displayed is based on the download speeds of at least 50% of customers at peak time (8pm to 10pm). Fibre/cable services at the postcode are subject to availability and may differ between properties within a postcode. Speeds can be affected by a range of technical and environmental factors. The speed at the property may be lower than that listed above. You can check the estimated speed and confirm availability to a property prior to purchasing on the broadband provider's website. Providers may increase charges. The information is provided and maintained by Decision Technologies Limited. **This is indicative only and based on a 2-person household with multiple devices and simultaneous usage. Broadband performance is affected by multiple factors including number of occupants and devices, simultaneous usage, router range etc. For more information speak to your broadband provider.
Map data ©OpenStreetMap contributors.




