Ayia Napa, Cyprus
- PROPERTY TYPE
Detached
- BEDROOMS
4
- SIZE
Ask agent
Key features
- New build
- Covered area 150m2
- Plot 306m2
- Optional swimming pool
- Optional roof garden
- 4 Bedroom, 3 bathroom
- 850m to the beach
- 650m to amenities
- 3.5km to Ayia Napa Marina
- Contact us for a site inspection
Description
This development has a contemporary design with a collection of individual homes that are built with modern, sleek architectural styles and design elements.
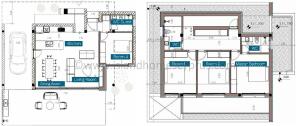
The entrance of this contemporary villa, leads into a spacious open plan ground floor, consisting of kitchen, living and dining area. The living and dining area have large patio door access to the sun terrace and optional swimming pool. The ground floor also benefits from a double bedroom and bathroom with shower, WC and sink with vanity unit.
The first floor has three further bedrooms, master with ensuite and separate family bathroom. All four bedrooms include fitted wardrobes.
This property is available for sale with off street parking, optional mosaic tiled swimming pool with vanishing edge at ?25,000 (&VAT) and optional 20m2 roof terrace at ?30,000 (& VAT).
Located in an urban area of Ayia Napa, far enough away from the resort to be peaceful but close enough to enjoy all of the amenities this vibrant town has to offer. The nearest beach is 850m away, local amenities as close as 650m and the new Ayia Napa Marina only a 3.5km drive.
This property would make a superb family home, holiday home or a lucrative rental investment opportunity.
Site visit by appointment.
Price excludes VAT.
AYIA NAPA
Ayia Napa has something for everyone! It is centered around the beautiful fishing harbour and monastery but also boasts a lively nightlife with streets dedicated to bars and clubs away from the quiet areas. From gourmet restaurants, miles of white sandy beaches, a wealth of family activities including the top rated themed` Water Park in Europe you will be surprised and delighted with the village. Over recent years, the resort has been significantly upgraded with a lot of new world class hotels, a new state of the art Marina, two sculpture parks (one underwater) and a coastal walkway. The investment is truly paying dividends. Ayia Napa is a very popular all year-round destination.
Spring brings Easter and the first of many exciting festival celebrations which continue throughout the year. Each festival reflects historic, cultural and agricultural traditions of the area and always include delicious delicacies and traditional Cypriot folk dancing. Surprisingly Ayia Napa properties for sale have a high rental demand throughout the year due to it being a busy holiday resort for all nationalities during the summer. In the winter Ayia Napa welcomes many Scandinavians who enjoy the temperate climate for a few months.
ABOUT THE FAMAGUSTA REGION
Whether you are planning to visit the Famagusta region of the Republic of Cyprus for the first time or you are already in love with the area, there is something here for everyone.
The area is not known as the Jewel of the Eastern Mediterranean` for nothing! From the stunning cliffs of Cavo Greko (the most Easterly point of Europe) to quaint inland villages, to the 44 (yes 44!) white sandy Blue Flag beaches, the area holds something for every palette. We have beautiful nature trails, water sports galore, amazing fresh cuisine, nightlife, one of the top waterparks in Europe, fishing harbours, a world class Marina and the list goes on and on! You are never far from anywhere in Famagusta, a maximum 15 minute drive to the nearest beach from even the most inland villages.
Thousands of expats of all nationalities have made Cyprus their home over the years due to the warm local welcome, fantastic climate and host of things to do. The bustling cities of Limassol, Larnaca and Nicosia are just over an hour away but here you can enjoy a more relaxed pace of life. Crime rates are amongst the lowest in Europe, English and Russian are widely spoken and there is always time for a chat, a coffee or a glass of wine in the sunshine. We look forward to introducing you to hidden gems of the area on your next visit.
ISLAND HOMES ESTATE AGENTS
Island Homes have been working with both local and overseas buyers and sellers for over 20 years. We specialise in property sales in the Famagusta region with seaside properties from Protaras to Ayia Napa; major towns including Paralimni and Deryneia and also covering all of the beautiful red soil villages` including Xylofagou, Vrysoulles, Frenaros, Avgorou, Dasaki Achna and Sotira.
All of our team live locally and have worked together for many, many years. We are also all immigrants to Cyprus and property owners ourselves so can guarantee that we have lived through the same experiences as that of our clients. We have in-depth knowledge of the area, the facilities, the amenities and, of course, every one of the properties that we advertise for sale.
Prior to advertising we undertake a full due diligence on every home to ensure that we can fully inform our clients about the legal status of each house or apartment.
Our reputation is hugely important to us so, for a truly personal experience, contact us and we will work together to find your dream home!
what3words /// applaud.diplodocus.motors
Notice
Please note we have not tested any apparatus, fixtures, fittings, or services. Interested parties must undertake their own investigation into the working order of these items. All measurements are approximate and photographs provided for guidance only.
Ayia Napa, Cyprus
NEAREST AIRPORTS
Distances are straight line measurements- Larnaka(International)22.0 miles
- Ercan(Local)29.8 miles
- Pafos(International)87.5 miles
Advice on buying Cypriot property
Learn everything you need to know to successfully find and buy a property in Cyprus.
Notes
This is a property advertisement provided and maintained by Island Homes, Paralimni (reference 92858_6360) and does not constitute property particulars. Whilst we require advertisers to act with best practice and provide accurate information, we can only publish advertisements in good faith and have not verified any claims or statements or inspected any of the properties, locations or opportunities promoted. Rightmove does not own or control and is not responsible for the properties, opportunities, website content, products or services provided or promoted by third parties and makes no warranties or representations as to the accuracy, completeness, legality, performance or suitability of any of the foregoing. We therefore accept no liability arising from any reliance made by any reader or person to whom this information is made available to. You must perform your own research and seek independent professional advice before making any decision to purchase or invest in overseas property.





