Weavers Close, Compstall, Stockport, SK6

- PROPERTY TYPE
Terraced
- BEDROOMS
4
- BATHROOMS
4
- SIZE
Ask agent
Key features
- Available for Shared Ownership (25%-75% Shares available)
- Carefully designed to provide the perfect blend of modern comfort and historic charm
- Located a stones throw away from Etherow Park
- EV Charging points
- Two parking spaces
- Beautiful four bedroom mid terrace home
Description
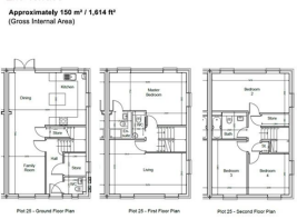
Viaduct Housing are excited to offer these four/five homes available for Shared Ownership. Nestled in the heart of Compstall, only a stone's throw away from Etherow Park. These homes feature an open plan lounge/kitchen/diner, four bathrooms and a study. Externally, there is an enclosed garden to the rear and two allocated parking spaces.
These homes are perfectly set amongst some beautiful historical site features, which give a proud nod to their history. Bask in the stunning views, perfectly positioned for country walks and Sunday lunch in the local pub.
Located only a 5-minute drive to Marple Bridge and 20 minutes to central Stockport.
Tenure: Leasehold - 990 years remaining
Service Charge - £77.14 per month
Rent Charge - See Key document attached for rent charges
60% SHARE PRICE - £285,000
25%-75% SHARES AVAILABLE
**** PLOT 24 AVAILABLE - MID TERRACED PROPERTY ****
PLEASE REVIEW ALL KEY DOCUMENTS ATTACHED
Council Tax - to be confirmed
Brochures
Brochures
BROCHUREKEY DOCUMENTSHARED OWNERSHIP- COUNCIL TAXA payment made to your local authority in order to pay for local services like schools, libraries, and refuse collection. The amount you pay depends on the value of the property.Read more about council Tax in our glossary page.
- Ask agent
- PARKINGDetails of how and where vehicles can be parked, and any associated costs.Read more about parking in our glossary page.
- Off street,Allocated,Private
- GARDENA property has access to an outdoor space, which could be private or shared.
- Private garden,Enclosed garden,Rear garden
- ACCESSIBILITYHow a property has been adapted to meet the needs of vulnerable or disabled individuals.Read more about accessibility in our glossary page.
- Level access
Energy performance certificate - ask agent
Weavers Close, Compstall, Stockport, SK6
Add an important place to see how long it'd take to get there from our property listings.
__mins driving to your place
Get an instant, personalised result:
- Show sellers you’re serious
- Secure viewings faster with agents
- No impact on your credit score
Your mortgage
Notes
Staying secure when looking for property
Ensure you're up to date with our latest advice on how to avoid fraud or scams when looking for property online.
Visit our security centre to find out moreDisclaimer - Property reference 4WEAVERS_VS. The information displayed about this property comprises a property advertisement. Rightmove.co.uk makes no warranty as to the accuracy or completeness of the advertisement or any linked or associated information, and Rightmove has no control over the content. This property advertisement does not constitute property particulars. The information is provided and maintained by Viaduct Housing, Stockport. Please contact the selling agent or developer directly to obtain any information which may be available under the terms of The Energy Performance of Buildings (Certificates and Inspections) (England and Wales) Regulations 2007 or the Home Report if in relation to a residential property in Scotland.
*This is the average speed from the provider with the fastest broadband package available at this postcode. The average speed displayed is based on the download speeds of at least 50% of customers at peak time (8pm to 10pm). Fibre/cable services at the postcode are subject to availability and may differ between properties within a postcode. Speeds can be affected by a range of technical and environmental factors. The speed at the property may be lower than that listed above. You can check the estimated speed and confirm availability to a property prior to purchasing on the broadband provider's website. Providers may increase charges. The information is provided and maintained by Decision Technologies Limited. **This is indicative only and based on a 2-person household with multiple devices and simultaneous usage. Broadband performance is affected by multiple factors including number of occupants and devices, simultaneous usage, router range etc. For more information speak to your broadband provider.
Map data ©OpenStreetMap contributors.




