
Northwood Avenue, Purley, CR8
- PROPERTY TYPE
Plot
- SIZE
5,091 sq ft
473 sq m
Description
Primary School (Outstanding) is just 0.2 miles away, with several other well rated
schools within a mile, Reedham rail station is approximately 0.3 miles away and
provides convenient transport links.
Local shopping is available at Purley High Street,
0.6 miles distant, while larger retail options can be found at Purley Cross Retail Park,
about a mile away.
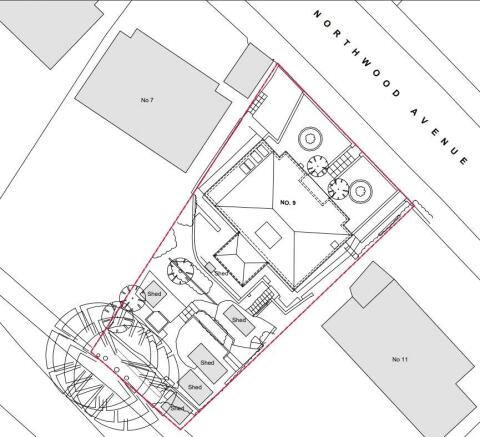
This consented development opportunity with planning granted to demolish existing buildings and construct a brand new scheme of 5 x apartments each with their own private outside space.
The breakdown of the units consists of 2 x 1 Bedroom apartments, 2 x 2 Bedroom and 1 x 3 Bedroom.
The plot size is 473 sqm and is occupied by an existing detached chalet bungalow with off street parking
CIL: £60,000
Northwood Avenue, Purley, CR8
NEAREST STATIONS
Distances are straight line measurements from the centre of the postcode- Purley Station0.3 miles
- Reedham (Surrey) Station0.3 miles
- Riddlesdown Station0.7 miles
Notes
Disclaimer - Property reference PUR250056. The information displayed about this property comprises a property advertisement. Rightmove.co.uk makes no warranty as to the accuracy or completeness of the advertisement or any linked or associated information, and Rightmove has no control over the content. This property advertisement does not constitute property particulars. The information is provided and maintained by Streets Ahead, Land & New Homes. Please contact the selling agent or developer directly to obtain any information which may be available under the terms of The Energy Performance of Buildings (Certificates and Inspections) (England and Wales) Regulations 2007 or the Home Report if in relation to a residential property in Scotland.
Map data ©OpenStreetMap contributors.





