Trendlewood Park, Stapleton, Bristol

- PROPERTY TYPE
House
- BEDROOMS
3
- BATHROOMS
1
- SIZE
Ask agent
- TENUREDescribes how you own a property. There are different types of tenure - freehold, leasehold, and commonhold.Read more about tenure in our glossary page.
Freehold
Key features
- A highly desirable split level Modernist home
- Adaptable and versatile accommodation with many outstanding features
- Arranged over 3 levels giving extra interest and uniqueness
- Ideally suited to Professionals, First time buyers, young families and retirement
- Stunning open plan arranged Lounge/Dining room
- Modern contemporary Kitchen and Bathroom
- 3 well proportioned bedrooms
- Close to open 'green space' and River Frome walks
- Garage and off street parking
- Hunters Exclusive - Recommended viewing
Description
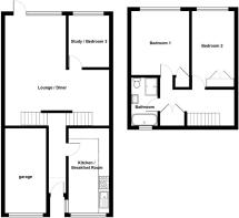
Entrance - Feature solid wood entrance door into ...
Hall - Radiator, staircase to upper and lower floors, feature exposed brick wall, feature laminate wood grain effect floor.
Kitchen/Breakfast Room - 5.00m x 2.34m (16'4" x 7'8") - Fitted with a stylish and contemporary range of dove grey finished wall, floor and drawer storage cupboards with built in oven, inset glass top hob and extractor above, feature laminate wood grain effect floor, space for washing machine and dishwasher, single drainer sink unit, fitted shelves, concrete effect working surfaces, UPVC double glazed window to front, space saver radiator.
Garden Level -
L Shaped Lounge/Dining Room -
Lounge Area - 6.5m x 3.47m (21'3" x 11'4") - Feature laminate wood grain effect floor, UPVC double glazed picture windows with direct outlook onto the rear garden, two radiators, space saver radiator, door into bedroom 3, pine paneled ceiling. Wide opening into ....
Dining Area - 3.34m x 2.26m (10'11" x 7'4") -
Bedroom 3/Study - 2.90m x 2.42m (9'6" x 7'11") - Space saver radiator, feature laminate wood grain effect floor, UPCV double glazed picture window with pleasant outlook onto the rear garden.
First Floor Landing - Door opening onto an accessible boarded roof space, access to additional roof space, feature laminate wood grain effect floor, built in double cupboard containing a wall mounted gas fired boiler for domestic hot water and central heating.
Bedroom 1 - 3.67m x 3.57m (12'0" x 11'8") - Feature laminate wood grain effect floor, built in single door wardrobe, UPVC double glazed window to rear with elevated outlook, radiator.
Bedroom 2 - 3.93m x 2.39m (12'10" x 7'10") - UPVC double glazed window to rear with an elevated outlook, radiator, built in double wardrobe.
Bathroom - 2.65m x 1.89m (8'8" x 6'2") - Luxury appointed with a white suite of low level w.c. vanity wash basin with cupboard beneath, free standing bath and walk in enclosure with a built in thermostatically controlled tropical shower, feature tiled walls and matching floor, concealed ceiling spot lights, UPVC double glazed and frosted window to front.
Exterior - The front garden arranged exclusively to the right hand side of the parking space offers a level lawn with screening shrubs. The enclosed rear garden stands within a combination of brick built and timber fenced boundaries offering an initial paved pathway and patio extending onto a small section of lawn, there are well stocked borders on both sides with a display of flooring plants, climbers and mature shrubs, brick built garden store, rear pedestrian gate opening onto a rear pedestrian walk way.
Driveway/Hardstanding - Directly in front of the property is a brick laid hard standing suitable for the off street parking of 1 vehicle.
Integral Garage - 2.92m x 2.44m (9'6" x 8'0") - The property benefits from a integral garage with up and over door, electric meters, power and light fittings/sockets.
Aml (Anti Money Laundering) - ‘’Estate agents operating in the UK are required to conduct Anti-Money Laundering (AML) checks in compliance with the regulations set forth by HM Revenue and Customs (HMRC) for all property transactions. It is mandatory for both buyers and sellers to successfully complete these checks before any property transaction can proceed. Our estate agency uses Coadjute’s Assured Compliance service to facilitate the AML checks. A fee will be charged for each individual AML check conducted’’
Brochures
Trendlewood Park, Stapleton, Bristol- COUNCIL TAXA payment made to your local authority in order to pay for local services like schools, libraries, and refuse collection. The amount you pay depends on the value of the property.Read more about council Tax in our glossary page.
- Band: C
- PARKINGDetails of how and where vehicles can be parked, and any associated costs.Read more about parking in our glossary page.
- Yes
- GARDENA property has access to an outdoor space, which could be private or shared.
- Yes
- ACCESSIBILITYHow a property has been adapted to meet the needs of vulnerable or disabled individuals.Read more about accessibility in our glossary page.
- Ask agent
Trendlewood Park, Stapleton, Bristol
Add an important place to see how long it'd take to get there from our property listings.
__mins driving to your place
Get an instant, personalised result:
- Show sellers you’re serious
- Secure viewings faster with agents
- No impact on your credit score
Your mortgage
Notes
Staying secure when looking for property
Ensure you're up to date with our latest advice on how to avoid fraud or scams when looking for property online.
Visit our security centre to find out moreDisclaimer - Property reference 34042539. The information displayed about this property comprises a property advertisement. Rightmove.co.uk makes no warranty as to the accuracy or completeness of the advertisement or any linked or associated information, and Rightmove has no control over the content. This property advertisement does not constitute property particulars. The information is provided and maintained by Hunters, Fishponds. Please contact the selling agent or developer directly to obtain any information which may be available under the terms of The Energy Performance of Buildings (Certificates and Inspections) (England and Wales) Regulations 2007 or the Home Report if in relation to a residential property in Scotland.
*This is the average speed from the provider with the fastest broadband package available at this postcode. The average speed displayed is based on the download speeds of at least 50% of customers at peak time (8pm to 10pm). Fibre/cable services at the postcode are subject to availability and may differ between properties within a postcode. Speeds can be affected by a range of technical and environmental factors. The speed at the property may be lower than that listed above. You can check the estimated speed and confirm availability to a property prior to purchasing on the broadband provider's website. Providers may increase charges. The information is provided and maintained by Decision Technologies Limited. **This is indicative only and based on a 2-person household with multiple devices and simultaneous usage. Broadband performance is affected by multiple factors including number of occupants and devices, simultaneous usage, router range etc. For more information speak to your broadband provider.
Map data ©OpenStreetMap contributors.








