
Pond Lane, Lasham, GU34

- PROPERTY TYPE
Detached
- BEDROOMS
4
- BATHROOMS
2
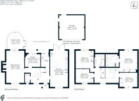
- SIZE
2,408 sq ft
224 sq m
- TENUREDescribes how you own a property. There are different types of tenure - freehold, leasehold, and commonhold.Read more about tenure in our glossary page.
Freehold
Key features
- Reception Hall
- Sitting Room
- Study/2nd Sitting Room
- Kitchen/Dining/Family Room
- Utility Room
- Cloakroom
- 4 Bedrooms
- En Suite Bathroom
- Family Bathroom
- Double Glazing
Description
The generous living accommodation also includes a large twin aspect sitting room featuring a fireplace with a wood burning stove together with a conservatory with double doors opening out to the rear garden — an ideal spot to enjoy the warm afternoon light. A separate second sitting room/study, utility room and cloakroom complete the ground floor accommodation.
There are four well-proportioned bedrooms and a family bathroom to the first floor. The impressive principal bedroom suite includes an en suite bathroom and benefits from having lovely long views over the adjoining countryside. The house has been thoughtfully improved in recent years by the current owners, including re fitted double glazed windows, a new central heating boiler and updated soffits to both the house and garage in 2021.
Outside
The house stands within attractive landscaped grounds providing a beautiful setting with areas of lawn together with flower and shrub borders and a variety of young and mature trees including a crab apple and silver birch. There are several well-positioned outdoor seating areas including an area with an mechanical awning. A private driveway provides ample parking and access to the double garage (with an electric door and useful storage space above). Timber shed. Log Store.
Situation
The beautiful village of Lasham has an active community and is set around a pond and St Mary's Church. The village is set amidst fine Hampshire countryside and is also home to the well-known Lasham Gliding Club (with a restaurant/ café open to non-members) and Avenue Nurseries. St Mary’s primary school and 'The Sun' public house are at Bentworth, about three miles distant. The thriving market town of Alton provides a range of individual shops together with weekly and specialist markets, Waitrose, M&S Simply Food, sports centre, two secondary schools, sixth form college and station to London Waterloo. The Cathedral city of Winchester to the south and the large regional town of Basingstoke to the west provide a wider range of facilities, mainline railway stations and access to the M3.
Property Ref Number:
HAM-37358Additional Information
Council Tax Band G
Brochures
Brochure- COUNCIL TAXA payment made to your local authority in order to pay for local services like schools, libraries, and refuse collection. The amount you pay depends on the value of the property.Read more about council Tax in our glossary page.
- Band: G
- PARKINGDetails of how and where vehicles can be parked, and any associated costs.Read more about parking in our glossary page.
- Yes
- GARDENA property has access to an outdoor space, which could be private or shared.
- Private garden
- ACCESSIBILITYHow a property has been adapted to meet the needs of vulnerable or disabled individuals.Read more about accessibility in our glossary page.
- Ask agent
Pond Lane, Lasham, GU34
Add an important place to see how long it'd take to get there from our property listings.
__mins driving to your place
Get an instant, personalised result:
- Show sellers you’re serious
- Secure viewings faster with agents
- No impact on your credit score
Affordability
Notes
Staying secure when looking for property
Ensure you're up to date with our latest advice on how to avoid fraud or scams when looking for property online.
Visit our security centre to find out moreDisclaimer - Property reference a1n8d000000i5xfAAA. The information displayed about this property comprises a property advertisement. Rightmove.co.uk makes no warranty as to the accuracy or completeness of the advertisement or any linked or associated information, and Rightmove has no control over the content. This property advertisement does not constitute property particulars. The information is provided and maintained by Hamptons, Alton. Please contact the selling agent or developer directly to obtain any information which may be available under the terms of The Energy Performance of Buildings (Certificates and Inspections) (England and Wales) Regulations 2007 or the Home Report if in relation to a residential property in Scotland.
*This is the average speed from the provider with the fastest broadband package available at this postcode. The average speed displayed is based on the download speeds of at least 50% of customers at peak time (8pm to 10pm). Fibre/cable services at the postcode are subject to availability and may differ between properties within a postcode. Speeds can be affected by a range of technical and environmental factors. The speed at the property may be lower than that listed above. You can check the estimated speed and confirm availability to a property prior to purchasing on the broadband provider's website. Providers may increase charges. The information is provided and maintained by Decision Technologies Limited. **This is indicative only and based on a 2-person household with multiple devices and simultaneous usage. Broadband performance is affected by multiple factors including number of occupants and devices, simultaneous usage, router range etc. For more information speak to your broadband provider.
Map data ©OpenStreetMap contributors.








