Plot for sale
Freystrop, Haverfordwest, SA62
- PROPERTY TYPE
Plot
- BEDROOMS
4
- BATHROOMS
2
- SIZE
Ask agent
Key features
- Former public house offering a unique residential development opportunity in a rural village setting.
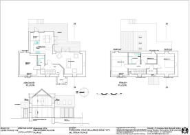
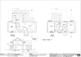
- Conditional planning previously granted for conversion into a spacious four-bedroom detached home.
- Approved architectural plans propose a contemporary layout with generous living space and defined outdoor areas.
- Located in the sought-after village of Freystrop, surrounded by unspoilt Pembrokeshire countryside.
- Planning consent previously granted under Application No. 19/0672/PA (lapsed 23rd January 2025)
Description
Offered to the market is a unique opportunity to acquire a former public house with strong residential development potential, set within the sought-after rural village of Freystrop. The property was previously granted conditional planning consent (Application No. 19/0672/PA) for conversion to a substantial four-bedroom detached dwelling. While that permission has since lapsed (23rd January 2025), the approved architectural plans remain available and outline an impressive contemporary home with generous internal living space, private parking, and landscaped gardens with a defined patio area.
Set within the heart of Pembrokeshire’s unspoilt countryside, Freystrop enjoys close proximity to the scenic Cleddau River and easy access to the nearby towns of Haverfordwest, Milford Haven, and Pembroke. Just a mile away, the neighbouring village of Hook offers a strong community atmosphere, a well-regarded primary school, and a variety of local activities, all nestled within the Western Cleddau—a landscape of national park designation and ecological importance. The area benefits from excellent transport links, with convenient road and rail connections to Carmarthen, Swansea, Cardiff, Fishguard, and Cardigan.
Additional Information:
We are advised that mains services are currently connected to the property. Prospective purchasers are encouraged to review the original planning documentation and consult with the local authority regarding any future application.
Application No:
19/0672/PA
Existing Planning Permission
19/0672/PA
Brochures
Brochure 1Freystrop, Haverfordwest, SA62
NEAREST STATIONS
Distances are straight line measurements from the centre of the postcode- Johnston Station1.6 miles
- Haverfordwest Station2.6 miles
- Milford Haven Station4.9 miles
Notes
Disclaimer - Property reference 28903684. The information displayed about this property comprises a property advertisement. Rightmove.co.uk makes no warranty as to the accuracy or completeness of the advertisement or any linked or associated information, and Rightmove has no control over the content. This property advertisement does not constitute property particulars. The information is provided and maintained by Bryce & Co, Covering Pembrokeshire. Please contact the selling agent or developer directly to obtain any information which may be available under the terms of The Energy Performance of Buildings (Certificates and Inspections) (England and Wales) Regulations 2007 or the Home Report if in relation to a residential property in Scotland.
Map data ©OpenStreetMap contributors.






