
Spillers and Bakers, Cardiff

- PROPERTY TYPE
Apartment
- BEDROOMS
2
- BATHROOMS
2
- SIZE
1,055 sq ft
98 sq m
Key features
- IMMACULATELY PRESENTED
- Two Double Bedrooms, Fifth Floor
- Extremely Spacious
- Allocated Parking Space
- Walking Distance To City Centre
- EPC Rating D
Description
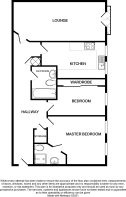
ENTRANCE HALL Entered via wooden door, with security spy hole. Wall mounted intercom system. Large, spacious hallway with cast iron pillar. Tiled flooring. Two storage cupboards, one housing new hot water tank. Coving. Wall mounted heater.
LOUNGE 19' 0" x 13' 3" (5.80m x 4.04m) Double glazed wooden framed French doors with fitted shutter blinds, to Juliette balcony. Exposed floorboards. Wall mounted radiator. TV aerial point. Telephone point. Two cast iron pillars. Coving.
KITCHEN 15' 7" x 9' 2" (4.77m x 2.81m) Modern kitchen. Two arched double glazed wooden framed windows, to front aspect. Exposed floorboards. Part tiled exposed brick effect walls. Fitted wall and base units, with work surfaces incorporating composite sink and drainer with mixer tap. Ample storage. Integrated oven, with four ring induction hob and extractor hood over. Coving. Space for fridge freezer, washing machine and dishwasher. Pendant light fittings and spotlights.
BEDROOM ONE 13' 1" x 12' 5" (4..49m x 3.79m) Two arched double glazed wooden framed windows with fitted blinds, to front aspect. Carpeted flooring. TV aerial point. Telephone point. Wall mounted heater. Cast iron pillar. Coving. Spotlights. Door leading to:-
ENSUITE 6' 7" x 6' 6" (2.02m x 2.00m) Excellent three-piece-suite comprising WC, Vanity wash hand basin with mixer tap over and storage beneath. Walk in corner shower cubicle with mains powered shower over and glass shower screen. Wall mounted vanity mirror. Extractor fan. Heated towel rail. Partly tiled wall and tiled flooring. Spotlights.
BEDROOM TWO 14' 7" x 11' 1" (4.46m x 3.40m) Arched double glazed wooden framed window with fitted blinds, to front aspect. A second double bedroom. Carpeted flooring. Large built in wardrobe, with mirrored sliding doors. Wall mounted heater. TV aerial point. Spotlights.
BATHROOM 8' 10" x 7' 7" (2.70m x 2.33m) Modern bathroom. Tiled flooring. Part tiled walls. Panelled bath, with mains powered rainfall shower over with separate shower fixture and glass shower screen. Vanity enclosed wash hand basin with hot and cold tap. W.C. Wall mounted cabinet over. Heated towel rail. Cast iron pillar. Extractor fan. Spotlights.
PARKING Allocated parking space. Visitor parking.
FACILITIES Onsite gym.
TENURE MGY are advised that the property is leasehold, with a lease of 999 years from August 2021. Service charges of £2,827.20 per annum, which includes buildings insurance, CCTV, lift maintenance, maintenance of internal and external communal areas, on site gym facilities, regular cleaning and refuse disposal, secure access to an allocated parking space and visitor parking. No Ground Rent.
Brochures
4 Page Portrait 2...- COUNCIL TAXA payment made to your local authority in order to pay for local services like schools, libraries, and refuse collection. The amount you pay depends on the value of the property.Read more about council Tax in our glossary page.
- Band: E
- PARKINGDetails of how and where vehicles can be parked, and any associated costs.Read more about parking in our glossary page.
- Allocated
- GARDENA property has access to an outdoor space, which could be private or shared.
- Ask agent
- ACCESSIBILITYHow a property has been adapted to meet the needs of vulnerable or disabled individuals.Read more about accessibility in our glossary page.
- Ask agent
Spillers and Bakers, Cardiff
Add an important place to see how long it'd take to get there from our property listings.
__mins driving to your place
Get an instant, personalised result:
- Show sellers you’re serious
- Secure viewings faster with agents
- No impact on your credit score
Your mortgage
Notes
Staying secure when looking for property
Ensure you're up to date with our latest advice on how to avoid fraud or scams when looking for property online.
Visit our security centre to find out moreDisclaimer - Property reference 101298031042. The information displayed about this property comprises a property advertisement. Rightmove.co.uk makes no warranty as to the accuracy or completeness of the advertisement or any linked or associated information, and Rightmove has no control over the content. This property advertisement does not constitute property particulars. The information is provided and maintained by MGY, Cardiff. Please contact the selling agent or developer directly to obtain any information which may be available under the terms of The Energy Performance of Buildings (Certificates and Inspections) (England and Wales) Regulations 2007 or the Home Report if in relation to a residential property in Scotland.
*This is the average speed from the provider with the fastest broadband package available at this postcode. The average speed displayed is based on the download speeds of at least 50% of customers at peak time (8pm to 10pm). Fibre/cable services at the postcode are subject to availability and may differ between properties within a postcode. Speeds can be affected by a range of technical and environmental factors. The speed at the property may be lower than that listed above. You can check the estimated speed and confirm availability to a property prior to purchasing on the broadband provider's website. Providers may increase charges. The information is provided and maintained by Decision Technologies Limited. **This is indicative only and based on a 2-person household with multiple devices and simultaneous usage. Broadband performance is affected by multiple factors including number of occupants and devices, simultaneous usage, router range etc. For more information speak to your broadband provider.
Map data ©OpenStreetMap contributors.








