Unit 1, The Cloisters, Corporation Street, Southport, Merseyside, PR8
- SIZE AVAILABLE
4,830 sq ft
449 sq m
- SECTOR
High street retail property to lease
Lease details
- Lease available date:
- Ask agent
Key features
- Central Southport location off Chapel Street & near Lord Street
- Approx. 4,830 sq.ft. over two floors
- Grade II listed with unique period features
- Flexible use: retail, hospitality, offices, more
- Shell condition, ready for tenant fit out
- Lift access, high ceilings, and natural light
Description
Retail Showroom / Flagship Store
Café, Bar, or Restaurant
Leisure Facility or Boutique Gym
Art Gallery or Exhibition Space
Wellness or Health Centre (e.g. clinic, beauty, yoga, pilates)
Professional Offices or Co-Working Hub
Creative Studios or Education/Training Centre
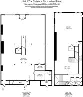
Arranged over two main floors, with a Gross Internal Area (GIA) of approx. 4,830 sq.ft. (448.70 sq.m.), the building combines generous open-plan spaces with period detailing, creating a versatile and memorable environment for businesses seeking to stand out.
Property Features: Prominent Grade II listed façade with gothic-style stone archway.
Full-height display windows with roller shutters for security.
Lift access to both floors.
Unique architectural features including stained glass, columns, and exposed brickwork.
Exposed services to ceiling for ease of fit-out and design flexibility.
Excellent scope for branding and signage on both ground and first floor frontages.
Originally constructed to house Christ Church Schools, this heritage property retains its ecclesiastical character and grandeur, making it a landmark presence on Corporation Street. A commemorative stone plaque at the entrance attests to its historical roots. The building was subsequently adapted for retail use and most recently occupied by a sports outlet, with potential now to serve a new commercial chapter.
Brochures
Unit 1, The Cloisters, Corporation Street, Southport, Merseyside, PR8
NEAREST STATIONS
Distances are straight line measurements from the centre of the postcode- Southport Station0.1 miles
- Birkdale Station1.0 miles
- Meols Cop Station1.2 miles
Notes
Disclaimer - Property reference 2598LH. The information displayed about this property comprises a property advertisement. Rightmove.co.uk makes no warranty as to the accuracy or completeness of the advertisement or any linked or associated information, and Rightmove has no control over the content. This property advertisement does not constitute property particulars. The information is provided and maintained by Fitton Estates, Merseyside/Lancashire. Please contact the selling agent or developer directly to obtain any information which may be available under the terms of The Energy Performance of Buildings (Certificates and Inspections) (England and Wales) Regulations 2007 or the Home Report if in relation to a residential property in Scotland.
Map data ©OpenStreetMap contributors.





