Plot South of Machair House at Scarinish, Isle of Tiree, PA77 6UH
- PROPERTY TYPE
Plot
- SIZE
8,712 sq ft
809 sq m
Key features
- Desirable Building Plot
- Countryside & Partial Sea Views
- Charming Rural Island Location
- Full Planning Permission (Amendment) for Dwellinghouse & Workshop
- Septic Tank & Sewage Treatment Plant to be installed by the Purchaser
- Mains Water & Electricity available for connection nearby
- Around 0.2 Acres
Description
Location
Scarinish is the main township on Tiree, located on the south coast of the island between Hynish Bay and Gott Bay. The ferry terminal is situated here and the airport is only 4 miles distant at Crossapol. Scarinish offers amenities such as the Co-op, bank, post office and hotel. The Isle of Tiree is the most westerly of the Inner Hebrides. Relatively small and very flat with only three small hills and no woodland, the island is approximately 12 miles long by 3 miles wide. Known as the 'Sunshine Isle', Tiree benefits from the warm Gulf Stream and enjoys a mild climate with some of the highest levels of sunshine in the British Isles. Famed for it's beautiful beaches, the island is host to the annual Tiree Wave Classic which attracts some of the worlds best surfers, and the ever-popular Tiree Music Festival, which attracts tourists in abundance. There is both primary and secondary education on the Island, shops including two grocery stores and a doctors' surgery, bank, garage and veterinary surgery. The journey from Oban takes around 3.5 hours by boat, with regular flights available from Glasgow and Connel airports taking around one hour.
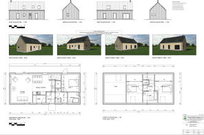
Planning Permission
Full Planning Permission (Amendment) was granted on 22nd Jan 2024 (Ref: 23/02338/PP) for the erection of a dwellinghouse and workshop, installation of septic tank and formation of vehicular access. Copies of this Planning Permission and approved plans are available on the Argyll & Bute Council website or on request with the selling agent.
Services
Mains water and electricity are available for connection nearby. Drainage will be to a septic tank and sewage treatment plant to be installed by the purchasers.
Travel Directions
From the pier, proceed along Pier Road for half a mile, turning left at the junction on to the B8065 road. Continue on this road for around half a mile, crossing the cattle grid and pass the Co-op and Tiree Historical Centre on the right hand side. The entrance track to the plot is located on the right hand side after the first house.
Brochures
Sales ParticularsPlot South of Machair House at Scarinish, Isle of Tiree, PA77 6UH
NEAREST STATIONS
Distances are straight line measurements from the centre of the postcode- Arisaig Station46.7 miles



Notes
Disclaimer - Property reference PlotSouthofMachairHouseatScarinishIsleofTiree. The information displayed about this property comprises a property advertisement. Rightmove.co.uk makes no warranty as to the accuracy or completeness of the advertisement or any linked or associated information, and Rightmove has no control over the content. This property advertisement does not constitute property particulars. The information is provided and maintained by MacPhee And Partners LLP, Fort William. Please contact the selling agent or developer directly to obtain any information which may be available under the terms of The Energy Performance of Buildings (Certificates and Inspections) (England and Wales) Regulations 2007 or the Home Report if in relation to a residential property in Scotland.
Map data ©OpenStreetMap contributors.





