Combe Rise, Willingdon, Eastbourne, East Sussex, BN20

- PROPERTY TYPE
Detached Bungalow
- BEDROOMS
3
- BATHROOMS
1
- SIZE
1,267 sq ft
118 sq m
- TENUREDescribes how you own a property. There are different types of tenure - freehold, leasehold, and commonhold.Read more about tenure in our glossary page.
Freehold
Key features
- Close Proximity To Shops, Schools, Bus Routes & Road Links
- Kitchen With Conservatory Area
- Ample Off Road Parking
- Secluded Garden With A Sunny Aspect
- Living Room & Dining Area
- Tandem Garage
- Far Reaching Views Towards The South Downs National Park
- Desirable Cul-De-Sac Location In Sought After Willingdon
- A Well Presented Three Bedroom Detached Bungalow
- Guide Price £475,000 to £485,000
Description
Guide Price £475,000 to £485,000
Escape to your own piece of paradise in beautiful Willingdon, Eastbourne. This charming three bedroom detached bungalow offers tranquility and serenity, with views of The South Downs National Park right on your doorstep.
Imagine taking leisurely strolls through the countryside, soaking up the natural beauty around you. Situated in a quiet cul-de-sac, this property boasts a secluded garden perfect for enjoying the peace and quiet.
Inside, you'll find a modern kitchen with a bright conservatory area, perfect for enjoying your morning cuppa. The spacious living room opens up to a dining area, ideal for entertaining family and friends.
For those looking to explore, this property is conveniently located on the edge of a seaside town, with easy access to the national park. Local shops and pubs are just a stone's throw away, offering convenience and a sense of community.
Parking is a breeze with a long driveway and an impressive tandem garage, while the sunny garden provides a peaceful retreat to bask in the sunshine.
Check out the 3D virtual tour!
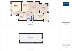
Entrance Porch
Hallway
Living Room - 4.27m x 3.91m (14'0" x 12'10")
Dining Area - 3.2m x 3m (10'6" x 9'10")
Kitchen - 3.53m x 2.82m (11'7" x 9'3")
Conservatory Area - 2.92m x 1.83m (9'7" x 6'0")
Bedroom One - 3.94m x 3.48m (12'11" x 11'5")
Bedroom Two - 3.45m x 2.74m (11'4" x 9'0")
Bedroom Three - 2.72m x 2.46m (8'11" x 8'1")
Bathroom
Additional WC
Tandem Garage - 8.59m x 3.4m (28'2" x 11'2")
Front Garden
Back Garden
Please contact Surridge Mison Estates for viewing arrangements or for further information.
Council Tax Band- D
EPC Rating- D
Tenure- Freehold
Utilities
This property has the following utilities:
Water; Mains
Drainage; Mains
Gas; Mains
Electricity; Mains
Primary Heating; Gas central heating system
Solar Power; None
To check broadband visit Openreach:
To check mobile phone coverage, visit Ofcom:
We have prepared these property particulars & floor plans as a general guide. All measurements are approximate and into bays, alcoves and occasional window spaces where appropriate. Room sizes cannot be relied upon for carpets, flooring and furnishings. We have tried to ensure that these particulars are accurate but, to a large extent, we have to rely on what the vendor tells us about the property. You may need to carry out more investigations in the property than it is practical or reasonable for an estate agent to do when preparing sales particulars. For example, we have not carried out any kind of survey of the property to look for structural defects and would advise any homebuyer to obtain a surveyor’s report before exchanging contracts. We have not checked whether any equipment in the property (such as central heating) is in working order and would advise homebuyers to check this. You should also instruct a solicitor to investigate all legal matters relating to the property (e.g. title, planning permission, etc) as these are specialist matters in which estate agents are not qualified. Your solicitor will also agree with the seller what items (e.g. carpets, curtains, etc) will be included in the sale.
Brochures
Brochure 1- COUNCIL TAXA payment made to your local authority in order to pay for local services like schools, libraries, and refuse collection. The amount you pay depends on the value of the property.Read more about council Tax in our glossary page.
- Band: D
- PARKINGDetails of how and where vehicles can be parked, and any associated costs.Read more about parking in our glossary page.
- Garage,Off street
- GARDENA property has access to an outdoor space, which could be private or shared.
- Private garden
- ACCESSIBILITYHow a property has been adapted to meet the needs of vulnerable or disabled individuals.Read more about accessibility in our glossary page.
- Ask agent
Combe Rise, Willingdon, Eastbourne, East Sussex, BN20
Add an important place to see how long it'd take to get there from our property listings.
__mins driving to your place
Get an instant, personalised result:
- Show sellers you’re serious
- Secure viewings faster with agents
- No impact on your credit score
Your mortgage
Notes
Staying secure when looking for property
Ensure you're up to date with our latest advice on how to avoid fraud or scams when looking for property online.
Visit our security centre to find out moreDisclaimer - Property reference S1390525. The information displayed about this property comprises a property advertisement. Rightmove.co.uk makes no warranty as to the accuracy or completeness of the advertisement or any linked or associated information, and Rightmove has no control over the content. This property advertisement does not constitute property particulars. The information is provided and maintained by Surridge Mison Estates, Pevensey. Please contact the selling agent or developer directly to obtain any information which may be available under the terms of The Energy Performance of Buildings (Certificates and Inspections) (England and Wales) Regulations 2007 or the Home Report if in relation to a residential property in Scotland.
*This is the average speed from the provider with the fastest broadband package available at this postcode. The average speed displayed is based on the download speeds of at least 50% of customers at peak time (8pm to 10pm). Fibre/cable services at the postcode are subject to availability and may differ between properties within a postcode. Speeds can be affected by a range of technical and environmental factors. The speed at the property may be lower than that listed above. You can check the estimated speed and confirm availability to a property prior to purchasing on the broadband provider's website. Providers may increase charges. The information is provided and maintained by Decision Technologies Limited. **This is indicative only and based on a 2-person household with multiple devices and simultaneous usage. Broadband performance is affected by multiple factors including number of occupants and devices, simultaneous usage, router range etc. For more information speak to your broadband provider.
Map data ©OpenStreetMap contributors.




