Land for sale
Pant Yr Ardd, Tregarth, Gwynedd, LL57
- PROPERTY TYPE
Land
- SIZE
Ask agent
Key features
- Good Sized Building Plot
- Planning Consent Granted
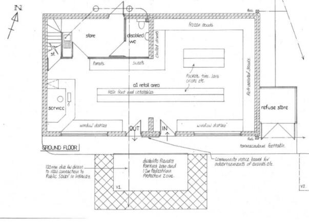
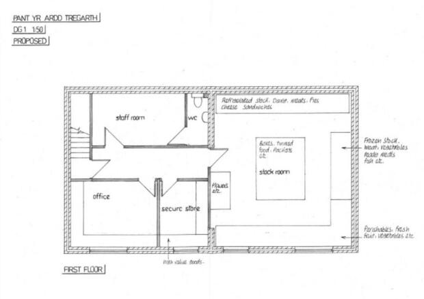
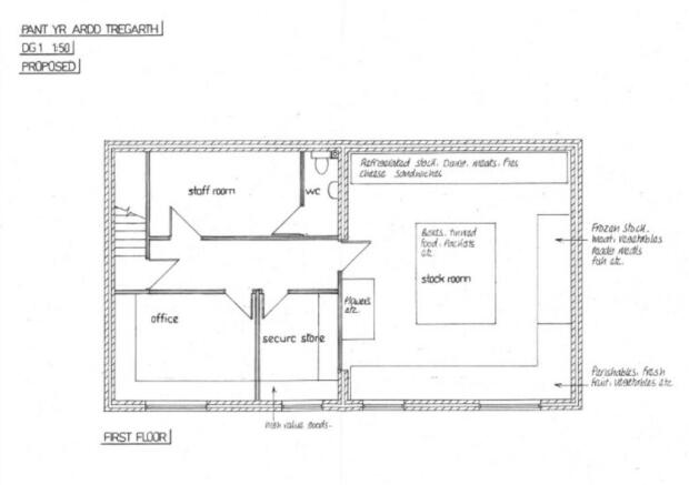
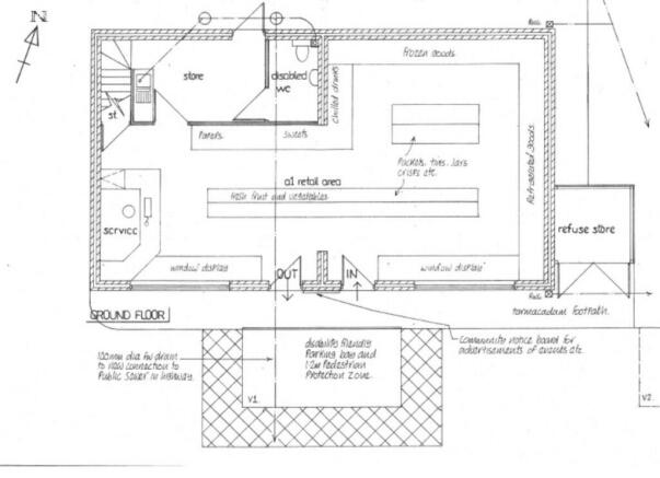
- 2 Storey Retail Outlet
- Ref: C15/0348/16/LL - 05.02.2016
- Village Centre Location
- May Also Suit Affordable Housing
Description
The site which measures approximately 30 meters wide and approximately 20 meters deep in our opinion is large enough to accommodate a development of two blocks of 2 bedroomed town houses.
Tenure
We have been advised by the seller that the property is being offered on a Freehold basis.
Material Information
Since September 2024 Gwynedd Council have introduced an Article 4 directive so, if you're planning to use this property as a holiday home or for holiday lettings, you may need to apply for planning permission to change its use. (Note: Currently, this is for Gwynedd Council area only)
Pant Yr Ardd, Tregarth, Gwynedd, LL57
NEAREST STATIONS
Distances are straight line measurements from the centre of the postcode- Bangor Station2.9 miles
- Llanfairpwll Station5.4 miles
- Llanfairfechan Station6.4 miles




Notes
Disclaimer - Property reference RX563604. The information displayed about this property comprises a property advertisement. Rightmove.co.uk makes no warranty as to the accuracy or completeness of the advertisement or any linked or associated information, and Rightmove has no control over the content. This property advertisement does not constitute property particulars. The information is provided and maintained by Williams & Goodwin The Property People, Bangor. Please contact the selling agent or developer directly to obtain any information which may be available under the terms of The Energy Performance of Buildings (Certificates and Inspections) (England and Wales) Regulations 2007 or the Home Report if in relation to a residential property in Scotland.
Map data ©OpenStreetMap contributors.




