White Horse Road, Marlborough, SN8 2FE

- PROPERTY TYPE
Semi-Detached
- BEDROOMS
3
- BATHROOMS
2
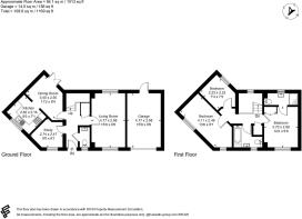
- SIZE
1,031 sq ft
96 sq m
- TENUREDescribes how you own a property. There are different types of tenure - freehold, leasehold, and commonhold.Read more about tenure in our glossary page.
Freehold
Key features
- Hall
- Sitting room
- Study
- Kitchen/dining room
- Master bedroom en suite
- Two further bedrooms
- Family bathroom
- Single garage and parking
- Pretty southerly facing garden
- NO CHAIN
Description
The hallway, with a cloakroom on the right as you enter and stairs to the first floor with a cupboard under, leads to a sitting room with dual aspect windows to front and rear. To the left in the hallway is a study with a window to the front. The well equipped kitchen/breakfast room allows for plenty of natural light having a window to the front and french doors opening onto the rear garden. The kitchen is well-designed and has a full range of cupboards and drawers, an integrated electric oven, 4 ring gas hob, and space for an upright fridge freezer, a dishwasher and a washing machine. To the first floor there is master bedroom with built-in wardrobes and an en suite shower room. The second bedroom is also a double and the third bedroom is a good sized single. The family bathroom has a white suite that also includes an over bath shower.
Outside
The pretty rear garden is southerly facing and has a sunny terrace that is perfect for dining al fresco. The front garden is open plan and there is a single garage to the side with parking in front.
All mains services connected. Council tax band: D
MARLBOROUGH
White Horse Road is located on the edge of Marlborough offering access in to town and countryside. Marlborough is a thriving, market town situated within an Area of Outstanding Natural Beauty. The town offers excellent local independent shops, an independent cinema, some of the major retailers and supermarkets (including Waitrose) and boasts a number of good quality restaurants such as Dan`s. The Leisure Centre and Golf Club provide excellent sporting facilities, while there are also good schools within the town including St. Johns Academy.
The town is surrounded by the most attractive countryside of the Marlborough Downs, Savernake Forest, Pewsey Vale and Kennet Valley. The M4 gives access to London and the West Country.
Notice
Please note we have not tested any apparatus, fixtures, fittings, or services. Interested parties must undertake their own investigation into the working order of these items. All measurements are approximate and photographs provided for guidance only.
Brochures
Brochure 1Web Details- COUNCIL TAXA payment made to your local authority in order to pay for local services like schools, libraries, and refuse collection. The amount you pay depends on the value of the property.Read more about council Tax in our glossary page.
- Band: D
- PARKINGDetails of how and where vehicles can be parked, and any associated costs.Read more about parking in our glossary page.
- Garage,Off street
- GARDENA property has access to an outdoor space, which could be private or shared.
- Private garden
- ACCESSIBILITYHow a property has been adapted to meet the needs of vulnerable or disabled individuals.Read more about accessibility in our glossary page.
- Ask agent
White Horse Road, Marlborough, SN8 2FE
Add an important place to see how long it'd take to get there from our property listings.
__mins driving to your place
Get an instant, personalised result:
- Show sellers you’re serious
- Secure viewings faster with agents
- No impact on your credit score
Your mortgage
Notes
Staying secure when looking for property
Ensure you're up to date with our latest advice on how to avoid fraud or scams when looking for property online.
Visit our security centre to find out moreDisclaimer - Property reference 1178_BRIC. The information displayed about this property comprises a property advertisement. Rightmove.co.uk makes no warranty as to the accuracy or completeness of the advertisement or any linked or associated information, and Rightmove has no control over the content. This property advertisement does not constitute property particulars. The information is provided and maintained by Brearley & Rich, Marlborough. Please contact the selling agent or developer directly to obtain any information which may be available under the terms of The Energy Performance of Buildings (Certificates and Inspections) (England and Wales) Regulations 2007 or the Home Report if in relation to a residential property in Scotland.
*This is the average speed from the provider with the fastest broadband package available at this postcode. The average speed displayed is based on the download speeds of at least 50% of customers at peak time (8pm to 10pm). Fibre/cable services at the postcode are subject to availability and may differ between properties within a postcode. Speeds can be affected by a range of technical and environmental factors. The speed at the property may be lower than that listed above. You can check the estimated speed and confirm availability to a property prior to purchasing on the broadband provider's website. Providers may increase charges. The information is provided and maintained by Decision Technologies Limited. **This is indicative only and based on a 2-person household with multiple devices and simultaneous usage. Broadband performance is affected by multiple factors including number of occupants and devices, simultaneous usage, router range etc. For more information speak to your broadband provider.
Map data ©OpenStreetMap contributors.





