
3 bedroom flat for sale
Apartment 201, St Moritz

- PROPERTY TYPE
Flat
- BEDROOMS
3
- BATHROOMS
3
- SIZE
Ask agent
- TENUREDescribes how you own a property. There are different types of tenure - freehold, leasehold, and commonhold.Read more about tenure in our glossary page.
Freehold
Key features
- Generous open plan kitchen, dining and living room with direct access onto a private, wrap-around sea-facing terrace.
- Elevated position on the second floor with lift access directly into the apartment.
- Apartment owners have access to all the hotel leisure facilities including the Cowshed Spa and newly renovated £2m+ spa & pool.
- Within minutes of the Southwest Coast Path, Daymer, Polzeath and the Camel Estuary.
Description
The Property
Situated in an elevated position on the second floor with far reaching sea views, this luxurious apartment comprises three spacious bedrooms all with ensuite bathrooms, open-plan living including kitchen, dining, and sitting with direct access onto the private sea-facing terrace. The property has been finished to exacting standards, includes high-quality specifications and furnishing throughout, and enjoys excellent views over the Camel Estuary, Stepper Point, and out to sea. Apartment 201 is beautifully presented and offers a fantastic property with strong letting potential.
TENURE
Leasehold 999 years from 2006. Holiday restriction applies (owners cannot use the property as their Principal Primary Residence). Otherwise, owners have unrestricted use of their apartments and can let out whichever weeks they do not wish to use through St Moritz Hotel.
HOTEL FACILITIES
Apartment owners have full access to all hotel leisure facilities, including:
• Recently revamped indoor pool, sauna & steam rooms, outdoor jacuzzi.
• Outdoor pool & Tennis court
• Fully equipped gymnasium refurbished recently and offering a great workout space.
• The Cowshed spa & treatment rooms
• Restaurant, bar, lounge & games room
• Landscaped gardens
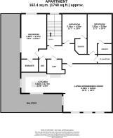
AccommodationThe apartment is accessed via a shared entrance lobby with a staircase and lift leading directly into: Entrance Hall |Spacious Open-Plan Kitchen, Dining & Living Room | South Facing wrap-around Terrace | Three Double En-Suite Bedrooms one with balcony access | Cloakroom
Services
Mains Water, Electricity and Drainage. Electric Heating. Annual service charge payable.
LocationTrebetherick is considered to be one of the most attractive locations on the north Cornwall coast, being famous for its mild climate and superb situation at the mouth of the River Camel and within easy access of the Southwest Coast Path and Polzeath and Daymer Bay beaches. Scenic walking country, easy access to a good choice of restaurants and the St Enodoc Golf Club’s challenging Church Course are just a few of the local amenities on offer. Most everyday shopping requirements can be met within the village or at nearby Rock, but Wadebridge, with its town amenities, is only seven miles distant. The main line railway station is at Bodmin Parkway, approximately 15 miles and Newquay airport (direct daily air flights to London) is approximately 20 miles.
what3words ///entitle.treble.breeze
OutsideLarge L-shaped decked balcony overlooking the mature hotel gardens with panoramic sea views towards Stepper Point. Two reserved parking spaces and a storage cage for personal items. Further visitor parking is also available on site.
Water source: Direct mains water.
Electricity source: National Grid.
Sewerage arrangements: Standard UK domestic.
Heating Supply: Central heating (electric).
Parking Availability: Yes.
Brochures
Brochure 1- COUNCIL TAXA payment made to your local authority in order to pay for local services like schools, libraries, and refuse collection. The amount you pay depends on the value of the property.Read more about council Tax in our glossary page.
- Ask agent
- PARKINGDetails of how and where vehicles can be parked, and any associated costs.Read more about parking in our glossary page.
- Yes
- GARDENA property has access to an outdoor space, which could be private or shared.
- Yes
- ACCESSIBILITYHow a property has been adapted to meet the needs of vulnerable or disabled individuals.Read more about accessibility in our glossary page.
- Ask agent
Apartment 201, St Moritz
Add an important place to see how long it'd take to get there from our property listings.
__mins driving to your place
Get an instant, personalised result:
- Show sellers you’re serious
- Secure viewings faster with agents
- No impact on your credit score
Your mortgage
Notes
Staying secure when looking for property
Ensure you're up to date with our latest advice on how to avoid fraud or scams when looking for property online.
Visit our security centre to find out moreDisclaimer - Property reference TQ_PRP_5711. The information displayed about this property comprises a property advertisement. Rightmove.co.uk makes no warranty as to the accuracy or completeness of the advertisement or any linked or associated information, and Rightmove has no control over the content. This property advertisement does not constitute property particulars. The information is provided and maintained by John Bray & Partners, Rock. Please contact the selling agent or developer directly to obtain any information which may be available under the terms of The Energy Performance of Buildings (Certificates and Inspections) (England and Wales) Regulations 2007 or the Home Report if in relation to a residential property in Scotland.
*This is the average speed from the provider with the fastest broadband package available at this postcode. The average speed displayed is based on the download speeds of at least 50% of customers at peak time (8pm to 10pm). Fibre/cable services at the postcode are subject to availability and may differ between properties within a postcode. Speeds can be affected by a range of technical and environmental factors. The speed at the property may be lower than that listed above. You can check the estimated speed and confirm availability to a property prior to purchasing on the broadband provider's website. Providers may increase charges. The information is provided and maintained by Decision Technologies Limited. **This is indicative only and based on a 2-person household with multiple devices and simultaneous usage. Broadband performance is affected by multiple factors including number of occupants and devices, simultaneous usage, router range etc. For more information speak to your broadband provider.
Map data ©OpenStreetMap contributors.





