
Plot for sale
Building Plot at Levant, Trewellard, St Just, TR19 7SR
- PROPERTY TYPE
Plot
- BEDROOMS
3
- BATHROOMS
2
- SIZE
Ask agent
Key features
- LOVELY SEA VIEWS * PLOT WITH DETAILED PLANNING PERMISSION FOR A 3/4 BEDROOM DETACHED HOUSE
- OFFERING: LOUNGE/DINING ROOM * KITCHEN
- BEDROOM FOUR TO THE GROUND FLOOR
- TECH ROOM * CLOAKROOM
- THREE BEDROOMS TO FIRST FLOOR * DRESSING ROOM * TWO BATHROOMS
- GOOD SIZE PLOT WITH AMPLE PARKING AND GARDEN AREA
- CONVENIENTLY PLACED FOR LOCAL AMENITIES
- ACCESS TO THE CORNISH COASTAL PATH
- CIL CHARGE £15,751.57 * COUNCIL TAX BAND = TBC
Description
Property additional info
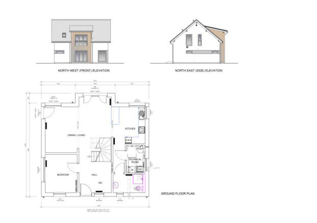
PROPOSED ACCOMMODATION:
ENTRANCE HALL:
LIVING ROOM/DINING ROOM:
Opening into:
KITCHEN:
BEDROOM FOUR/STUDY:
SHOWER ROOM:
TECH ROOM:
Central staircase to:
FIRST FLOOR LANDING:
MAIN BEDROOM:
DRESSING ROOM:
EN SUITE:
BEDROOM TWO:
BEDROOM THREE:
FAMILY BATHROOM:
OUTSIDE:
Gardens surround with ample parking and turning area.
NB:
This layout can be altered internally, subject to any necessary planning permission, a small lane will be formed at the bottom of the plot which will be retained for access to the adjoining field. There is a CIL charge of £15,751.57.
SERVICES:
Close by. A new septic tank will have to be installed.
DIRECTIONS:
Via "What3Words" app: ///definite.armful.myths
Brochures
Brochure 1Building Plot at Levant, Trewellard, St Just, TR19 7SR
NEAREST STATIONS
Distances are straight line measurements from the centre of the postcode- Penzance Station6.6 miles
Notes
Disclaimer - Property reference L74. The information displayed about this property comprises a property advertisement. Rightmove.co.uk makes no warranty as to the accuracy or completeness of the advertisement or any linked or associated information, and Rightmove has no control over the content. This property advertisement does not constitute property particulars. The information is provided and maintained by Marshalls Estate Agents, Penzance. Please contact the selling agent or developer directly to obtain any information which may be available under the terms of The Energy Performance of Buildings (Certificates and Inspections) (England and Wales) Regulations 2007 or the Home Report if in relation to a residential property in Scotland.
Map data ©OpenStreetMap contributors.








