
Plot at The Oaks, The Oaks, Moneydie, Luncarty
- PROPERTY TYPE
Plot
- SIZE
Ask agent
Description
The plot occupies an enviable position on the edge of the small enclave of five, individually designed homes at The Oaks, some 1.5 miles from the A9 and 6 miles from the centre of Perth.
Plot Summary
Approximately 2.1 acres in total.
Planning Permission for architect-designed, 5-bedroom home extending to approximately TBC sq. ft.
Bounded by a combination of mature trees and hedgerows, providing a high degree of privacy and seclusion.
Incorporating sections of the Schochie and Coldrochie Burns.
Accessed from country lane via stone pillared entrance gates and shared private driveway.
Planning Reference Number: 22/00919/FLL
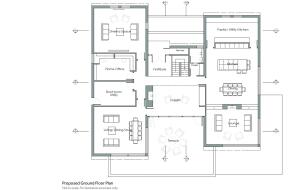
Proposed Accommodation Summary
Ground Floor:
Entrance Vestibule and Loggia with Bi-folding doors to Terrace.
Open-plan, split level Kitchen/Dining Room and double-height Sitting Room.
Living Room, Home Office, and Home Cinema.
Pantry and Utility Room, Cloakroom with WC, and Boot Room.
First Floor:
Galleried Landing with space for Lounge.
Principal Bedroom Suite with Dressing Room, Bathroom, and Terrace.
Two further Double Bedrooms with ensuite Shower Rooms, walk-in Wardrobes, and Terraces.
Double Bedroom 4 & 5 with en-suite Shower Rooms.
Generous volume of built-in storage.
Detached Double Garage.
Further information can be found in sales brochure.
EPC - N/A
Tenure - Freehold
Council Tax Band - TBC
Brochures
ParticularsPlot at The Oaks, The Oaks, Moneydie, Luncarty
NEAREST STATIONS
Distances are straight line measurements from the centre of the postcode- Perth Station1.7 miles
Notes
Disclaimer - Property reference RUR250256. The information displayed about this property comprises a property advertisement. Rightmove.co.uk makes no warranty as to the accuracy or completeness of the advertisement or any linked or associated information, and Rightmove has no control over the content. This property advertisement does not constitute property particulars. The information is provided and maintained by Rettie, Town & Country. Please contact the selling agent or developer directly to obtain any information which may be available under the terms of The Energy Performance of Buildings (Certificates and Inspections) (England and Wales) Regulations 2007 or the Home Report if in relation to a residential property in Scotland.
Map data ©OpenStreetMap contributors.








