3 bedroom end of terrace house for sale
Manchester Road, Haslingden, Rossendale

- PROPERTY TYPE
End of Terrace
- BEDROOMS
3
- BATHROOMS
1
- SIZE
Ask agent
- TENUREDescribes how you own a property. There are different types of tenure - freehold, leasehold, and commonhold.Read more about tenure in our glossary page.
Freehold
Key features
- Tenure Leasehold
- Council Tax Band A
- EPC Rating C
- Off Road Parking Available To Rear Of Property With Double Drive
- Three Well Proportioned Bedrooms Set Over Two Floors
- Ample Indoor Living Space
- No Chain Delay And Ready To Move Into
- Contemporary Fitted Kitchen And Three Piece Bathroom Suite
- Easy Access To Major Network Links
- Sought After Location
Description
Having been fully updated throughout with immaculate presentation, modern fixtures and fittings and neutral decoration, this enviable three bedroom end terraced property is being proudly welcomed to the market in the desirable location of Haslingden. With two living areas, fantastic loft conversion and enviable garden space with an impressive double driveway, this outstanding property is the perfect family home ready to move straight into with no chain delay! Situated conveniently close to bus routes, local schools and amenities, as well as network links to Rawtenstall, Manchester, Blackburn and major motorway links.
The property comprises briefly; a welcoming entrance hallway provides access through to two spacious reception rooms and houses a staircase to the first floor. The second reception room guides you through to a contemporary fitted kitchen. The first floor comprises of doors on to two generously sized bedrooms, modern bathroom and houses a staircase to the second floor. The second floor benefits from a fantastic third bedroom. Externally there is an enclosed garden to the rear with laid to lawn, paving and double driveway.
For further information or to arrange a viewing please contact our Rossendale branch at your earliest convenience.
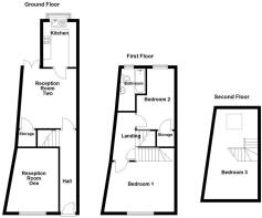
Ground Floor -
Entrance - UPVC double glazed leaded frosted door to hall.
Hall - 5.33m x 1.07m (17'6 x 3'6) - Central heating radiator, corbel, hard wood doors to two reception rooms and stairs to first floor.
Reception Room One - 4.14m x 3.43m (13'7 x 11'3) - UPVC double glazed window, central heating radiator and meter cupboard.
Reception Room Two - 3.89m x 3.71m (12'9 x 12'2) - Central heating radiator, spotlights, electric mounted fire, under stairs storage with main boiler, door to kitchen and UPVC double glazed French doors to rear.
Kitchen - 2.87m x 2.16m (9'5 x 7'1 ) - UPVC double glazed box window, vaulted ceiling with Velux window, central heating radiator, range of panelled wall and base units granite effect surface, tiled splash back, composite sink and drainer with high spout spring mixer tap, integrated electric oven with four ring gas hob and extractor hood, integrated fridge freezer and washing machine, tiled floor.
First Floor -
Landing - 2.92m x 1.40m (9'7 x 4'7) - Hard wood doors to two bedrooms, bathroom and door to stairs to second floor.
Bedroom One - 4.72m x 3.99m (15'6 x 13'1) - UPVC double glazed window, central heating radiator and original fireplace.
Bedroom Two - 3.71m x 2.46m (12'2 x 8'1) - UPVC double glazed window, central heating radiator and over stairs storage.
Bathroom - 2.77m x 1.73m (9'1 x 5'8) - UPVC double glazed frosted window, central heating radiator, dual flush WC, pedestal wash basin, panel bath with direct feed shower, tiled elevation, spotlights, tiled effect lino.
Second Floor -
Bedroom Three - 5.92m x 3.53m (19'5 x 11'7) - Velux window, central heating radiator, exposed brick wall.
External -
Rear - Enclosed yard.
Brochures
Manchester Road, Haslingden, RossendaleBrochure- COUNCIL TAXA payment made to your local authority in order to pay for local services like schools, libraries, and refuse collection. The amount you pay depends on the value of the property.Read more about council Tax in our glossary page.
- Band: A
- PARKINGDetails of how and where vehicles can be parked, and any associated costs.Read more about parking in our glossary page.
- Yes
- GARDENA property has access to an outdoor space, which could be private or shared.
- Yes
- ACCESSIBILITYHow a property has been adapted to meet the needs of vulnerable or disabled individuals.Read more about accessibility in our glossary page.
- Ask agent
Manchester Road, Haslingden, Rossendale
Add an important place to see how long it'd take to get there from our property listings.
__mins driving to your place
Get an instant, personalised result:
- Show sellers you’re serious
- Secure viewings faster with agents
- No impact on your credit score
Your mortgage
Notes
Staying secure when looking for property
Ensure you're up to date with our latest advice on how to avoid fraud or scams when looking for property online.
Visit our security centre to find out moreDisclaimer - Property reference 34051663. The information displayed about this property comprises a property advertisement. Rightmove.co.uk makes no warranty as to the accuracy or completeness of the advertisement or any linked or associated information, and Rightmove has no control over the content. This property advertisement does not constitute property particulars. The information is provided and maintained by Keenans Estate Agents, Rawtenstall. Please contact the selling agent or developer directly to obtain any information which may be available under the terms of The Energy Performance of Buildings (Certificates and Inspections) (England and Wales) Regulations 2007 or the Home Report if in relation to a residential property in Scotland.
*This is the average speed from the provider with the fastest broadband package available at this postcode. The average speed displayed is based on the download speeds of at least 50% of customers at peak time (8pm to 10pm). Fibre/cable services at the postcode are subject to availability and may differ between properties within a postcode. Speeds can be affected by a range of technical and environmental factors. The speed at the property may be lower than that listed above. You can check the estimated speed and confirm availability to a property prior to purchasing on the broadband provider's website. Providers may increase charges. The information is provided and maintained by Decision Technologies Limited. **This is indicative only and based on a 2-person household with multiple devices and simultaneous usage. Broadband performance is affected by multiple factors including number of occupants and devices, simultaneous usage, router range etc. For more information speak to your broadband provider.
Map data ©OpenStreetMap contributors.




