Wickham Fields, Hazeley Road, Twyford, Hampshire, SO21

- PROPERTY TYPE
Detached
- BEDROOMS
3
- BATHROOMS
2
- SIZE
Ask agent
- TENUREDescribes how you own a property. There are different types of tenure - freehold, leasehold, and commonhold.Read more about tenure in our glossary page.
Freehold
Key features
- Reservations now being taken off-plan. Three already reserved
- Under construction by Alfred Homes
- 2,540sqft*
- Impressive entrance hall
- Spacious kitchen/dining and family room with French doors garden
- Good-sized drawing room
- First floor study area
- First floor utility room
- Exceptional principal bedroom suite with furnished dressing room and en suite shower room
- Two further double bedrooms with en suites
Description
RESERVATIONS NOW BEING TAKEN OFF PLAN
WICKHAM FIELDS
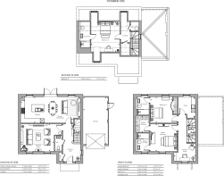
Number One Wickham Fields in the popular village of Twyford, four miles from the centre of Winchester, is part of an exclusive new development under construction by Alfred Homes. This fantastic three-bedroom property offers impressive living accommodation, garage, parking and garden.
The ground floor accommodation comprises a good-sized drawing room with double aspect overlooking the front garden and a spacious kitchen, dining and family room running the entire width of the house at the rear, with French doors to the garden. There is also a guest cloakroom on this floor.
On the first floor is the master bedroom suite, with a beautifully furnished dressing room and luxurious bathroom, with double bedroom two also benefitting from an en suite plus built-in wardrobe. The utility room is on this floor, plus a useful study area overlooking the front of the home.
Upstairs is a further double bedroom with en suite shower room and storage space.
An Air Source Heat Pump has been installed at this property to generate electricity for heating and domestic hot water.
Number One also benefits from a garage and driveway parking plus a car charging point, with attractive planting to the front and a landscaped rear garden mostly laid to lawn with some planted boarders and specimen trees.
NB. IMAGES SHOWN ARE FROM A PREVIOUS SHOW HOME BY ALFRED HOMES
Wickham Fields is an exclusive new development of just 22 homes, and benefits from a range of first-class amenities within easy walking distance including a pharmacy and surgery, well-stocked general store and post office plus a lovely café with garden.
The village itself also has two super pubs, a community hall and cricket pitch, plus Twyford School and St Mary’s Primary school. Winchester itself, with all this eclectic city has to offer, is just 4 miles away and it’s equally easy to reach the M3 which will take you to Heathrow and London in about an hour, or Southampton and the South Coast in 30/45minutes by car. Semi-fast services to Waterloo run from Shawford Station, or direct services in under an hour from Winchester mainline station. Southampton Airport is only 20 minutes’ drive.
For country lovers, what can be better than the beautiful South Downs National Park literally on the doorstep? There is also a beautiful (and flat), walk along the River Itchen to Winchester College and the city, or another across the Downs to St Catherine’s Hill – and wild-water swimmers will certainly enjoy Twyford Locks!
- COUNCIL TAXA payment made to your local authority in order to pay for local services like schools, libraries, and refuse collection. The amount you pay depends on the value of the property.Read more about council Tax in our glossary page.
- Band: TBC
- PARKINGDetails of how and where vehicles can be parked, and any associated costs.Read more about parking in our glossary page.
- Garage,Off street
- GARDENA property has access to an outdoor space, which could be private or shared.
- Yes
- ACCESSIBILITYHow a property has been adapted to meet the needs of vulnerable or disabled individuals.Read more about accessibility in our glossary page.
- Ask agent
Energy performance certificate - ask agent
Wickham Fields, Hazeley Road, Twyford, Hampshire, SO21
Add an important place to see how long it'd take to get there from our property listings.
__mins driving to your place
Get an instant, personalised result:
- Show sellers you’re serious
- Secure viewings faster with agents
- No impact on your credit score
Your mortgage
Notes
Staying secure when looking for property
Ensure you're up to date with our latest advice on how to avoid fraud or scams when looking for property online.
Visit our security centre to find out moreDisclaimer - Property reference HEA250237. The information displayed about this property comprises a property advertisement. Rightmove.co.uk makes no warranty as to the accuracy or completeness of the advertisement or any linked or associated information, and Rightmove has no control over the content. This property advertisement does not constitute property particulars. The information is provided and maintained by Charters, Winchester. Please contact the selling agent or developer directly to obtain any information which may be available under the terms of The Energy Performance of Buildings (Certificates and Inspections) (England and Wales) Regulations 2007 or the Home Report if in relation to a residential property in Scotland.
*This is the average speed from the provider with the fastest broadband package available at this postcode. The average speed displayed is based on the download speeds of at least 50% of customers at peak time (8pm to 10pm). Fibre/cable services at the postcode are subject to availability and may differ between properties within a postcode. Speeds can be affected by a range of technical and environmental factors. The speed at the property may be lower than that listed above. You can check the estimated speed and confirm availability to a property prior to purchasing on the broadband provider's website. Providers may increase charges. The information is provided and maintained by Decision Technologies Limited. **This is indicative only and based on a 2-person household with multiple devices and simultaneous usage. Broadband performance is affected by multiple factors including number of occupants and devices, simultaneous usage, router range etc. For more information speak to your broadband provider.
Map data ©OpenStreetMap contributors.




