Farm for sale
Chapel Street, Shafton, Barnsley
- SIZE
Ask agent
- SECTOR
Farm for sale
Key features
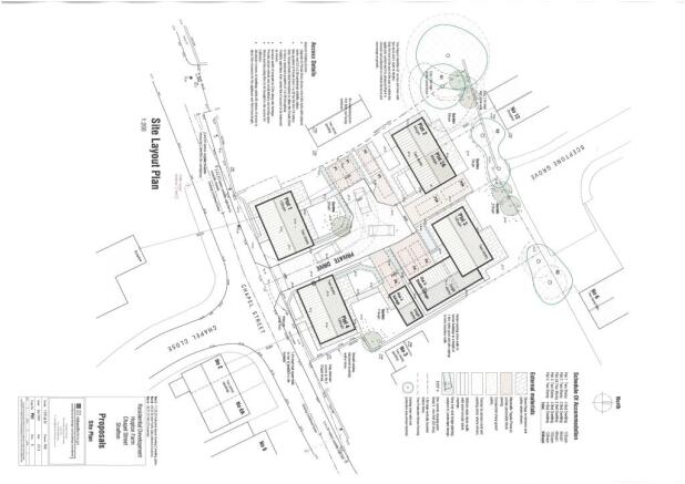
- Residential Development Site
- Outline Planning Permission for up to 5 units
- Planning Reference 2025/0141
Description
This well-located development site benefits from outline planning consent with details of access to provide up to 5 units. Serviced by a private driveway in an enclosed setting, it lies within an established residential area in the village of Shafton.
Being close to a wide variety of local amenities including a health centre, junior & senior schools, together with local shops, the property is also within easy travelling distance of Barnsley, Pontefract and Wakefield.
The site is easily accessible to Sheffield City Centre, Barnsley and the A1 and M1 networks together with the Peak District National Park.
Brochures
Chapel Street, Shafton, Barnsley
NEAREST STATIONS
Distances are straight line measurements from the centre of the postcode- Fitzwilliam Station2.9 miles
- Barnsley Station4.0 miles
- Moorthorpe Station4.3 miles
Notes
Disclaimer - Property reference 1165. The information displayed about this property comprises a property advertisement. Rightmove.co.uk makes no warranty as to the accuracy or completeness of the advertisement or any linked or associated information, and Rightmove has no control over the content. This property advertisement does not constitute property particulars. The information is provided and maintained by Wilbys Chartered Surveyors, Barnsley. Please contact the selling agent or developer directly to obtain any information which may be available under the terms of The Energy Performance of Buildings (Certificates and Inspections) (England and Wales) Regulations 2007 or the Home Report if in relation to a residential property in Scotland.
Map data ©OpenStreetMap contributors.




