
Devonian House, Kirriemuir, DD8 5PG

- PROPERTY TYPE
Detached
- BEDROOMS
5
- BATHROOMS
5
- SIZE
3,595 sq ft
334 sq m
- TENUREDescribes how you own a property. There are different types of tenure - freehold, leasehold, and commonhold.Read more about tenure in our glossary page.
Freehold
Key features
- Luxury Modern Home
- Stylish Master En-Suite
- Vaulted Lounge with Drinks Bar & Panoramic Views
- Expansive Open Plan Living
- Bespoke Oak Staircase
- Flexible Five Bedroom Layout
- Double Garage With Floored Attic
- Generous Plot
Description
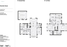
Devonian House is a striking contemporary residence that captures both elegance and ease. Built in 2014, it makes an immediate impression with its dramatic glass gable and bold, clean lines—set against a tranquil rural backdrop. This is a home designed not just to be seen, but to be lived in—where space, light, and thoughtful design come together to offer something truly special.
Step through the front door and you're welcomed into a luxurious hallway, where a bespoke oak staircase with glass balustrade sets a confident, sophisticated tone. From here, the home opens into a spectacular open-plan kitchen, dining, and family room—stretching over 14 metres and designed for modern living. Sleek cabinetry, a central island, and a hidden pantry (which could be adapted as a fifth bedroom) create both style and versatility. Aluminium bi-fold doors lead directly out to the garden, while underfloor heating across the entire ground floor ensures year-round comfort. A separate utility room and W/C, just off the kitchen, add to the home’s everyday practicality.
Upstairs, the fully glass-panelled landing introduces a show-stopping lounge and bar—where vaulted ceilings and a dramatic wall of glazing frame sweeping countryside views. This space, complete with a dedicated bar area, offers the perfect setting for entertaining or unwinding in style.
Accommodation is generous and flexible, with four double bedrooms across two floors. On the ground floor, two bedrooms are served by a stylish Jack and Jill bathroom—ideal for guests, teenagers, or multigenerational living. Upstairs, both bedrooms feature en-suites; one with a spacious dressing room, the other with expansive windows overlooking the landscaped rear garden.
Outside, the rear garden has been thoughtfully designed for low-maintenance enjoyment, featuring artificial grass, a pergola with a slate roof and electricity, and generous space for outdoor dining or relaxing. The front lawn is equally well maintained, creating a strong first impression. Completing the picture is a large detached double garage, fully powered and fitted with a floored attic—offering superb storage or future potential.
Devonian House is more than just a home—it’s a lifestyle. A seamless blend of architectural vision, comfort, and countryside charm, designed for those who appreciate quality, space, and thoughtful detail.
EPC Rating: C
Brochures
Home Report- COUNCIL TAXA payment made to your local authority in order to pay for local services like schools, libraries, and refuse collection. The amount you pay depends on the value of the property.Read more about council Tax in our glossary page.
- Band: G
- PARKINGDetails of how and where vehicles can be parked, and any associated costs.Read more about parking in our glossary page.
- Yes
- GARDENA property has access to an outdoor space, which could be private or shared.
- Private garden
- ACCESSIBILITYHow a property has been adapted to meet the needs of vulnerable or disabled individuals.Read more about accessibility in our glossary page.
- Ask agent
Energy performance certificate - ask agent
Devonian House, Kirriemuir, DD8 5PG
Add an important place to see how long it'd take to get there from our property listings.
__mins driving to your place
Get an instant, personalised result:
- Show sellers you’re serious
- Secure viewings faster with agents
- No impact on your credit score
Your mortgage
Notes
Staying secure when looking for property
Ensure you're up to date with our latest advice on how to avoid fraud or scams when looking for property online.
Visit our security centre to find out moreDisclaimer - Property reference d0e3c8d9-85a0-46d5-874f-c6ea4958be1a. The information displayed about this property comprises a property advertisement. Rightmove.co.uk makes no warranty as to the accuracy or completeness of the advertisement or any linked or associated information, and Rightmove has no control over the content. This property advertisement does not constitute property particulars. The information is provided and maintained by Verdala, Dundee. Please contact the selling agent or developer directly to obtain any information which may be available under the terms of The Energy Performance of Buildings (Certificates and Inspections) (England and Wales) Regulations 2007 or the Home Report if in relation to a residential property in Scotland.
*This is the average speed from the provider with the fastest broadband package available at this postcode. The average speed displayed is based on the download speeds of at least 50% of customers at peak time (8pm to 10pm). Fibre/cable services at the postcode are subject to availability and may differ between properties within a postcode. Speeds can be affected by a range of technical and environmental factors. The speed at the property may be lower than that listed above. You can check the estimated speed and confirm availability to a property prior to purchasing on the broadband provider's website. Providers may increase charges. The information is provided and maintained by Decision Technologies Limited. **This is indicative only and based on a 2-person household with multiple devices and simultaneous usage. Broadband performance is affected by multiple factors including number of occupants and devices, simultaneous usage, router range etc. For more information speak to your broadband provider.
Map data ©OpenStreetMap contributors.






