3 bedroom bungalow for sale
Haven View, Cookridge, Leeds, West Yorkshire, LS16

- PROPERTY TYPE
Bungalow
- BEDROOMS
3
- BATHROOMS
1
- SIZE
Ask agent
- TENUREDescribes how you own a property. There are different types of tenure - freehold, leasehold, and commonhold.Read more about tenure in our glossary page.
Freehold
Key features
- Most sought after, quiet Cookridge position.
- Spacious 2 double bed., (scope for 3 beds) true bungalow.
- Sits in well tended, thoughtfully designed gardens.
- The rear is a real feature!
- Parking for 4 cars & a single detached garage.
- Generous lounge, dining/reception/bedroom 3 with patio doors through to the conservatory/garden room.
- Modern fitted kitchen with access out to the rear garden.
- Principal bedrooms with fitted wardrobes.
- Fully tiled 4 piece bathroom.
- Close to amenities, schools & great road, rail & airport links.
Description
Haven View is a lovely, sought after, quiet Cookridge position yet close to excellent amenities, highly regarded schooling & great road, rail & airport links.
Such a great opportunity, not to be missed, call us - .
LOCATION
Cookridge is a popular village with a good mix of accommodation and amenities available, along with reputable schools, a recently re-designed and re-furbished sports club/swimming pool, Asda superstore and a Health Centres at Holt Park. Ideally situated for access to Otley Road (A660) and the Ring Road (A6120) thus making commuting straight forward. Public transport facilities are good by bus or alternatively by railway from the Horsforth Train Station located at the bridge on the Horsforth/Cookridge border. Horsforth village is just next-door where a vast range of shops, supermarkets, pubs and restaurants can be found. Beautiful countryside can be found within a short distance and the Cookridge Hall Golf Course and Bannatyne health club are on the doorstep. Headingley is a short distance away with a vibrant mix of shops and restaurants, plus the renowned Headingley Stadium for rugby & Cricket.
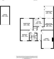
GROUND FLOOR
This beautifully presented, true bungalow offers a welcoming, spacious hallway upon entry which gives access to each room and offers useful fitted storage. At the front of the property with large picture window is a generous, light and airy lounge with pleasant outlook, feature fireplace housing a gas fire & lots of natural light. Directly opposite the front entrance door is the fitted kitchen with pleasant rear garden views, access out to the garden and with space for a tall fridge freezer, a cooker and plumbing for a washing machine. Adjacent to the kitchen, at the other side of the lounge is a really versatile space, could be a 3rd bedroom, 2nd reception or you could open it up to create a large dining kitchen. It has sliding patio doors through to a conservatory/garden room. The conservatory roof is insulated so a useful all year round space with pleasant garden outlook and doors out to the rear garden. The two double bedrooms are at the far end of the bungalow, the Principal at the rear of the property with built in furniture and the 2nd to the front, a perfect guest room. The bathroom is fully tiled with four pieces and luxury appointment, comprising a bath, corner shower enclosure WC and wash hand basin.
OUTSIDE
There are gardens to both the front and rear, the front has been thoughtfully designed for low maintenance with stone paving offering parking for up to four cars and there are mature shrubs, planted borders and a neat Astroturf lawn. The driveway leads to a single detached garage with electric shutter door and has access to the rear garden. The rear garden is a real feature, a private, tranquil oasis, again thoughtfully designed with two seating areas, one deck and the other stone flagged. An Astroturf lawn keeps things smart and tidy while colourful boarders and fruit tress attract wildlife into the garden. A fabulous, peaceful place to sit and enjoy, during the day or in the evening!
BROCHURE DETAILS
Hardisty and Co prepared these details, including photography, in accordance with our estate agency agreement.
SERVICES - Disclosure of Financial Interests
Unless instructed otherwise, the company would normally offer all clients, applicants, and prospective purchasers its full range of estate agency services, including the valuation of their present property and sales service. We also intend to offer clients, applicants and prospective purchasers' mortgage and financial services advice through our association with Mortgage Advice Bureau. We will also offer to clients and prospective purchasers the services of our panel solicitors, removers, and contactors. We would normally be entitled to commission or fees for such services and disclosure of all our financial interests can be found on our website.
MORTGAGE SERVICES
We are whole of market and would love to help with your purchase or remortgage. Call to book your appointment today option 4.
- COUNCIL TAXA payment made to your local authority in order to pay for local services like schools, libraries, and refuse collection. The amount you pay depends on the value of the property.Read more about council Tax in our glossary page.
- Band: D
- PARKINGDetails of how and where vehicles can be parked, and any associated costs.Read more about parking in our glossary page.
- Yes
- GARDENA property has access to an outdoor space, which could be private or shared.
- Yes
- ACCESSIBILITYHow a property has been adapted to meet the needs of vulnerable or disabled individuals.Read more about accessibility in our glossary page.
- Ask agent
Haven View, Cookridge, Leeds, West Yorkshire, LS16
Add an important place to see how long it'd take to get there from our property listings.
__mins driving to your place
Get an instant, personalised result:
- Show sellers you’re serious
- Secure viewings faster with agents
- No impact on your credit score
Your mortgage
Notes
Staying secure when looking for property
Ensure you're up to date with our latest advice on how to avoid fraud or scams when looking for property online.
Visit our security centre to find out moreDisclaimer - Property reference HAD250727. The information displayed about this property comprises a property advertisement. Rightmove.co.uk makes no warranty as to the accuracy or completeness of the advertisement or any linked or associated information, and Rightmove has no control over the content. This property advertisement does not constitute property particulars. The information is provided and maintained by Hardisty, Horsforth. Please contact the selling agent or developer directly to obtain any information which may be available under the terms of The Energy Performance of Buildings (Certificates and Inspections) (England and Wales) Regulations 2007 or the Home Report if in relation to a residential property in Scotland.
*This is the average speed from the provider with the fastest broadband package available at this postcode. The average speed displayed is based on the download speeds of at least 50% of customers at peak time (8pm to 10pm). Fibre/cable services at the postcode are subject to availability and may differ between properties within a postcode. Speeds can be affected by a range of technical and environmental factors. The speed at the property may be lower than that listed above. You can check the estimated speed and confirm availability to a property prior to purchasing on the broadband provider's website. Providers may increase charges. The information is provided and maintained by Decision Technologies Limited. **This is indicative only and based on a 2-person household with multiple devices and simultaneous usage. Broadband performance is affected by multiple factors including number of occupants and devices, simultaneous usage, router range etc. For more information speak to your broadband provider.
Map data ©OpenStreetMap contributors.







