Residential development for sale
Old Nazeing Road, Broxbourne, EN10
- PROPERTY TYPE
Residential Development
- SIZE
Ask agent
Key features
- Residential Development Opportunity
- PLANNING PERMISSION GRANTED
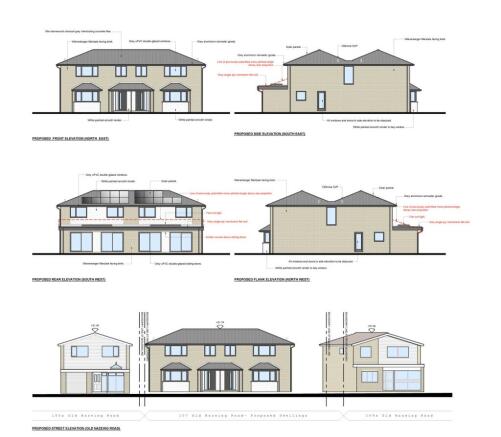
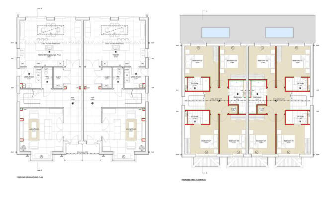
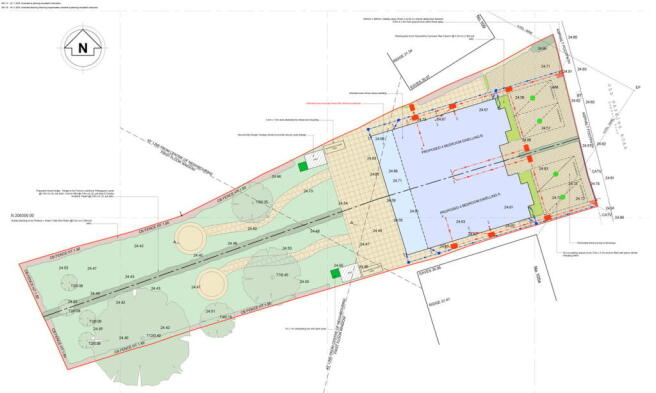
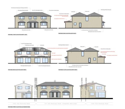
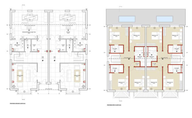
- PP for 2 x luxury 4-Bedroom Houses
- Generous Plot
- Prestigious neighbourhood
- Walking distance to Broxbourne station providing fast and frequent services into London
- Close to highly-regarded state, grammar and independent schools
- Easy access to A10 / M25
- Viewings strictly by appointment only
Description
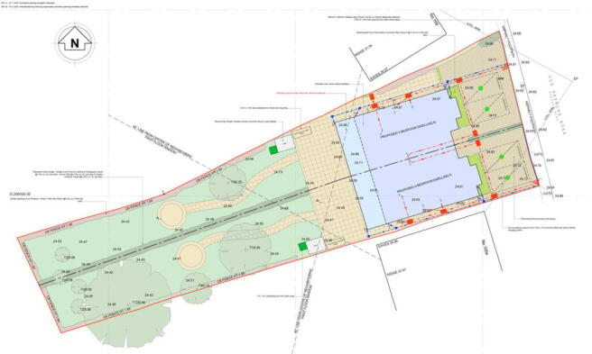
Woodhouse are pleased to offer this substantial plot set in a coveted neighbourhood of Broxbourne.
Planning Permission has been granted for the demolition of the existing bungalow, to be replaced by 2 x 4-Bedroom luxury family homes. More details can be found on the Epping Forest Planning Portal using reference EPF/0752/25 - and contact us for further information and to arrange a site visit.
Broxbourne is ideally located for commuting professionals & families that prefer living in the Home Counties yet so close to the city. You are walking distance to Broxbourne Station with its fast and frequent service into Liverpool St / Tottenham Hale / Stratford. For road links the A10 and M25 are a very short drive away. There is the benefit of being in close proximity to a selection of highly-regarded state, grammar and private schools.
Contact Woodhouse today to discuss further the potential and opportunity this site offers.
Mobile Signal
4G excellent data and voice
SALES DISCLAIMER
Services, fixtures and fittings haven’t been tested.
All measurements are approximate.
Your solicitor will confirm tenure and any other legal information.
As required by Money Laundering Regulations, should your offer be accepted, we will require proof of identity & funds.
Old Nazeing Road, Broxbourne, EN10
NEAREST STATIONS
Distances are straight line measurements from the centre of the postcode- Broxbourne Station0.6 miles
- Rye House Station2.2 miles
- Cheshunt Station2.5 miles
Notes
Disclaimer - Property reference 29312186. The information displayed about this property comprises a property advertisement. Rightmove.co.uk makes no warranty as to the accuracy or completeness of the advertisement or any linked or associated information, and Rightmove has no control over the content. This property advertisement does not constitute property particulars. The information is provided and maintained by Woodhouse, Cheshunt. Please contact the selling agent or developer directly to obtain any information which may be available under the terms of The Energy Performance of Buildings (Certificates and Inspections) (England and Wales) Regulations 2007 or the Home Report if in relation to a residential property in Scotland.
Map data ©OpenStreetMap contributors.







