Western Road, Stratford-Upon-Avon CV37 0AH
- SIZE AVAILABLE
2,204 sq ft
205 sq m
- SECTOR
Commercial property to lease
Lease details
- Lease available date:
- Ask agent
Key features
- 2,204 sq ft (204.75 m2)
- Suitable for a multitude of uses (STP)
- First Floor Offices
- Recent Refurbishment
- £29,950 pa + VAT
Description
The property is constructed of brickwork with trussed roof and has undergone considerable refurbishment with a new insulated roof, new gutters, new suspended ceiling and LED lights, electrics, windows and redecoration.
The property is set back from the street allowing 3-4 parking paces plus the use of the gated side yard which could tantum park further vans or cars potentially. The unit is accessed via gated entrance through a set of double doors into the main display area. This area has tiled floors, freshly painted walls, new suspended ceiling with LED lights and a toilet facility. There is a staircase to the front of the building to a first floor offices room which has also been refurbished to a good standard and has two front facing opening windows.
Location: - Heading into Stratford in a southern direction on the A3400 Birmingham Rd take the first left after the canal bridge and McDonalds on your right-hand side. The units are located halfway down Western Road on the right hand side between the Snooker club and Listers Audi.
Description: - The property is constructed of brickwork with trussed roof and has undergone considerable refurbishment with a new insulated roof, new gutters, new suspended ceiling and LED lights, electrics, windows and redecoration.
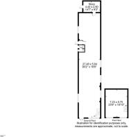
The property is set back from the street allowing 3-4 parking paces plus the use of the gated side yard which could tantum park further vans or cars potentially. The unit is accessed via gated entrance through a set of double doors into the main display area. This area has tiled floors, freshly painted walls, new suspended ceiling with LED lights and a toilet facility. To the rear is s store room and the lean-to structure shown on the floor plan has now been demolished and used as rear yard. There is a staircase to the front of the building to a first floor offices room which has also been refurbished to a good standard and has two front facing opening windows.
Floor Area: - Gross Internal Area (GIA) is 2,204 sq ft (204.75 m2).
Price: - £29,950 Per Annum
Tenure: - New Lease Available
Service Charge: - To be confirmed.
Rateable Value - Current rateable value (1 April 2023 to present) £63,000 * (Combined 13-15) *, source: .
Rates Payable: - The rates payable are calculated as a multiplier of the rateable value. If the rateable value is £12,000 or less, small businesses may be entitled to 100% rates relief providing the property is their only business premises. Any interested applicants should contact the local authority and verify the multiplier and check if any rates relief is available for their business.
Insurance: - Standard commercial terms are that the landlord insures the building and the tenant pays the landlord the cost of the buildings insurance annually. The tenant will be responsible for insuring their own stock, content and liabilities.
Legal Costs & Holding Deposit: - Each party pays their own legal costs. The landlord may request a holding deposit of £1,000 once terms are agreed this will be deducted off the first payment of rent.
Deposit: - The landlord may ask the tenant to provide a deposit, this is typically the equivalent of three months worth of rent but could change and is subject of the tenant’s financial status.
Vat: - Value Added Tax at the prevailing rate is applicable on all costs shown in these particulars apart from business rates.
Epc: - The Energy Performance Rating of the property is = C. A full copy of this report is available from the agent’s office upon request.
Viewing: - Viewing strictly by prior appointment with sole agent:
Richard Johnson: - Westbridge Commercial Ltd
1st Floor Offices
3 Trinity Street
Stratford Upon Avon
CV37 6BL
Tel:
Gdpr: - You have requested a viewing of a property and therefore we will require certain pieces of personal information from you in order to provide a professional service to you and our client. Should you wish to take up a tenancy the process will involve collecting personal information about you or your company which will need to be shared with our client and Credit Safe or other credit referencing agencies. We will not share this information with any other third party without your consent. More information on how we hold and process your data is available on our website
- 2,204 sq ft (204.75 m2)
- Suitable for a Multitude of Uses (STP)
- First Floor Offices
- Recent Refurbishment
- £29,950 pa + VAT
- Parking to Front Elevation
- Rear Yard Area
- M40 7.5 Miles to J15
- Gated Side Yard
- Close to Train Station & Maybird Shopping Centre
Brochures
Western Road, Stratford-Upon-Avon CV37 0AH
NEAREST STATIONS
Distances are straight line measurements from the centre of the postcode- Stratford-upon-Avon Station0.2 miles
- Stratford-upon-Avon Parkway Station1.0 miles
- Wilmcote Station2.5 miles
Notes
Disclaimer - Property reference 34053166. The information displayed about this property comprises a property advertisement. Rightmove.co.uk makes no warranty as to the accuracy or completeness of the advertisement or any linked or associated information, and Rightmove has no control over the content. This property advertisement does not constitute property particulars. The information is provided and maintained by Westbridge Commercial Limited, Stratford Upon Avon. Please contact the selling agent or developer directly to obtain any information which may be available under the terms of The Energy Performance of Buildings (Certificates and Inspections) (England and Wales) Regulations 2007 or the Home Report if in relation to a residential property in Scotland.
Map data ©OpenStreetMap contributors.






