
Chancery Lane, Wells-next-the-Sea

- PROPERTY TYPE
Town House
- BEDROOMS
4
- BATHROOMS
4
- SIZE
2,261 sq ft
210 sq m
- TENUREDescribes how you own a property. There are different types of tenure - freehold, leasehold, and commonhold.Read more about tenure in our glossary page.
Freehold
Key features
- Conversion Opportunity
- Proposed 4 En-Suite Bedrooms
- PF/21/1533
- 2,261 sq ft
- Town Centre Location
- Grade II Listed
- Offered For Sale With No Onward Chain
- Potential For a Spacious Kitchen/Diner
- Bright And Airy Sitting Room With Views Over The Buttlands
Description
An exciting opportunity to acquire a conversion project of a landmark building, in the heart of Wells, overlooking The Buttlands. The building extends in all to about 2,261 sq ft (210 sq m), with proposed accommodation of; 4 en-suite bedrooms & a utility room to the ground floor and kitchen, 2 reception rooms & a cloakroom at first floor level, however the property lends itself to subdivision to 2 units (STPP). Building Regulation Approval has been issued for conversion from commercial to residential use, together with planning consent for external alterations. There is a small courtyard to the east and a roof garden is proposed, west facing, overlooking The Buttlands.
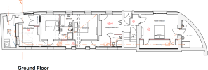
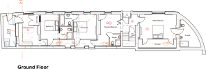
GROUND FLOOR:
Double entrance doors with fanlight over to;
LOBBY:
Part glazed door with side pane to;
MASTER BEDROOM: 17' 4" x 11' 8" (5.28m x 3.56m)
With
Dressing Area: 18'3" x 4'4" (5.56m x 1.32m)
Shuttered sash window to south. Original wrought iron gate and "thief-resisting" door with ornamental brick surround to;
EN-SUITE SHOWER ROOM: 13' x 10' max - 1'7" min (3.96m x 3.05m max - 0.48m min)
Terrazzo tiled floor and exposed brick walls.
RECEPTION/BEDROOM: 17' 5" x 15' 7" (5.31m x 4.75m) overall
Stairs to first floor with built-in cupboard under. Sash window to south, door to rear corridor and door to;
SHOWER ROOM: 5' 8" x 5' 7" (1.73m x 1.7m) max
REAR CORRIDOR:
BEDROOM: 12' x 10' 9" (3.66m x 3.28m)
Sash window to south and door to;
EN-SUITE BATHROOM: 6' 2" x 5' 10" (1.88m x 1.78m)
Sash window to south.
BEDROOM: 12' 1" x 8' 8" (3.68m x 2.64m)
Sash window to south and door to;
EN-SUITE: 5' 11" x 5' 4" (1.8m x 1.63m)
UTILITY/BOOT ROOM: 15' 3" x 9' 9" (4.65m x 2.97m) max
Sash window with side panes to south and door to courtyard.
FIRST FLOOR:
LANDING:
Doors to;
SITTING ROOM: 18' 4" x 16' 6" (5.59m x 5.03m) max
Former fireplace with pine surround/mantelpiece, moulded plaster ceiling patera, sash window with side panes to west overlooking The Buttlands, sash window to south and doors to roof garden and;
GALLERIED LANDING:
Sash window and door to;
BAR: 15' 5" x 10' 8" (4.7m x 3.25m) max
Brick fireplace with timber surround/mantelpiece, sash window to south and doors to;
CLOAKROOM: 5' 3" x 3' 3" (1.6m x 0.99m)
KITCHEN: 26' 4" x 15' 7" (8.03m x 4.75m) max
Exposed brick walls & roof timbers and concrete floor. Window to south and 3 rooflights.
OUTSIDE: At the eastern end of the building a door from the utility/boot room accesses a walled courtyard (14'8" x 6'1"), with a door giving pedestrian access to Chancery Lane.
SERVICES:
All mains services are connected to the property.
DISTRICT COUNCIL: North Norfolk.
The premises were previously assessed for Uniform Business Rates, at a Rateable Value of £9,500.
PLEASE NOTE:
Approval for conversion of the premises from commercial use to residential has been issued - PU/21/1279.
Planning application for external alterations has been granted - PF/21/1533.
VIEWING:
By appointment through the Sole Agents,
Spalding & Co.,
Office Opening Hours:
Monday - Friday: 9:00 a.m. - 5:00 p.m.
Saturday: 9:30 a.m. - 12:30 p.m.
- COUNCIL TAXA payment made to your local authority in order to pay for local services like schools, libraries, and refuse collection. The amount you pay depends on the value of the property.Read more about council Tax in our glossary page.
- Ask agent
- PARKINGDetails of how and where vehicles can be parked, and any associated costs.Read more about parking in our glossary page.
- On street
- GARDENA property has access to an outdoor space, which could be private or shared.
- Yes
- ACCESSIBILITYHow a property has been adapted to meet the needs of vulnerable or disabled individuals.Read more about accessibility in our glossary page.
- Ask agent
Chancery Lane, Wells-next-the-Sea
Add an important place to see how long it'd take to get there from our property listings.
__mins driving to your place
Get an instant, personalised result:
- Show sellers you’re serious
- Secure viewings faster with agents
- No impact on your credit score
Your mortgage
Notes
Staying secure when looking for property
Ensure you're up to date with our latest advice on how to avoid fraud or scams when looking for property online.
Visit our security centre to find out moreDisclaimer - Property reference 101285002083. The information displayed about this property comprises a property advertisement. Rightmove.co.uk makes no warranty as to the accuracy or completeness of the advertisement or any linked or associated information, and Rightmove has no control over the content. This property advertisement does not constitute property particulars. The information is provided and maintained by Spalding & Co, Fakenham. Please contact the selling agent or developer directly to obtain any information which may be available under the terms of The Energy Performance of Buildings (Certificates and Inspections) (England and Wales) Regulations 2007 or the Home Report if in relation to a residential property in Scotland.
*This is the average speed from the provider with the fastest broadband package available at this postcode. The average speed displayed is based on the download speeds of at least 50% of customers at peak time (8pm to 10pm). Fibre/cable services at the postcode are subject to availability and may differ between properties within a postcode. Speeds can be affected by a range of technical and environmental factors. The speed at the property may be lower than that listed above. You can check the estimated speed and confirm availability to a property prior to purchasing on the broadband provider's website. Providers may increase charges. The information is provided and maintained by Decision Technologies Limited. **This is indicative only and based on a 2-person household with multiple devices and simultaneous usage. Broadband performance is affected by multiple factors including number of occupants and devices, simultaneous usage, router range etc. For more information speak to your broadband provider.
Map data ©OpenStreetMap contributors.










