
Land for sale
Shebbear
- PROPERTY TYPE
Land
- SIZE
32,670 sq ft
3,035 sq m
Key features
- Large agricultural barn
- Plot of around 0.74 acres
- Close to village amenities
- Planning for spectacular 5-bed home
- Fabulous countryside location
- Rare opportunity
- Planning reference: 1/1188/2022/FUL
Description
Situation - Part of the charming parish of Buckland Filleigh, close to the villages of Shebbear and Langtree with access to village amenities and the market town of Great Torrington. The area has a range of schools (public and private), local shops, pubs, and community facilities, yet still delivering a sense of peaceful isolation. The barn is located on the eastern edge of Galmington Farm. The property is separate from the farm and offer seclusion and privacy.
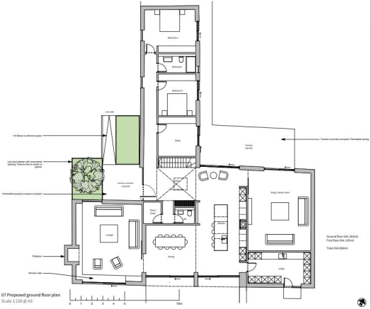
Description - A fantastic opportunity to purchase a building plot of approximately 0.74 acres positioned with full planning granted for an impressive and contemporary 5 bedroom detached residence with large open plan kitchen / dining room, separate sitting room, snug / garden room, study. Located on a generous plot, the barn enjoys a wonderful rural setting surrounded by countryside.
Planning was granted on the 5th April 2023 under Torridge planning reference 1/1188/2022/FUL. All the appropriate documentation can be reviewed on the Torridge District Council website using the planning reference provided above for access.
This is a unique proposal and could be suited for anyone looking to create their very own rural idyll.
Services - Mains water, planning permission for septic tank drainage.
Brochures
ShebbearShebbear
NEAREST STATIONS
Distances are straight line measurements from the centre of the postcode- Portsmouth Arms Station11.8 miles
Notes
Disclaimer - Property reference 34054003. The information displayed about this property comprises a property advertisement. Rightmove.co.uk makes no warranty as to the accuracy or completeness of the advertisement or any linked or associated information, and Rightmove has no control over the content. This property advertisement does not constitute property particulars. The information is provided and maintained by Stags, Bideford. Please contact the selling agent or developer directly to obtain any information which may be available under the terms of The Energy Performance of Buildings (Certificates and Inspections) (England and Wales) Regulations 2007 or the Home Report if in relation to a residential property in Scotland.
Map data ©OpenStreetMap contributors.










