3 bedroom semi-detached house for sale
Pilgrims Way, Weston-super-Mare, Somerset, BS22

- PROPERTY TYPE
Semi-Detached
- BEDROOMS
3
- BATHROOMS
1
- SIZE
Ask agent
- TENUREDescribes how you own a property. There are different types of tenure - freehold, leasehold, and commonhold.Read more about tenure in our glossary page.
Freehold
Key features
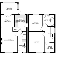
- Well-presented three-bedroom semi-detached home
- Open-plan living/dining room with great flow
- Modern fitted kitchen and bright conservatory
- Three good-sized bedrooms and family bathroom
- Spacious rear garden with patio for entertaining
- Garage and large driveway with ample parking
- Situated in a quiet cul-de-sac in a popular area
- Excellent local amenities and transport links via A370 & M5
Description
present this well-maintained and spacious three-bedroom semi-detached family home, set in a quiet cul-de-sac within a highly desirable and well-connected part of Weston-super-Mare. Offering generous accommodation throughout and a practical layout perfect for modern family life, this property is a must-see for first-time buyers, young families, or those looking to upsize.
Upon entering, you're greeted by a welcoming porch and hallway leading into a bright, open-plan living and dining space—perfect for entertaining or relaxed family evenings. The modern fitted kitchen opens into a light-filled conservatory that provides a versatile additional reception area with lovely views over the garden.
Upstairs, there are three well-proportioned bedrooms and a contemporary family bathroom. Each room is tastefully decorated, offering ready-to-move-into accommodation.
To the rear, the spacious, low-maintenance garden features a patio area ideal for summer dining and plenty of space for children or pets to play. The front of the property benefits from a large driveway providing ample off-road parking, as well as a garage offering additional storage or parking potential.
Located within easy reach of local shops, parks, schools (including Worle Village catchment), and transport links via the A370 and M5 motorway, this property ticks all the boxes for convenience and lifestyle. Weston-super-Mare’s vibrant seafront, Grand Pier, shopping centres, and mainline railway station are just a short drive away, making this a perfect base for commuting and coastal living alike.
A fantastic opportunity to own a stylish, spacious home in a family-friendly location—early viewing is highly recommended!
FREEHOLD
COUNCIL TAX C
EPC D
Should you wish to proceed with an offer on this property, we are obliged by HMRC to conduct mandatory Anti Money Laundering Checks. We outsource these checks to our compliance partners at Coadjute and they charge a fee for this service.
Brochures
Particulars- COUNCIL TAXA payment made to your local authority in order to pay for local services like schools, libraries, and refuse collection. The amount you pay depends on the value of the property.Read more about council Tax in our glossary page.
- Band: C
- PARKINGDetails of how and where vehicles can be parked, and any associated costs.Read more about parking in our glossary page.
- Yes
- GARDENA property has access to an outdoor space, which could be private or shared.
- Yes
- ACCESSIBILITYHow a property has been adapted to meet the needs of vulnerable or disabled individuals.Read more about accessibility in our glossary page.
- Ask agent
Pilgrims Way, Weston-super-Mare, Somerset, BS22
Add an important place to see how long it'd take to get there from our property listings.
__mins driving to your place
Get an instant, personalised result:
- Show sellers you’re serious
- Secure viewings faster with agents
- No impact on your credit score
Your mortgage
Notes
Staying secure when looking for property
Ensure you're up to date with our latest advice on how to avoid fraud or scams when looking for property online.
Visit our security centre to find out moreDisclaimer - Property reference CWM250340. The information displayed about this property comprises a property advertisement. Rightmove.co.uk makes no warranty as to the accuracy or completeness of the advertisement or any linked or associated information, and Rightmove has no control over the content. This property advertisement does not constitute property particulars. The information is provided and maintained by CJ Hole, Weston-super-Mare. Please contact the selling agent or developer directly to obtain any information which may be available under the terms of The Energy Performance of Buildings (Certificates and Inspections) (England and Wales) Regulations 2007 or the Home Report if in relation to a residential property in Scotland.
*This is the average speed from the provider with the fastest broadband package available at this postcode. The average speed displayed is based on the download speeds of at least 50% of customers at peak time (8pm to 10pm). Fibre/cable services at the postcode are subject to availability and may differ between properties within a postcode. Speeds can be affected by a range of technical and environmental factors. The speed at the property may be lower than that listed above. You can check the estimated speed and confirm availability to a property prior to purchasing on the broadband provider's website. Providers may increase charges. The information is provided and maintained by Decision Technologies Limited. **This is indicative only and based on a 2-person household with multiple devices and simultaneous usage. Broadband performance is affected by multiple factors including number of occupants and devices, simultaneous usage, router range etc. For more information speak to your broadband provider.
Map data ©OpenStreetMap contributors.




