Fern Hill, East Stour, Gillingham, SP8

- PROPERTY TYPE
Detached
- BEDROOMS
3
- BATHROOMS
1
- SIZE
Ask agent
- TENUREDescribes how you own a property. There are different types of tenure - freehold, leasehold, and commonhold.Read more about tenure in our glossary page.
Freehold
Key features
- DETACHED THREE BEDROOM COTTAGE
- NO CHAIN
- IN NEED OF COMPLETE RESTORATION
- THREE RECEPTION ROOMS
- OUT BUILDINGS
- 1/3 ACRE PLOT
- CHARACTER FEATURES
- OFF ROAD PARKING
- SURROUNDED BY FIELDS AND FARMLAND
Description
The deceptively spacious accommodation comprises three good sized bedrooms, three reception rooms, a basic kitchen, bathroom and utility area. The cottage benefits from original character features, stone stables/outbuildings, off road parking and a 1/3 acre garden with countryside views.
Situated in a semi rural location surrounded by farmland on the outskirts of East Stour and being only a short drive from the towns of Shaftesbury, Gillingham and Sturminster Newton.
Viewing Essential!
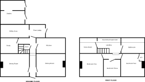
APPROACHED From the road through wooden double gates onto an area of ample off road parking. A small path leads through the front garden to a glazed UPVC front door.
ENTRANCE HALL: Original flagstone flooring, wooden doors to further rooms.
SITTING ROOM ( 13'1 x 12' ) UPVC double glazed window to front aspect, original features including flagstone flooring, attractive fireplace and exposed stone walls.
DINING ROOM ( 13' x 12'4 ) UPVC double glazed window to front aspect, original features including flagstone flooring, attractive fireplace, exposed stone walls and ceiling beams.
KITCHEN ( 12' x 8'8 ) A very basic kitchen with a corner oil fired Aga, UPVC double glazed window to rear aspect, flagstone flooring.
STUDY ( 8'8 x 8'7 ) UPVC double glazed window to rear aspect, painted stone walls, flagstone flooring.
UTILITY AREA ( 12'6 x 6'10 ) A useful area which was intended to be a utility room but remains open to a range of possible uses.
REAR LOBBY: UPVC double glazed window to rear aspect and matching door opens onto the garden.
LANDING: The stairs rise to the first floor landing which is open into the eaves. Doors to further rooms.
BEDROOM ONE ( 13'1 x 10'3 ) A large double bedroom with original elm floor boards, chimney breast, exposed ceiling beam, UPVC double glazed window to front aspect.
BEDROOM TWO ( 13'1 x 9'10 ) Another large double bedroom with original elm floor boards, chimney breast, UPVC double glazed window to front aspect, airing cupboard housing hot water cylinder.
BEDROOM THREE ( 9'9 x 8'7 ) A small double bedroom with UPVC double glazed window to front aspect, exposed beam, original elm floor boards.
FAMILY BATHROOM: Fitted with a basic suite comprising a low level wc, pedestal wash hand basin and a panel enclosed bath. UPVC double glazed window to side aspect.
STORE ROOM ( 7'8 x 6'7 ) To the end of the landing is a small store room with restricted head room that provides ideal storage.
OUTSIDE: The rear garden is of a fantastic size extending to approximately 1/3 of an acre of mature lawns interspersed with trees. To the bottom of the garden are fabulous field views.
STABLES ( 20' x 12'7 ): The original stone built stables provide excellent storage but could be utilised into further accommodation subject to planning.
OUTSIDE: The gardens are a delightful feature extending to approximately 1/3 of an acre of well kept lawn with herbaceous borders, fruit trees and a large corrugated shed. To the bottom of the garden are fabulous countryside outlooks over neighbouring fields.
TENURE: Freehold
EPC: Exempt - Grade II Listed
Council Tax - D
- COUNCIL TAXA payment made to your local authority in order to pay for local services like schools, libraries, and refuse collection. The amount you pay depends on the value of the property.Read more about council Tax in our glossary page.
- Ask agent
- PARKINGDetails of how and where vehicles can be parked, and any associated costs.Read more about parking in our glossary page.
- Yes
- GARDENA property has access to an outdoor space, which could be private or shared.
- Yes
- ACCESSIBILITYHow a property has been adapted to meet the needs of vulnerable or disabled individuals.Read more about accessibility in our glossary page.
- Ask agent
Energy performance certificate - ask agent
Fern Hill, East Stour, Gillingham, SP8
Add an important place to see how long it'd take to get there from our property listings.
__mins driving to your place
Get an instant, personalised result:
- Show sellers you’re serious
- Secure viewings faster with agents
- No impact on your credit score

Your mortgage
Notes
Staying secure when looking for property
Ensure you're up to date with our latest advice on how to avoid fraud or scams when looking for property online.
Visit our security centre to find out moreDisclaimer - Property reference firtree. The information displayed about this property comprises a property advertisement. Rightmove.co.uk makes no warranty as to the accuracy or completeness of the advertisement or any linked or associated information, and Rightmove has no control over the content. This property advertisement does not constitute property particulars. The information is provided and maintained by Hambledon Estate Agents, Shaftesbury. Please contact the selling agent or developer directly to obtain any information which may be available under the terms of The Energy Performance of Buildings (Certificates and Inspections) (England and Wales) Regulations 2007 or the Home Report if in relation to a residential property in Scotland.
*This is the average speed from the provider with the fastest broadband package available at this postcode. The average speed displayed is based on the download speeds of at least 50% of customers at peak time (8pm to 10pm). Fibre/cable services at the postcode are subject to availability and may differ between properties within a postcode. Speeds can be affected by a range of technical and environmental factors. The speed at the property may be lower than that listed above. You can check the estimated speed and confirm availability to a property prior to purchasing on the broadband provider's website. Providers may increase charges. The information is provided and maintained by Decision Technologies Limited. **This is indicative only and based on a 2-person household with multiple devices and simultaneous usage. Broadband performance is affected by multiple factors including number of occupants and devices, simultaneous usage, router range etc. For more information speak to your broadband provider.
Map data ©OpenStreetMap contributors.




