Trenance Road, Newquay

- BEDROOMS
6
- BATHROOMS
6
- SIZE
Ask agent
- TENUREDescribes how you own a property. There are different types of tenure - freehold, leasehold, and commonhold.Read more about tenure in our glossary page.
Freehold
Key features
- Rent income £2560 PCM, potential to increase
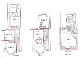
- 6 self-contained units, converted with PP
- Rear Yard let with ground floor flat
- Single Garage/Workshop for landlord use
- Gas Central Heating from one boiler
- Card meters for unit electricity
- Going concern, fully let with AST’s and no arrears
- Central Newquay Location
- EICR certificates and communal fire alarm in place
- Turnkey investment opportunity
Description
Tenure - Freehold
Services - All mains. One metered water supply paid by landlord and included in the rent. One metered electricity supply paid by the landlord and reimbursed via pre-payment tenant card meters for each unit. One metered gas supply for central heating paid by landlord and included in the rent. Each tenant pays their own Council Tax
Epc - 6 x EPC’s all valid until 28 Jan 2031, all rated C
Arrears - £0
Council Tax - 6 x Band A
Tenancies - A – rolling tenancy dated 17/12/18 - £320pcm
B – rolling tenancy dated 4/7/24 - £400pcm
C – rolling tenancy dated 1/1/25 - £550pcm
D – rolling tenancy dated 1/9/21 - £320pcm
E – rolling tenancy dated 30/9/23 - £510pcm
F – rolling tenancy dated 11/4/24 - £460pcm
Eicr - 6 x EICR (all SATISFACTORY) dated 14th December 2023
Gas Safety - 1 x Gas Safety Record dated 11th January 2025
Services - All mains
Brochures
Trenance Road, NewquayBrochure- COUNCIL TAXA payment made to your local authority in order to pay for local services like schools, libraries, and refuse collection. The amount you pay depends on the value of the property.Read more about council Tax in our glossary page.
- Band: A
- PARKINGDetails of how and where vehicles can be parked, and any associated costs.Read more about parking in our glossary page.
- Yes
- GARDENA property has access to an outdoor space, which could be private or shared.
- Yes
- ACCESSIBILITYHow a property has been adapted to meet the needs of vulnerable or disabled individuals.Read more about accessibility in our glossary page.
- Ask agent
Energy performance certificate - ask agent
Trenance Road, Newquay
Add an important place to see how long it'd take to get there from our property listings.
__mins driving to your place
Get an instant, personalised result:
- Show sellers you’re serious
- Secure viewings faster with agents
- No impact on your credit score
Your mortgage
Notes
Staying secure when looking for property
Ensure you're up to date with our latest advice on how to avoid fraud or scams when looking for property online.
Visit our security centre to find out moreDisclaimer - Property reference 34056518. The information displayed about this property comprises a property advertisement. Rightmove.co.uk makes no warranty as to the accuracy or completeness of the advertisement or any linked or associated information, and Rightmove has no control over the content. This property advertisement does not constitute property particulars. The information is provided and maintained by Start & Co, Newquay. Please contact the selling agent or developer directly to obtain any information which may be available under the terms of The Energy Performance of Buildings (Certificates and Inspections) (England and Wales) Regulations 2007 or the Home Report if in relation to a residential property in Scotland.
*This is the average speed from the provider with the fastest broadband package available at this postcode. The average speed displayed is based on the download speeds of at least 50% of customers at peak time (8pm to 10pm). Fibre/cable services at the postcode are subject to availability and may differ between properties within a postcode. Speeds can be affected by a range of technical and environmental factors. The speed at the property may be lower than that listed above. You can check the estimated speed and confirm availability to a property prior to purchasing on the broadband provider's website. Providers may increase charges. The information is provided and maintained by Decision Technologies Limited. **This is indicative only and based on a 2-person household with multiple devices and simultaneous usage. Broadband performance is affected by multiple factors including number of occupants and devices, simultaneous usage, router range etc. For more information speak to your broadband provider.
Map data ©OpenStreetMap contributors.







