
Anchor Street, Ipswich, Suffolk, IP3

- PROPERTY TYPE
Apartment
- BEDROOMS
2
- BATHROOMS
2
- SIZE
Ask agent
Key features
- Ipswich Waterfront Location
- Very Long Lease
- No Onward Chain
- Ground Floor Apartment
- Two Double Bedrooms
- Private Outside Terrace
- Bathroom & En-Suite Shower Room
- Secure Allocated Parking Space
- Electric Heating & Double-glazing
- Secure Entry System Front & Rear
Description
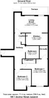
This two-bedroom ground floor apartment, situated on Ipswich waterfront, is being sold with no onward chain and comes with an allocated parking space, electric heating, double-glazing, and secure entry system to the front and rear. The accommodation comprises entrance hall; living room with access to a private terrace; kitchen; two double bedrooms, one of which has an en-suite shower room; and a bathroom.
Leasehold information:
Lease – 1,235 years from 1.6.2003 – 1,212 years & 10 months remaining
Last service charge - £2,556.90 per annum
Ground rent - £200 per annum
The county town of Ipswich offers a range of local amenities including schools, university, shops, doctors, dental surgeries, hospital, two theatres, parks including the popular Orwell Country Park, recreational facilities, and mainline railway station providing direct links to London Liverpool Street Station with a journey time of approximately 1hr 15mins. The vibrant waterfront has undergone an extensive rebuilding and gentrification programme and now boasts some fashionable bars and restaurants, together with the University of Suffolk.
Secure Entry System Into:
Communal entrance hall with front door into the ground floor apartment.
Entrance Hall
Built-in cupboard housing the electric water heater, wall-mounted phone entry system, and doors to the bedrooms, bathroom and living room.
Living Room
18' 9" x 11' 2"
Double-glazed sliding patio doors opening onto the private terrace, two wall-mounted electric heaters, ceiling inset spotlights, and doorway through to:
Kitchen
12' 5" x 6' 8"
Fitted with a range of matching eye and base level units with undercounter lighting, roll edge work surfaces, sink and drainer, integrated washer/dryer, electric oven and hob with extractor hood over, space for a fridge/freezer, and ceiling inset spotlights.
Bedroom One
14' 8" x 14' 3"
Double-glazed window to the rear aspect, wall-mounted electric heater, built-in wardrobe with mirrored sliding door, and door through to:
En-Suite Shower Room
A three-piece suite comprising shower enclosure, low-level WC and hand wash basin; and a heated towel rail.
Bedroom Two
11' 1" x 9' 5"
Double-glazed window to the rear aspect and wall-mounted electric heater.
Bathroom
7' 6" x 7' 1"
A three-piece suite comprising bath with shower attachment, low-level WC and hand wash basin; and heated towel rail, tiled floor, and half-height tiled walls.
Outside
The apartment comes with its own private terrace which is accessed from the living room and an allocated parking space behind secure gates. There is a permit which is included as part of the service charge for visitor parking.
Brochures
Particulars- COUNCIL TAXA payment made to your local authority in order to pay for local services like schools, libraries, and refuse collection. The amount you pay depends on the value of the property.Read more about council Tax in our glossary page.
- Band: C
- PARKINGDetails of how and where vehicles can be parked, and any associated costs.Read more about parking in our glossary page.
- Yes
- GARDENA property has access to an outdoor space, which could be private or shared.
- Ask agent
- ACCESSIBILITYHow a property has been adapted to meet the needs of vulnerable or disabled individuals.Read more about accessibility in our glossary page.
- Ask agent
Anchor Street, Ipswich, Suffolk, IP3
Add an important place to see how long it'd take to get there from our property listings.
__mins driving to your place
Get an instant, personalised result:
- Show sellers you’re serious
- Secure viewings faster with agents
- No impact on your credit score
Your mortgage
Notes
Staying secure when looking for property
Ensure you're up to date with our latest advice on how to avoid fraud or scams when looking for property online.
Visit our security centre to find out moreDisclaimer - Property reference IWH250945. The information displayed about this property comprises a property advertisement. Rightmove.co.uk makes no warranty as to the accuracy or completeness of the advertisement or any linked or associated information, and Rightmove has no control over the content. This property advertisement does not constitute property particulars. The information is provided and maintained by Palmer & Partners, Suffolk. Please contact the selling agent or developer directly to obtain any information which may be available under the terms of The Energy Performance of Buildings (Certificates and Inspections) (England and Wales) Regulations 2007 or the Home Report if in relation to a residential property in Scotland.
*This is the average speed from the provider with the fastest broadband package available at this postcode. The average speed displayed is based on the download speeds of at least 50% of customers at peak time (8pm to 10pm). Fibre/cable services at the postcode are subject to availability and may differ between properties within a postcode. Speeds can be affected by a range of technical and environmental factors. The speed at the property may be lower than that listed above. You can check the estimated speed and confirm availability to a property prior to purchasing on the broadband provider's website. Providers may increase charges. The information is provided and maintained by Decision Technologies Limited. **This is indicative only and based on a 2-person household with multiple devices and simultaneous usage. Broadband performance is affected by multiple factors including number of occupants and devices, simultaneous usage, router range etc. For more information speak to your broadband provider.
Map data ©OpenStreetMap contributors.







