Lisbon, Lisbon, Portugal
- PROPERTY TYPE
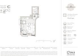
Apartment
- BATHROOMS
1
- SIZE
409 sq ft
38 sq m
Key features
- Near green areas
- Bedrooms: 0
- Near school
- Near public transportation
Description
Located in Calçada do Monte, this project combines a privileged location with the genuine and vibrant spirit of Lisbon's historic neighbourhoods, providing an authentic experience, with all modern amenities.
With only 9 exclusive apartments, designed to offer a perfect balance between sophistication and well-being.
These apartments stand out for their patios, gardens and terraces, which create a welcoming atmosphere, ideal for moments of leisure and relaxation in the heart of Lisbon.
Sustainability and respect for history are at the heart of this project. The reconstruction has retained the architectural features of the original building, while the interiors have been completely renovated to ensure comfort and efficiency, coupled with a functional and contemporary design.
Inserted in an area full of local commerce and with a unique atmosphere, the development invites you to explore and enjoy a cosmopolitan life, in a neighbourhood rich in culture and tradition.
Don't miss this opportunity. Request more information now!
Castelhana has been a reference in the Portuguese real estate sector for over 25 years. As a Dils group company, we specialize in advising companies, organizations and (institutional) investors on the purchase, sale, rental and development of residential properties.
Founded in 1999, Castelhana has built over the years one of the largest and most solid real estate portfolios in Portugal, with more than 600 rehabilitation and new construction projects.
In Lisbon, we are based in Chiado, one of the most emblematic and traditional neighborhoods in the city. In Porto, in the sophisticated Boavista area. In the Algarve region next to the Vilamoura Marina and in Estoril next to the Estoril Casino.
We are waiting for you. We have a team available to give you the best support in your next real estate investment.
Contact us!
Energy Rating: B
#ref:29688
Lisbon, Lisbon, Portugal
NEAREST AIRPORTS
Distances are straight line measurements- Lisbon(International)3.6 miles
Advice on buying Portuguese property
Learn everything you need to know to successfully find and buy a property in Portugal.
Notes
This is a property advertisement provided and maintained by Dils, Lisbon (reference 285701_21677343) and does not constitute property particulars. Whilst we require advertisers to act with best practice and provide accurate information, we can only publish advertisements in good faith and have not verified any claims or statements or inspected any of the properties, locations or opportunities promoted. Rightmove does not own or control and is not responsible for the properties, opportunities, website content, products or services provided or promoted by third parties and makes no warranties or representations as to the accuracy, completeness, legality, performance or suitability of any of the foregoing. We therefore accept no liability arising from any reliance made by any reader or person to whom this information is made available to. You must perform your own research and seek independent professional advice before making any decision to purchase or invest in overseas property.





