
Elizabeth Tower, M15

- PROPERTY TYPE
Penthouse
- BEDROOMS
3
- BATHROOMS
3
- SIZE
2,378 sq ft
221 sq m
Key features
- Exclusive Penthouse Apartment
- Four Secure Allocated Parking Spaces Included
- 1,038 Sq. Ft. Private Terrace
- 2378 Sq. Ft.
- Air Conditioning & Automatic Blinds
- 44th Floor Swimming Pool & Gym
- 24 Hour Concierge & Home Service Availble
Description
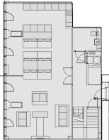
Designed with contemporary elegance in mind, the penthouse features floor-to-ceiling windows in every room, flooding the space with natural light and showcasing breath-taking skyline vistas. With two reception rooms, the open-plan living and dining area is ideal for entertaining, complemented by a fully integrated modern kitchen complete with premium appliances and high-end finishes.
The impressive principal suite boasts a luxurious en-suite bathroom and a bespoke walk-in wardrobe. The two additional double bedrooms are equally generous in size, both offering ample built-in storage and access to beautifully appointed bathrooms.
Additional highlights include a private balcony, underfloor heating, and smart-home features. Residents also benefit from exclusive access to an exceptional range of on-site amenities, including a 24-hour concierge service, communal garden spaces, a private residents' lounge, and one of the UK's highest swimming pools, along with a fully equipped gym and spa facilities located on the 44th floor.
Elizabeth Tower is ideally positioned within walking distance of Deansgate, Spinningfields, and Manchester city centre, with excellent transport connections and easy access to world-class restaurants, designer shopping, and cultural attractions.
This penthouse represents a rare opportunity to acquire a landmark property in one of Manchester's most desirable developments.
Contact us today to arrange your private tour.
Additional Information
Internal: 2,429 Sq. Ft. Terrace: 1,038 Sq. Ft.
Service Charge: £8,424.52 per annum
Ground Rent: £663 per annum
Building Insurance: £1330.09 per annum
Leasehold: 996 years remaining
- COUNCIL TAXA payment made to your local authority in order to pay for local services like schools, libraries, and refuse collection. The amount you pay depends on the value of the property.Read more about council Tax in our glossary page.
- Band: H
- PARKINGDetails of how and where vehicles can be parked, and any associated costs.Read more about parking in our glossary page.
- Yes
- GARDENA property has access to an outdoor space, which could be private or shared.
- Ask agent
- ACCESSIBILITYHow a property has been adapted to meet the needs of vulnerable or disabled individuals.Read more about accessibility in our glossary page.
- Ask agent
Elizabeth Tower, M15
Add an important place to see how long it'd take to get there from our property listings.
__mins driving to your place
Get an instant, personalised result:
- Show sellers you’re serious
- Secure viewings faster with agents
- No impact on your credit score
Your mortgage
Notes
Staying secure when looking for property
Ensure you're up to date with our latest advice on how to avoid fraud or scams when looking for property online.
Visit our security centre to find out moreDisclaimer - Property reference 36683. The information displayed about this property comprises a property advertisement. Rightmove.co.uk makes no warranty as to the accuracy or completeness of the advertisement or any linked or associated information, and Rightmove has no control over the content. This property advertisement does not constitute property particulars. The information is provided and maintained by Settio Property Experience Ltd, Manchester. Please contact the selling agent or developer directly to obtain any information which may be available under the terms of The Energy Performance of Buildings (Certificates and Inspections) (England and Wales) Regulations 2007 or the Home Report if in relation to a residential property in Scotland.
*This is the average speed from the provider with the fastest broadband package available at this postcode. The average speed displayed is based on the download speeds of at least 50% of customers at peak time (8pm to 10pm). Fibre/cable services at the postcode are subject to availability and may differ between properties within a postcode. Speeds can be affected by a range of technical and environmental factors. The speed at the property may be lower than that listed above. You can check the estimated speed and confirm availability to a property prior to purchasing on the broadband provider's website. Providers may increase charges. The information is provided and maintained by Decision Technologies Limited. **This is indicative only and based on a 2-person household with multiple devices and simultaneous usage. Broadband performance is affected by multiple factors including number of occupants and devices, simultaneous usage, router range etc. For more information speak to your broadband provider.
Map data ©OpenStreetMap contributors.






