Restaurant to lease
The Sea Shanty Cafe, Branscombe Beach, Seaton, Devon, EX12 3DP
- SIZE
Ask agent
- SECTOR
Restaurant to lease
Lease details
- Lease available date:
- Ask agent
Key features
- Unopposed sea front licenced café and beach shop
- New 3-5 year tenancy available
- Of interest to experienced operators
- 60 internal covers, excess 130 external
- Trades day time only at present
- Beach shop, store and takeaway counter
- Very popular coastal location
Description
Location
Having direct access on to the beach at Branscombe Mouth, the Sea Shanty Cafe is next to the public car park and overlooks the pebble beach and Lyme Bay. It is a welcome stopping off point for those walking the South West coast path between Sidmouth and Seaton, alongside countless visors and locals enjoying a glorious location on the East Devon Jurassic coast.
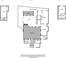
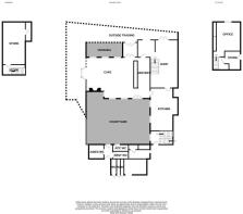
Accommodation
All areas are approximate and measured in accordance with the RICS Property Measurement (2nd Edition) on a net / gross internal basis.
Beachside entrance lobby leading to principal café and restaurant (13.3m x 4.3m + 10.2m x 10.2m) having exposed stone walls. Walk in inglenook fireplace with inset wood burner. Seaside views to the front and attractive double hipped glazed extension to the rear with access to inner customer courtyard. Principle servery area with access to beach shop and in /out doors to commercial kitchen. Space for 60 covers.
Beach shop (8.2m x 5.5m + 3.3m x 2.5m) with beachside takeaway hatch and customer entrance. Full range of beach goods, hot and cold food and drinks with full range of grocery items. Inner doorway to kitchen and stairway to first floor.
Customer toilets are to the rear of the inner courtyard and provide for ladies and gents WCs plus accessible WC and baby change. The premises also include the public toilets which are adjacent to the customer toilets and provide for 3 additional WCs. Please note that the landlords will run and maintain the public toilets with the tenants obligation to open the cafe toilets for public use during opening hours in the Summer season
Commercial Kitchen (11.5m x 4m average) and fitted with full range of commercial equipment suitable for the current trade levels and many items replaced during the past 5 years. Rear lobby with external access and stairway to basement storage.
Basement storage with lobby and cleaner store. Main store (8m x 4m) with walk in chiller and walk in freezer. Separate secure store.
First floor with landing and hand wash. Store room (2.2m x 1.8m + 1.4m x 1.3m) with side access door. Office (4m x 3.9m).
Outside: Lawned trade garden front and side which comfortably sites 15x 6 seater benches. Red Telephone box housing Defibrator. Inner courtyard which easily sites 7x 6 seater benches within attractive surroundings.
The Business:
The owners have been running the business from 2020 and the buildings have been within their family ownership since 1951. They are now looking to step back from the running of the café and beach shop and to continue a mutually complimentary relationship between new tenants and the family's continuing involvement with other Branscombe beach commercial investments. The business operates year round with changing trading hours for summer and winter, which the owners would like to maintain. The new tenancy will also reflect the business as a going concern to maintain positive customer and staff support (TUPE will apply). Sales are circa £800,000 per annum net of VAT and interested parties may have access to accounts following a non disclosure process and having provided their background information.
Minimum Winter trading Hours: Friday -Sunday 9am-3.30pm (please note the current owners have also opened on Thursday and for half term events.
Summer trading hours from 15th March (pending Easter holidays) to 31st October. 7 days 8:30am -4:30pm.
Please note that the trading hours include the beach shop which is popular with visitors and locals alike for the current grocery offer, which need to be maintained.
Ample opportunity exists to increase trading hours to include evening service and events.
Inventory : The business is available with the full trade inventory in situ and buy back rights at end of term. Stock is available in addition and at valuation on day of change over.
Planning
User class E for licenced restaurant use. Noted in the historic environment records as a former 19th century coal yard in service for coal delivered from South Wales. Understood to have adapted to tea rooms in 1939. Premise licence hours 8:30am -11pm 7 days. (New Years Day midnight).
Rent / Price
The Sea Shanty is available by way of a new non assignable tenancy or either 3 or 5 years on internal repair and insure terms. The base rent guide will be £55,000 per annum with a turnover rent of 5% on any sales over £800,000 (net of VAT). Ingoing costs to include trade inventory of £56,590 excluding VAT (copy on request), 3 months rent deposit and £10,000 premium. Stock will be available on completion in addition (c£20,00). For clarity the letting does not include accommodation.
Applicants are invited to forward proposals for consideration based on these terms with proof of funds. Pro former application and business plans are available via the agent and some applicants may be invited to attend an informal interview to talk through their business plan and previous experience.
Business Rates
From the Valuation Office Agency website ( we understand that the current Rateable Value is £23,250, rates payable 49.9p in the £ and 40% discount to March 2026.
Services
We understand that mains electricity, water and drainage are connected to the property however these services have not been tested by the agents. Interested parties should make their own enquiries.
EPC
B (30)
Legal Fees
Each party to be responsible for their own legal fees in relation to this transaction.
VAT
All figures quoted are exclusive of VAT if applicable.
Brochures
The Sea Shanty Cafe, Branscombe Beach, Seaton, Devon, EX12 3DP
NEAREST STATIONS
Distances are straight line measurements from the centre of the postcode- Honiton Station8.0 miles
Notes
Disclaimer - Property reference 21439LH. The information displayed about this property comprises a property advertisement. Rightmove.co.uk makes no warranty as to the accuracy or completeness of the advertisement or any linked or associated information, and Rightmove has no control over the content. This property advertisement does not constitute property particulars. The information is provided and maintained by Vickery Holman, Leisure. Please contact the selling agent or developer directly to obtain any information which may be available under the terms of The Energy Performance of Buildings (Certificates and Inspections) (England and Wales) Regulations 2007 or the Home Report if in relation to a residential property in Scotland.
Map data ©OpenStreetMap contributors.





