
Howard Drive, York, York, YO30

- PROPERTY TYPE
Bungalow
- BEDROOMS
5
- BATHROOMS
2
- SIZE
Ask agent
- TENUREDescribes how you own a property. There are different types of tenure - freehold, leasehold, and commonhold.Read more about tenure in our glossary page.
Freehold
Key features
- STUNNING FIVE BED HOME
- THOUGHTFULLY EXTENDED
- MULTIFUNCTIONAL LIVING SPACE
- LARGE KITCHEN/DINER
- WELL PRESENTED THROUGHOUT
- FIVE GENOROUS BEDROOMS
- TWO BATHROOMS
- STUNNING GARDENS
- OFF STREET PARKING
- EXCELLENT SCHOOLING
Description
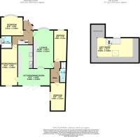
Nestled in the sought-after residential area of Rawcliffe, this beautifully maintained and significantly extended five-bedroom detached dormer bungalow offers a perfect blend of versatile living space, modern upgrades, and charming character. Set on a generous plot, the property is ideal for families or those seeking flexible accommodation in a peaceful yet well-connected location.
As you step through the front door, you're greeted by a spacious and welcoming hallway. To the left is a bright and airy main living room, enhanced by a large bay window that floods the space with natural light, and elegant double doors that lead seamlessly into a rear dining room—ideal for both everyday living and entertaining.
To the right of the hallway is a generous double bedroom, also benefiting from a bay window and space for wardrobes and units, offering plenty of storage. Towards the rear of the property is another good-sized bedroom, currently used as a second reception room, with views over the rear garden. A modern family bathroom with a white three-piece suite, including bath, W/C, basin, and towel rail, sits conveniently between these two bedrooms.
A substantial side extension has added two further well-proportioned bedrooms and a stylish walk-in shower room featuring contemporary floor-to-ceiling tiling, making it perfect for growing families or multi-generational living.
At the heart of the home is the impressive open-plan kitchen-diner. This thoughtfully designed space boasts an extensive range of wall and base units, integrated oven and electric hob, room for freestanding appliances, and striking bi-fold doors that open out to the rear garden—creating a seamless indoor-outdoor living experience.
Upstairs, the loft conversion provides a fifth bedroom, currently used as a craft room but equally suited to a home office or private retreat.
Externally, the rear garden is a true haven. Lovingly landscaped with mature planted borders, a spacious artificial lawn, large decking area, and a charming summer house, it offers a tranquil setting to relax or entertain. To the side of the property is a full-length workshop, ideal for hobbies or storage, while the front of the home offers generous off-street parking for multiple vehicles.
Howard Drive is perfectly positioned just off Shipton Road, moments from Clifton Moor Shopping Park, excellent local schools, and scenic riverside walks through Rawcliffe Country Park. The property is also within a short walk of York’s Park and Ride, offering quick and convenient access into the city centre.
A rare opportunity to purchase a truly versatile and ready-to-move-into home in one of York's most desirable residential areas.
- COUNCIL TAXA payment made to your local authority in order to pay for local services like schools, libraries, and refuse collection. The amount you pay depends on the value of the property.Read more about council Tax in our glossary page.
- Band: C
- PARKINGDetails of how and where vehicles can be parked, and any associated costs.Read more about parking in our glossary page.
- Yes
- GARDENA property has access to an outdoor space, which could be private or shared.
- Yes
- ACCESSIBILITYHow a property has been adapted to meet the needs of vulnerable or disabled individuals.Read more about accessibility in our glossary page.
- Ask agent
Energy performance certificate - ask agent
Howard Drive, York, York, YO30
Add an important place to see how long it'd take to get there from our property listings.
__mins driving to your place
Get an instant, personalised result:
- Show sellers you’re serious
- Secure viewings faster with agents
- No impact on your credit score
Your mortgage
Notes
Staying secure when looking for property
Ensure you're up to date with our latest advice on how to avoid fraud or scams when looking for property online.
Visit our security centre to find out moreDisclaimer - Property reference PB109854. The information displayed about this property comprises a property advertisement. Rightmove.co.uk makes no warranty as to the accuracy or completeness of the advertisement or any linked or associated information, and Rightmove has no control over the content. This property advertisement does not constitute property particulars. The information is provided and maintained by Preston Baker, York. Please contact the selling agent or developer directly to obtain any information which may be available under the terms of The Energy Performance of Buildings (Certificates and Inspections) (England and Wales) Regulations 2007 or the Home Report if in relation to a residential property in Scotland.
*This is the average speed from the provider with the fastest broadband package available at this postcode. The average speed displayed is based on the download speeds of at least 50% of customers at peak time (8pm to 10pm). Fibre/cable services at the postcode are subject to availability and may differ between properties within a postcode. Speeds can be affected by a range of technical and environmental factors. The speed at the property may be lower than that listed above. You can check the estimated speed and confirm availability to a property prior to purchasing on the broadband provider's website. Providers may increase charges. The information is provided and maintained by Decision Technologies Limited. **This is indicative only and based on a 2-person household with multiple devices and simultaneous usage. Broadband performance is affected by multiple factors including number of occupants and devices, simultaneous usage, router range etc. For more information speak to your broadband provider.
Map data ©OpenStreetMap contributors.