
77 Lancaster Road, Great Yarmouth, Norfolk NR30 2NN

- PROPERTY TYPE
Terraced
- BEDROOMS
3
- SIZE
Ask agent
- TENUREDescribes how you own a property. There are different types of tenure - freehold, leasehold, and commonhold.Read more about tenure in our glossary page.
Freehold
Key features
- Large three bedroom mid terrace house
- Car port providing off road parking
- Guide price: £100,000 - £120,000
- For sale by online livestream auction
- Unless withdrawn prior
- 10:00am - Wednesday, 10th September 2025
Description
SOLD AT AUCTION - £153,000
Unique and spacious three bedroom mid terrace house with garage providing off road parking
This three bedroom mid terrace house has been in the same ownership for nearly 50 years and is now to be sold with vacant possession. The property benefits from a garage, gas fired central heating, cctv, intruder alarm, is mostly double glazed and has solar panels and battery storage. This unique house is deceptively spacious incorporating a range of buildings to the rear. providing an extensive storage area and scope for further bedrooms or possible development opportunity, subject to the necessary consents.
It is located around half a mile east of the town centre, close to the beach and a range of services and amenities.
On instruction of executors.
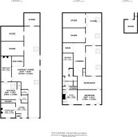
Ground floor Entrance lobby, lounge, sitting room, kitchen, utility, wc, dining room, bar area, three store rooms, wc
First floor Landing, bathroom, room, two bedrooms, workshop, snug, three store rooms
Second floor Bedroom, two attic rooms
Outside Garage with electric garage door
Council Tax Band A
Viewings Viewings are being held by appointment only and are offered on the following days:
Tuesday 19th August
Friday 22nd August
Tuesday 26th August
Thursday 28th August
Monday 1st September
Friday 5th September
Monday 8th September
Please contact the Norwich Office to book your appointment
Tenure: Freehold
EPC Rating: D
Administration Fee: £1200 inc VAT payable on exchange of contracts.
Buyer's Premium Fee: £960 inc VAT payable on exchange of contracts.
Disbursements: Please see the legal pack for any disbursements listed that may become payable by the purchaser on completion.
- COUNCIL TAXA payment made to your local authority in order to pay for local services like schools, libraries, and refuse collection. The amount you pay depends on the value of the property.Read more about council Tax in our glossary page.
- Band: A
- PARKINGDetails of how and where vehicles can be parked, and any associated costs.Read more about parking in our glossary page.
- Yes
- GARDENA property has access to an outdoor space, which could be private or shared.
- Ask agent
- ACCESSIBILITYHow a property has been adapted to meet the needs of vulnerable or disabled individuals.Read more about accessibility in our glossary page.
- Ask agent
Energy performance certificate - ask agent
77 Lancaster Road, Great Yarmouth, Norfolk NR30 2NN
Add an important place to see how long it'd take to get there from our property listings.
__mins driving to your place
Get an instant, personalised result:
- Show sellers you’re serious
- Secure viewings faster with agents
- No impact on your credit score


Your mortgage
Notes
Staying secure when looking for property
Ensure you're up to date with our latest advice on how to avoid fraud or scams when looking for property online.
Visit our security centre to find out moreDisclaimer - Property reference 202506241621sq_r3ay. The information displayed about this property comprises a property advertisement. Rightmove.co.uk makes no warranty as to the accuracy or completeness of the advertisement or any linked or associated information, and Rightmove has no control over the content. This property advertisement does not constitute property particulars. The information is provided and maintained by Auction House, East Anglia. Please contact the selling agent or developer directly to obtain any information which may be available under the terms of The Energy Performance of Buildings (Certificates and Inspections) (England and Wales) Regulations 2007 or the Home Report if in relation to a residential property in Scotland.
Auction Fees: The purchase of this property may include associated fees not listed here, as it is to be sold via auction. To find out more about the fees associated with this property please call Auction House, East Anglia on 01603 361653.
*Guide Price: An indication of a seller's minimum expectation at auction and given as a Guide Price or a range of Guide Prices. This is not necessarily the figure a property will sell for and is subject to change prior to the auction.
Reserve Price: Each auction property will be subject to a Reserve Price below which the property cannot be sold at auction. Normally the Reserve Price will be set within the range of Guide Prices or no more than 10% above a single Guide Price.
*This is the average speed from the provider with the fastest broadband package available at this postcode. The average speed displayed is based on the download speeds of at least 50% of customers at peak time (8pm to 10pm). Fibre/cable services at the postcode are subject to availability and may differ between properties within a postcode. Speeds can be affected by a range of technical and environmental factors. The speed at the property may be lower than that listed above. You can check the estimated speed and confirm availability to a property prior to purchasing on the broadband provider's website. Providers may increase charges. The information is provided and maintained by Decision Technologies Limited. **This is indicative only and based on a 2-person household with multiple devices and simultaneous usage. Broadband performance is affected by multiple factors including number of occupants and devices, simultaneous usage, router range etc. For more information speak to your broadband provider.
Map data ©OpenStreetMap contributors.





