
School Lane, Bronington
- PROPERTY TYPE
Land
- SIZE
Ask agent
Key features
- Plot of land
- Full planning permission granted
- Three Bedroom bungalow
- 965 sq feet
Description
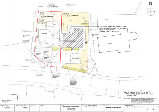
Full Planning Permission Granted for a 3-Bedroom Detached Bungalow
A rare opportunity to acquire a prime residential building plot in the sought-after village of Bronington. This generous plot comes with full planning permission for the construction of a well-designed 3-bedroom detached bungalow, ideal for self-builders, developers, or buyers looking to create their dream home in a peaceful rural setting.
Key Features:
Full planning permission approved Planning Ref: P/2023/0802
Plans for a 3-bedroom detached bungalow
Private driveway and garden space
Quiet village location with countryside views
Mains services available nearby (subject to connection)
Close to local amenities, schools, and good transport links
THINKING OF SELLING? BUY/SELL/ RENT & MORTGAGES.. WE DO IT ALL!
AWARD WINNING ESTATE AGENCY!
BEST IN WEST MIDLANDS IN 2023 & 2024*
We have proudly got more FIVE STAR REVIEWS ON GOOGLE than any other local agent the most positively reviewed agent in Whitchurch.
Commission Fees - We will not be beaten by any Whitchurch based agent! and we operate on a NO SALE NO FEE basis.
AML REGULATIONS We are required by law to conduct anti-money laundering checks on all those buying a property. Whilst we retain responsibility for ensuring checks and any ongoing monitoring are carried out correctly, the initial checks are carried out on our behalf by Movebutler who will contact you once you have had an offer accepted on a property you wish to buy. The cost of these checks is £30 (incl. VAT) per buyer, which covers the cost of obtaining relevant data and any manual checks and monitoring which might be required. This fee will need to be paid by you in advance, ahead of us issuing a memorandum of sale, directly to Movebutler, and is non-refundable.
School Lane, Bronington
NEAREST STATIONS
Distances are straight line measurements from the centre of the postcode- Whitchurch (Salop) Station4.1 miles
- Prees Station4.7 miles
About Get Moving Estate Agents, Whitchurch
Get Moving Estate Agents 29 High Street Whitchurch Shropshire SY13 1AZ

Notes
Disclaimer - Property reference 103027002451. The information displayed about this property comprises a property advertisement. Rightmove.co.uk makes no warranty as to the accuracy or completeness of the advertisement or any linked or associated information, and Rightmove has no control over the content. This property advertisement does not constitute property particulars. The information is provided and maintained by Get Moving Estate Agents, Whitchurch. Please contact the selling agent or developer directly to obtain any information which may be available under the terms of The Energy Performance of Buildings (Certificates and Inspections) (England and Wales) Regulations 2007 or the Home Report if in relation to a residential property in Scotland.
Map data ©OpenStreetMap contributors.




