Land for sale
Hill Top, Newmillerdam, Wakefield, West Yorkshire, WF2
- PROPERTY TYPE
Land
- SIZE
Ask agent
Description
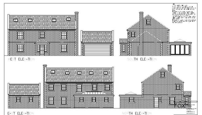
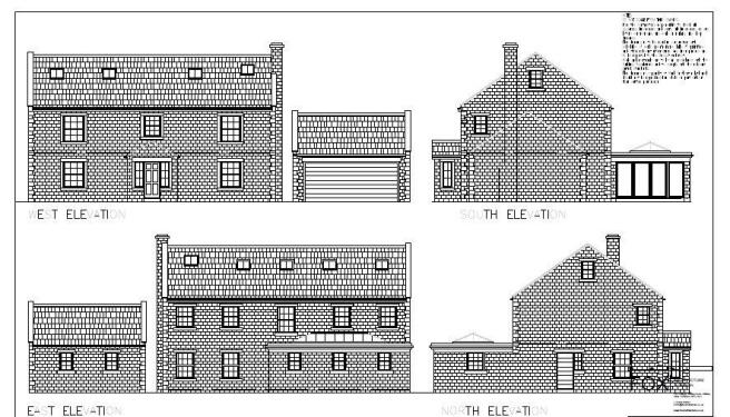
Holroyd Miller have pleasure in offering for sale this generous single building plot with planning passed for one detached dwelling and detached garage, Application Number 22/00353/FUL. The eventual purchaser wether that be a developer or those looking to build their dream home in a sought after location within walking distance of Newmillerdam country park and its various walks and cycle paths across ajoining villages, together with its numerous pubs and eateris, easy access to J39/M1 for those travelling throughout the region. The proposed dwelling offers accommodation over three levels to be built in stone and sat close to the conservation area. The property will have to be sympathetic to the properties around it occupying a cul de sac position. Planning was passed in 7 July 2023.
Brochures
ParticularsHill Top, Newmillerdam, Wakefield, West Yorkshire, WF2
NEAREST STATIONS
Distances are straight line measurements from the centre of the postcode- Sandal & Agbrigg Station1.8 miles
- Wakefield Kirkgate Station2.8 miles
- Wakefield Westgate Station3.0 miles
Notes
Disclaimer - Property reference HOM250206. The information displayed about this property comprises a property advertisement. Rightmove.co.uk makes no warranty as to the accuracy or completeness of the advertisement or any linked or associated information, and Rightmove has no control over the content. This property advertisement does not constitute property particulars. The information is provided and maintained by Holroyd Miller, Wakefield. Please contact the selling agent or developer directly to obtain any information which may be available under the terms of The Energy Performance of Buildings (Certificates and Inspections) (England and Wales) Regulations 2007 or the Home Report if in relation to a residential property in Scotland.
Map data ©OpenStreetMap contributors.







