Land for sale
Hammonds Green, Totton, Southampton, Hampshire, SO40
- PROPERTY TYPE
Land
- SIZE
Ask agent
Description
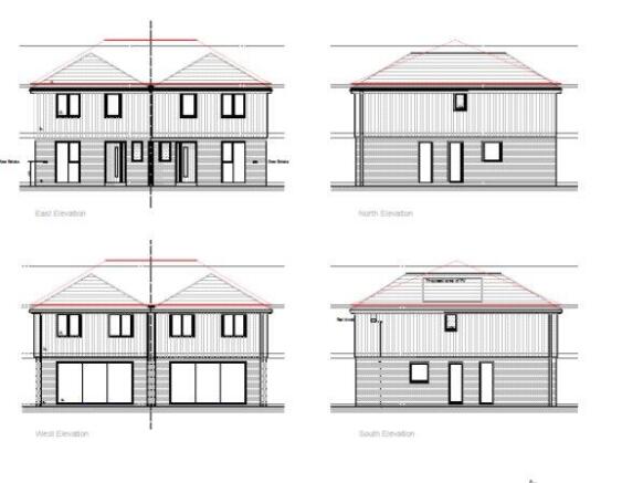
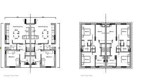
An opportunity to purchase a building plot with full planning permission granted for two bespoke 3 bedroom semi detached properties in the heart of Totton.
The properties will offer wonderful family living accomodation on the ground floor with an open plan kitchen/family/dining area, utility room and seperate sitting room.
The first floors will comprise of a primary bedroom with dressing area and en-suite, two further bedrooms and a family bathroom.
Externally, both properties have driveway parking and enclosed rear gardens.
Viewing is strictly by appointment only, please contact the office to arrange.
Hammonds Green, Totton, Southampton, Hampshire, SO40
NEAREST STATIONS
Distances are straight line measurements from the centre of the postcode- Totton Station1.2 miles
- Redbridge (Southampton) Station1.7 miles
- Ashurst New Forest Station2.5 miles
Notes
Disclaimer - Property reference SNM250030. The information displayed about this property comprises a property advertisement. Rightmove.co.uk makes no warranty as to the accuracy or completeness of the advertisement or any linked or associated information, and Rightmove has no control over the content. This property advertisement does not constitute property particulars. The information is provided and maintained by Morris Dibben, Southampton. Please contact the selling agent or developer directly to obtain any information which may be available under the terms of The Energy Performance of Buildings (Certificates and Inspections) (England and Wales) Regulations 2007 or the Home Report if in relation to a residential property in Scotland.
Map data ©OpenStreetMap contributors.








