
Block of apartments for sale
Spring Bank, Hull, HU3

- PROPERTY TYPE
Block of Apartments
- BATHROOMS
8
- SIZE
4,112 sq ft
382 sq m
- TENUREDescribes how you own a property. There are different types of tenure - freehold, leasehold, and commonhold.Read more about tenure in our glossary page.
Freehold
Key features
- Exquisite block of Apartments and Commercial Space
- 2 x 2 Bedroom & 2 x 3 Bedroom Apartments maintained to a very high standard
- Excellent location close to Train station, shopping centre and local supermarkets
- Offered with vacant possession and no onward chain
- Property previously utilised as serviced accommodation
- All apartments have EPC Rating of C
- Commercial space within basement of over 1200 square feet
- Ancillary to rear with separate access
- *Buyers Premium Applies
Description
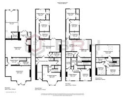
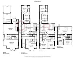
The building spans over 4000 square feet and is spread over 4 floors. There are 2 x 3 bedroom apartments and 2 x 2 bedroom apartments which were constructed in 2018 with the relevant planning permission and building control approval. The property has previously used as serviced accommodation and can be used again in this way or it would also be suitable for long term letting agreements. Each apartment boasts an EPC rating of C, ensuring energy efficiency and cost savings for future occupants.
The inclusion of commercial space within the basement adds to the property's versatility, offering over 1200 square feet for potential business use. There is also an additional residential unit with separate access to the rear which has the potential to be developed into a studio apartment subject to planning consents.
The building is ideally located and well-positioned to attract tenants. With local supermarkets and public transport links close by, it promises a convenient lifestyle for residents. Act quickly to secure this freehold investment opportunity before it's gone.
*A buyer's premium of 1% + VAT, (subject to a minimum of £2995 + VAT) of the agreed sale fee applies to this property. 25% of the total fee (a minimum of £995 + VAT) must be paid to secure the property and the remainder is payable upon exchange of contracts. Terms and conditions apply, please see the 'Buyer's Premium' page on our website for more information.
- COUNCIL TAXA payment made to your local authority in order to pay for local services like schools, libraries, and refuse collection. The amount you pay depends on the value of the property.Read more about council Tax in our glossary page.
- Band: A
- PARKINGDetails of how and where vehicles can be parked, and any associated costs.Read more about parking in our glossary page.
- Ask agent
- GARDENA property has access to an outdoor space, which could be private or shared.
- Ask agent
- ACCESSIBILITYHow a property has been adapted to meet the needs of vulnerable or disabled individuals.Read more about accessibility in our glossary page.
- Ask agent
Spring Bank, Hull, HU3
Add an important place to see how long it'd take to get there from our property listings.
__mins driving to your place
Get an instant, personalised result:
- Show sellers you’re serious
- Secure viewings faster with agents
- No impact on your credit score

Your mortgage
Notes
Staying secure when looking for property
Ensure you're up to date with our latest advice on how to avoid fraud or scams when looking for property online.
Visit our security centre to find out moreDisclaimer - Property reference RX603460. The information displayed about this property comprises a property advertisement. Rightmove.co.uk makes no warranty as to the accuracy or completeness of the advertisement or any linked or associated information, and Rightmove has no control over the content. This property advertisement does not constitute property particulars. The information is provided and maintained by BRH, Doncaster. Please contact the selling agent or developer directly to obtain any information which may be available under the terms of The Energy Performance of Buildings (Certificates and Inspections) (England and Wales) Regulations 2007 or the Home Report if in relation to a residential property in Scotland.
*This is the average speed from the provider with the fastest broadband package available at this postcode. The average speed displayed is based on the download speeds of at least 50% of customers at peak time (8pm to 10pm). Fibre/cable services at the postcode are subject to availability and may differ between properties within a postcode. Speeds can be affected by a range of technical and environmental factors. The speed at the property may be lower than that listed above. You can check the estimated speed and confirm availability to a property prior to purchasing on the broadband provider's website. Providers may increase charges. The information is provided and maintained by Decision Technologies Limited. **This is indicative only and based on a 2-person household with multiple devices and simultaneous usage. Broadband performance is affected by multiple factors including number of occupants and devices, simultaneous usage, router range etc. For more information speak to your broadband provider.
Map data ©OpenStreetMap contributors.






