Skip to content

Algarve, Santa Luzia, Portugal

£171,308
€195,000
Casas Do Sotavento, Faro
PROPERTY TYPE

House

BEDROOMS

1

BATHROOMS

2

SIZE

Ask agent

Key features

  • Near the beach
  • Near green areas
  • Bedrooms: 1
  • Near school

Description

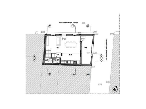
Plot of land with approved project for a 1-bedroom house in Santa Luzia, just 50 meters from the seafront.

This 61.74m2 plot of land has a construction area of approximately 90 m2.

The license is pending payment.

The project envisages the construction of a 1-bedroom house with two floors.

On the ground floor there is an open-plan living room and kitchen, a guest bathroom and a patio.

On the first floor there is an en-suite bedroom.

Located in the fishing village of Santa Luzia, where you can access various local shops and services.

Access to the boat to Santa Luzia beach is just a 5-minute walk away.

The city of Tavira is a 5-minute drive away, and there is also the possibility of taking the cycle path.

Contact us for more information about your future holiday home!

-----------------

About the town of Santa Luzia

This fishing village also thrives on tourism, with quality accommodation, restaurants and beaches. Known as the 'capital of octopus', Santa Luzia offers all its visitors true moments of harmony and well-being.

Enjoy the life of this town and the fishing arts that coexist in an environment of harmony with tourism and the hospitality of the people of Santa Luzia.

Casas do Sotavento is a family business, recognised in Portugal and abroad by customers, employees and investors for the quality of our actions and our projects. Our mission is to provide an easy and peaceful experience. Our concern is to treat everyone as we would like to be treated.
Energy Rating: Exempt
#ref:CS-MOR-90747

Algarve, Santa Luzia, Portugal

NEAREST AIRPORTS

Distances are straight line measurements
  • Faro(International)
    18.0 miles

Advice on buying Portuguese property

Learn everything you need to know to successfully find and buy a property in Portugal.

About Casas Do Sotavento, Faro

The Casas do Sotavento real estate company was founded in 2000 with the aim of being the leading real estate agency in the eastern Algarve. We stand out for our commitment to technological development, being present in around 220 national and foreign portals and personal pages. We provide a personalized accompaniment, we create solutions tailored to each client. We manage more than 2,000 properties from individuals, companies, banking and partnerships. All of our professionals guarantee strict management of mediation contracts and purchase and sale processes. Finally, we provide consultancy to all our clients, we also use modern and computerized means for business management.

Notes

These notes are private, only you can see them.

This is a property advertisement provided and maintained by Casas Do Sotavento, Faro (reference 283622_20880271) and does not constitute property particulars. Whilst we require advertisers to act with best practice and provide accurate information, we can only publish advertisements in good faith and have not verified any claims or statements or inspected any of the properties, locations or opportunities promoted. Rightmove does not own or control and is not responsible for the properties, opportunities, website content, products or services provided or promoted by third parties and makes no warranties or representations as to the accuracy, completeness, legality, performance or suitability of any of the foregoing. We therefore accept no liability arising from any reliance made by any reader or person to whom this information is made available to. You must perform your own research and seek independent professional advice before making any decision to purchase or invest in overseas property.

Email agent

Email agent