Onslow Gardens, South Wallington

- PROPERTY TYPE
- Semi-Detached 
- BEDROOMS
- 5 
- BATHROOMS
- 3 
- SIZE
- 2,208 sq ft - 205 sq m 
- TENUREDescribes how you own a property. There are different types of tenure - freehold, leasehold, and commonhold.Read more about tenure in our glossary page.
- Freehold 
Description
Inside the property you will find three spacious reception rooms, a kitchen breakfast room, and a downstairs WC on the ground floor. Moving upstairs there are five double bedrooms across two floors, two en-suites, and a luxury family bathroom with a stylish Victorian design. The property is ideally situated for those looking to be close to local grammar schools with Wallington Girls, Wallington County Grammar, Nonsuch and Wilsons School all easily accessible. Local bus links are also close by serving Sutton, Morden, Wallington and Croydon, plus Wallington mainline train station with good links into Central London. Wallington High Street is only a short walk away with a large variety of shops, cafes, and supermarkets to choose from.
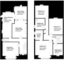
Accommodation - Edwardian style front door with feature stained glass windows
Entrance Hall
Understairs storage cupboard, radiator, varnished floorboards
Living Room
Double glazed sash windows to front aspect, feature cast iron fireplace, built-in shelving and storage cupboards, radiators, varnished floorboards.
Dining Room
Cast-iron feature fireplace, radiators, varnished floorboards, double doors opening out to conservatory.
Downstairs WC
Enclosed WC, wall mounted wash handbasin with chrome mixer tap, double glazed window to side aspect, tiled flooring.
Kitchen Breakfast Room
Breakfast Area
Built-in seating with storage below, fitted storage cupboard, Victorian style radiator, tiled flooring, double glazed window to side aspect
Kitchen
Range of fitted kitchen units and drawers, Quartz worksurface, double bowl ceramic sink with mixer tap, space for range cooker, integrated dishwasher, space for tall fridge, freezer, tiled flooring, double glazed patio door providing side access, double glazed windows to side and rear aspect, double glazed French doors leading into conservatory
Garden Room
Door leading out to garden and tiled flooring
Stairs to 1st floor landing
Built-in storage cupboard, Victorian style radiator, fitted carpet
Bedroom One
Built-in wardrobes, feature cast-iron fireplace, radiator, double glazed sash window to front aspect, fitted carpet, air-conditioning unit, door into
En-Suite Bathroom
Freestanding roll top clawfoot bathtub with chrome mixer tap and shower attachment, corner shower cubicle with thermostatic shower, enclosed WC, his and hers vanity wash hand basin with storage below, part tiled walls, tiled flooring, double glazed window to side aspect, electric heater
Bedroom Two
Feature cast-iron fireplace, fitted wardrobe, modern, Victorian style radiator, fitted carpet, double glazed window to rear aspect
Bedroom Three
Radiator, fitted carpet, double glazed window to rear aspect
Bedroom Four
Radiator, fitted carpet, double glazed sash window to front aspect,
Family Bathroom
Three piece suite comprising bath with shower screen and chrome mixer tap, thermostatic shower, vanity wash hand basin with mixer tap and storage below, enclosed WC, Victorian style radiator, airing cupboard, part tiled walls, obscure window to side aspect
Stairs to 2nd floor landing
Bedroom Five
Radiator, bespoke built-in wardrobes, eaves storage cupboard, fitted carpet, two Velux windows
En-suite Shower Room
Shower cubicle with thermostatic shower, WC, pedestal wash handbasin with chrome mixer tap, built-in storage, cupboard, radiator, part-tiled walls, tiled flooring, double glazed window to rear aspect.
Laundry Room
Built-in cupboards, space and plumbing for washing machine and tumble dryer, built in storage drawers and laminate worksurface, radiator, tiled flooring, double glazed window to rear aspect
Outside
To the front
Paved driveway providing off street parking
Rear Garden
Large lawn section, borders with mature shrubs and flowers, pond, patio area, detached garage, shed, rear and side access.
BUYER’S INFORMATION
Under UK law, estate agents are legally required to conduct Anti-Money Laundering (AML) checks on buyers and sellers to comply with regulations. These checks are mandatory, and estate agents can face penalties if they fail to perform them. We use the services of a third party to help conduct these checks thoroughly. As such there is a charge of £36 including vat, per person. Please note, we are unable to issue a memorandum of sale until these checks are complete
Brochures
Onslow Gardens, South WallingtonBrochure- COUNCIL TAXA payment made to your local authority in order to pay for local services like schools, libraries, and refuse collection. The amount you pay depends on the value of the property.Read more about council Tax in our glossary page.
- Band: F
- PARKINGDetails of how and where vehicles can be parked, and any associated costs.Read more about parking in our glossary page.
- Driveway
- GARDENA property has access to an outdoor space, which could be private or shared.
- Yes
- ACCESSIBILITYHow a property has been adapted to meet the needs of vulnerable or disabled individuals.Read more about accessibility in our glossary page.
- Ask agent
Onslow Gardens, South Wallington
Add an important place to see how long it'd take to get there from our property listings.
__mins driving to your place
Get an instant, personalised result:
- Show sellers you’re serious
- Secure viewings faster with agents
- No impact on your credit score
Your mortgage
Notes
Staying secure when looking for property
Ensure you're up to date with our latest advice on how to avoid fraud or scams when looking for property online.
Visit our security centre to find out moreDisclaimer - Property reference 34063835. The information displayed about this property comprises a property advertisement. Rightmove.co.uk makes no warranty as to the accuracy or completeness of the advertisement or any linked or associated information, and Rightmove has no control over the content. This property advertisement does not constitute property particulars. The information is provided and maintained by Cromwells Estate Agents, Wallington. Please contact the selling agent or developer directly to obtain any information which may be available under the terms of The Energy Performance of Buildings (Certificates and Inspections) (England and Wales) Regulations 2007 or the Home Report if in relation to a residential property in Scotland.
*This is the average speed from the provider with the fastest broadband package available at this postcode. The average speed displayed is based on the download speeds of at least 50% of customers at peak time (8pm to 10pm). Fibre/cable services at the postcode are subject to availability and may differ between properties within a postcode. Speeds can be affected by a range of technical and environmental factors. The speed at the property may be lower than that listed above. You can check the estimated speed and confirm availability to a property prior to purchasing on the broadband provider's website. Providers may increase charges. The information is provided and maintained by Decision Technologies Limited. **This is indicative only and based on a 2-person household with multiple devices and simultaneous usage. Broadband performance is affected by multiple factors including number of occupants and devices, simultaneous usage, router range etc. For more information speak to your broadband provider.
Map data ©OpenStreetMap contributors.







