Lace Cottage, Hollymount Lane, Greenmount, BL8

- PROPERTY TYPE
Barn Conversion
- BEDROOMS
3
- BATHROOMS
3
- SIZE
1,916 sq ft
178 sq m
Key features
- SUPERB & IMPRESSIVELY PRESENTED CHARACTER STONE DETACHED BARN CONVERSION
- 3 DOUBLE BEDROOMS (ONE GROUND FLOOR) MODERN ENSUITE BATHROOM TO THE MASTER BEDROOM), ADDITIONAL GROUND FLOOR SHOWER ROOM
- INVITING ENTRANCE 'L' SHAPE HALLWAY
- LOUNGE WITH MULTI FUEL LOG BURNER & FRENCH DOORS TO REAR, SPIRAL STAIRCASE TO FIRST FLOOR MEZZANINE
- BESPOKE FITTED DINING KITCHEN WITH APPLICANCES, SOLID STONE FLOOR
- LAUNDRY ROOM WITH PLUMBING FOR WASHER AND DRYER
- WALLED FRONTAGE AND GARDEN TO REAR
- DETACHED GARAGE ON SEPARATE PLOT WITH BLOCK PAVE DRIVE & PARKING FOR UP TO 3 VEHICLES
- NO ONWARD CHAIN
Description
ENTRANCE HALL Doors to kitchen, lounge, utility, storage cupboard, bedroom three and shower room, solid wood flooring and carpet, two stained glass windows to lounge, timber double glazed window to side, stairs to first floor and spotlights. Solid wood door giving access to side aspect.
LOUNGE 23'11" x 19'10" 3 uPVC double glazed windows to side, uPVC double glazed French doors to rear aspect, exposed beams and vaulted ceiling, multi fuel log burner, double solid wood stained glass panel doors to hallway, wrought iron spiral staircase to Mezzanine, TV point.
MEZZANINE 16'3" x 8'9" uPVC double glazed window to side, 2 uPVC double glazed Velux, wood flooring, solid wood stained glass panel door, eaves storage
DINING KITCHEN 19'10" x 12'8" Newly fitted Bespoke family dining kitchen with integral dishwasher, microwave and wine cooler, space for American style fridge freezer. uPVC double glazed windows to front and side aspects, uPVC stable door to front, stone flooring.
BEDROOM 3 10'11" x 9'11" uPVC double glazed window to side aspect, radiator, TV point.
SHOWER ROOM 7'9" x 5'4" 3 piece modern suite comprising of w.c, hand wash basin, corner enclosed shower, radiator, extractor fan, fully tiled walls and floor. Spotlights.
UTILITY ROOM 9'10" x 4'3" Plumbed washer/dryer, sink with mixer tap, tiled floor and extractor fan.
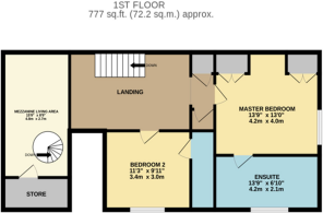
LANDING Doors to master bedroom, bedroom two and storage cupboard.
MASTER BEDROOM 13'10" x 12'11" uPVC double glazed window to front aspect, Velux window, Bespoke fitted wardrobes, exposed beams and vaulted ceiling, spotlights, door to ensuite.
ENSUITE BATHROOM 13'10" x 6'9" Modern 4 piece wet room comprising toilet, hand wash basin and vanity unit, free standing bath with mixer tap, open shower cubicle with overhead rain shower, fully tiled, exposed beams, heated towel rail and uPVC window with side aspect.
BEDROOM 2 11'3" x 9'8" 2 Velux windows, eaves storage, TV point, fitted wardrobes.
EXTERNALLY Stone paved driveway to front for 3 cars with dwarf wall surround, established shrubbery to border area with stone patio.
GARAGE Single garage located on adjacent plot with power & lighting, up & over door, block paved driveway
To the rear is a low maintenance stone patio area with established shrubs and trees to borders. South West facing.
We have prepared these property particulars as a general guide to a broad description of the property. They are not intended to constitute part of an offer or contract. We have not carried out a Structural survey and the services, appliances and specific fittings have not been tested by Harrison Estate Agents. All photographs, measurements, floor plans and any distances referred to are offered as guidance only and should not be relied upon for the purchase of carpets or any other fixtures or fittings. All legalities relating to any purchase should be checked and confirmed by your Solicitor prior to exchange of contracts.
EPC Rating: D
Lounge
7.29m x 6.05m
3 uPVC double glazed windows to side, uPVC double glazed French doors to rear aspect, exposed beams and vaulted ceiling, multi fuel log burner, double solid wood stained glass panel doors to hallway, wrought iron spiral staircase to Mezzanine, TV point.
Kitchen/Dining
6.05m x 3.86m
Bespoke family dining kitchen with integral dishwasher, microwave and wine cooler, space for American style fridge freezer. uPVC double glazed windows to front and side aspects, uPVC stable door to front, stone flooring.
Master Bedroom
4.22m x 3.94m
uPVC double glazed window to front aspect, Velux window, Bespoke fitted wardrobes, exposed beams and vaulted ceiling, spotlights, door to ensuite.
Mezzanine
5.13m x 2.67m
uPVC double glazed window to side, 2 uPVC double glazed Velux, wood flooring, solid wood stained glass panel door, eaves storage
Bedroom
3.33m x 3.02m
Ground Floor uPVC double glazed window to side aspect, radiator, TV point.
Ground Floor Shower Room
3 piece modern suite comprising of w.c, hand wash basin, corner enclosed shower, radiator, extractor fan, fully tiled walls and floor. Spotlights.
Utility Room
3m x 1.3m
Plumbed washer/dryer, sink with mixer tap, tiled floor and extractor fan.
Hallway
Doors to kitchen, lounge, utility, storage cupboard, bedroom three and shower room, solid wood flooring and carpet, two stained glass windows to lounge, timber double glazed window to side, stairs to first floor and spotlights. Solid wood door giving access to side aspect
Landing
Doors to master bedroom, bedroom two and storage cupboard.
En-Suite
4.22m x 2.06m
Modern 4 piece wet room comprising toilet, hand wash basin and vanity unit, free standing bath with mixer tap, open shower cubicle with overhead rain shower, fully tiled, exposed beams, heated towel rail and uPVC window with side aspect.
comprising toilet, hand wash basin with vanity unit, shower cubicle, part tiled walls, tiled floor, heated towel rail, Velux window.
Bedroom
3.43m x 2.95m
2 Velux windows, eaves storage, TV point, fitted wardrobes.
En-Suite
3.68m x 0.99m
3 piece modern white suite comprising toilet, hand wash basin with vanity unit, shower cubicle, part tiled walls, tiled floor, heated towel rail, Velux window.
Parking - Allocated parking
Stone paved driveway to front for 3 cars with dwarf wall surround, established shrubbery to border area with stone patio.
Parking - Garage
Single garage located on adjacent plot with power & lighting, up & over door, block paved driveway
- COUNCIL TAXA payment made to your local authority in order to pay for local services like schools, libraries, and refuse collection. The amount you pay depends on the value of the property.Read more about council Tax in our glossary page.
- Band: G
- PARKINGDetails of how and where vehicles can be parked, and any associated costs.Read more about parking in our glossary page.
- Garage,Off street
- GARDENA property has access to an outdoor space, which could be private or shared.
- Private garden
- ACCESSIBILITYHow a property has been adapted to meet the needs of vulnerable or disabled individuals.Read more about accessibility in our glossary page.
- Ask agent
Lace Cottage, Hollymount Lane, Greenmount, BL8
Add an important place to see how long it'd take to get there from our property listings.
__mins driving to your place
Get an instant, personalised result:
- Show sellers you’re serious
- Secure viewings faster with agents
- No impact on your credit score
Your mortgage
Notes
Staying secure when looking for property
Ensure you're up to date with our latest advice on how to avoid fraud or scams when looking for property online.
Visit our security centre to find out moreDisclaimer - Property reference b7230be2-81fc-4a92-9dd8-43cea1719041. The information displayed about this property comprises a property advertisement. Rightmove.co.uk makes no warranty as to the accuracy or completeness of the advertisement or any linked or associated information, and Rightmove has no control over the content. This property advertisement does not constitute property particulars. The information is provided and maintained by Harrison Estate Agents, Bury. Please contact the selling agent or developer directly to obtain any information which may be available under the terms of The Energy Performance of Buildings (Certificates and Inspections) (England and Wales) Regulations 2007 or the Home Report if in relation to a residential property in Scotland.
*This is the average speed from the provider with the fastest broadband package available at this postcode. The average speed displayed is based on the download speeds of at least 50% of customers at peak time (8pm to 10pm). Fibre/cable services at the postcode are subject to availability and may differ between properties within a postcode. Speeds can be affected by a range of technical and environmental factors. The speed at the property may be lower than that listed above. You can check the estimated speed and confirm availability to a property prior to purchasing on the broadband provider's website. Providers may increase charges. The information is provided and maintained by Decision Technologies Limited. **This is indicative only and based on a 2-person household with multiple devices and simultaneous usage. Broadband performance is affected by multiple factors including number of occupants and devices, simultaneous usage, router range etc. For more information speak to your broadband provider.
Map data ©OpenStreetMap contributors.







