Commercial property for sale
St Mary Street, Weymouth
- SIZE
Ask agent
- SECTOR
Commercial property for sale
Key features
- Freehold FOR SALE
- Totaling 8944 sqft
- Commercial space downstairs
- Storage / Office space upstairs
- Possibility to convert upper floors into residential subject to planning
- Prominent High Street Corner Building
- The price is subject to VAT
Description
All prices are subject to VAT.
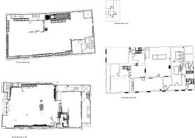
Shop - 11.17 x 20.75 (36'7" x 68'0") - Primarily used as retail space there are also changing facilities and a store room included within this space
Rear Hallway - Rear access for deliveries and staircase to upper floors
First Floor -
Store Room - 23.23 x 11.85 irregular shape (76'2" x 38'10" irr -
Second Floor - Ladies and Mens toilet facilities, staff kitchen and a range of no longer used rooms
Third Floor - Smaller area on the third floor no longer used
Basement - There is a hatch in the shop leading down to a small basement level
Vat - The property is elected for VAT
Legal Disclaimer - These particulars, whilst believed to be accurate are set out as a general outline only for guidance and do not constitute any part of an offer or contract. Intending purchasers should not rely on them as statements of
representation of fact, but must satisfy themselves by inspection or otherwise as to their accuracy. All measurements are approximate. Any details including (but not limited to): lease details, service charges, ground rents & covenant information are provided by the vendor and you should consult with your legal advisor/ satisfy yourself before proceeding. No person in this firms employment has the authority to make or give any representation or warranty in respect of the property.
Brochures
St Mary Street, Weymouth
NEAREST STATIONS
Distances are straight line measurements from the centre of the postcode- Weymouth Station0.5 miles
- Upwey Station2.8 miles
Notes
Disclaimer - Property reference 34067233. The information displayed about this property comprises a property advertisement. Rightmove.co.uk makes no warranty as to the accuracy or completeness of the advertisement or any linked or associated information, and Rightmove has no control over the content. This property advertisement does not constitute property particulars. The information is provided and maintained by Hull Gregson Hull, Weymouth. Please contact the selling agent or developer directly to obtain any information which may be available under the terms of The Energy Performance of Buildings (Certificates and Inspections) (England and Wales) Regulations 2007 or the Home Report if in relation to a residential property in Scotland.
Map data ©OpenStreetMap contributors.





