
Dovecote Cottage, Weston-On-The-Green, OX25

- PROPERTY TYPE
Semi-Detached
- BEDROOMS
2
- BATHROOMS
2
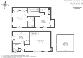
- SIZE
869 sq ft
81 sq m
- TENUREDescribes how you own a property. There are different types of tenure - freehold, leasehold, and commonhold.Read more about tenure in our glossary page.
Freehold
Key features
- Two double bedrooms, both with a shower room ensuite
- Fitted kitchen and living room with log burner
- Oak flooring downstairs; tiled flooring in the kitchen
- Gound floor WC
- Period features and a private garden
- Recently installed heating and hot water system
- Parking for up to three cars
- Oxford, Woodstock & Bicester within 8 miles
- Within a mile access to the M40 and A34
- Multiple railway stations within 6 miles
Description
This period property features two ensuite bedrooms upstairs. The downstairs benefits from a fully fitted modern kitchen, a spacious living room with a log burner and south-facing aspects, a WC next to the entrance hallway. The garden is neat, private, and off-street parking spaces for three cars
Property Details
This property is a modern conversion by Swan Hill Homes of a period stable block dating back to the 1800s, within a development of other converted period buildings in stone construction. Set within the historic village of Weston-on-the-Green, Oxfordshire, the village dates back to the 11th century and is a designated conservation area due to its special historic and architectural interest, including the nearby 15th century Weston Manor and a parish church dating back to the 13th century.
The property is configured over two floors to provide a spacious light-filled room with a log burning stove and a floor-to-ceiling height arch-shaped window overlooking the front lawn. The kitchen is fully fitted with Bosch appliances and cooker, and there is also a downstairs WC next to the entrance hallway. Upstairs there are two double bedrooms both with a shower room ensuite and built-in wardrobes. The west-facing garden features a stone patio and engineered turf, encircled by a stone wall. The front garden is laid to lawn and kept neat. Additionally, there are parking spaces for up to three cars to the side of the property, two storage sheds, a tool store, three log stores and small selection of fruit trees.
Brochures
More details from Chancellors- COUNCIL TAXA payment made to your local authority in order to pay for local services like schools, libraries, and refuse collection. The amount you pay depends on the value of the property.Read more about council Tax in our glossary page.
- Band: C
- PARKINGDetails of how and where vehicles can be parked, and any associated costs.Read more about parking in our glossary page.
- Off street
- GARDENA property has access to an outdoor space, which could be private or shared.
- Private garden
- ACCESSIBILITYHow a property has been adapted to meet the needs of vulnerable or disabled individuals.Read more about accessibility in our glossary page.
- Ask agent
Dovecote Cottage, Weston-On-The-Green, OX25
Add an important place to see how long it'd take to get there from our property listings.
__mins driving to your place
Get an instant, personalised result:
- Show sellers you’re serious
- Secure viewings faster with agents
- No impact on your credit score
Your mortgage
Notes
Staying secure when looking for property
Ensure you're up to date with our latest advice on how to avoid fraud or scams when looking for property online.
Visit our security centre to find out moreDisclaimer - Property reference 5875440. The information displayed about this property comprises a property advertisement. Rightmove.co.uk makes no warranty as to the accuracy or completeness of the advertisement or any linked or associated information, and Rightmove has no control over the content. This property advertisement does not constitute property particulars. The information is provided and maintained by Chancellors, Summertown. Please contact the selling agent or developer directly to obtain any information which may be available under the terms of The Energy Performance of Buildings (Certificates and Inspections) (England and Wales) Regulations 2007 or the Home Report if in relation to a residential property in Scotland.
*This is the average speed from the provider with the fastest broadband package available at this postcode. The average speed displayed is based on the download speeds of at least 50% of customers at peak time (8pm to 10pm). Fibre/cable services at the postcode are subject to availability and may differ between properties within a postcode. Speeds can be affected by a range of technical and environmental factors. The speed at the property may be lower than that listed above. You can check the estimated speed and confirm availability to a property prior to purchasing on the broadband provider's website. Providers may increase charges. The information is provided and maintained by Decision Technologies Limited. **This is indicative only and based on a 2-person household with multiple devices and simultaneous usage. Broadband performance is affected by multiple factors including number of occupants and devices, simultaneous usage, router range etc. For more information speak to your broadband provider.
Map data ©OpenStreetMap contributors.








