
Fullerton Drive, Byfleet, KT14

- PROPERTY TYPE
Semi-Detached
- BEDROOMS
4
- BATHROOMS
2
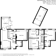
- SIZE
1,468 sq ft
136 sq m
- TENUREDescribes how you own a property. There are different types of tenure - freehold, leasehold, and commonhold.Read more about tenure in our glossary page.
Freehold
Key features
- Extended four-bedroom family home with versatile layout
- Spacious sitting room, separate dining room & large conservatory
- Modern kitchen with wood-effect worktops and good storage
- Two bathrooms – family bathroom plus separate shower room
- Generous rear garden ideal for entertaining and family life
- Detached garage plus driveway parking
- Situated in a popular residential road in Byfleet Village
- Excellent transport links with West Byfleet station (fast trains to London Waterloo) and easy access to the A3 & M25
Description
The ground floor features a welcoming entrance hall leading to a bright sitting room at the front of the property. The modern kitchen, with stylish cabinetry and wood-effect worktops, flows into a spacious dining room, perfect for family meals and entertaining. To the rear, a large conservatory opens onto the garden, creating a light-filled space that can be enjoyed year-round. A convenient cloakroom completes the downstairs accommodation.
Upstairs, there are four well-proportioned bedrooms. The principal bedroom has dual aspect windows and its own ensuite, while the further three bedrooms are served by a contemporary family bathroom.
Outside, the property sits on a wide plot with a beautifully maintained rear garden offering plenty of space for children to play, outdoor dining, and summer entertaining. To the front, there is ample driveway parking and a detached garage.
This is a versatile and welcoming home in a well-connected location, combining space, comfort, and practicality.
Brochures
Particulars- COUNCIL TAXA payment made to your local authority in order to pay for local services like schools, libraries, and refuse collection. The amount you pay depends on the value of the property.Read more about council Tax in our glossary page.
- Band: D
- PARKINGDetails of how and where vehicles can be parked, and any associated costs.Read more about parking in our glossary page.
- Yes
- GARDENA property has access to an outdoor space, which could be private or shared.
- Yes
- ACCESSIBILITYHow a property has been adapted to meet the needs of vulnerable or disabled individuals.Read more about accessibility in our glossary page.
- Ask agent
Fullerton Drive, Byfleet, KT14
Add an important place to see how long it'd take to get there from our property listings.
__mins driving to your place
Get an instant, personalised result:
- Show sellers you’re serious
- Secure viewings faster with agents
- No impact on your credit score


Your mortgage
Notes
Staying secure when looking for property
Ensure you're up to date with our latest advice on how to avoid fraud or scams when looking for property online.
Visit our security centre to find out moreDisclaimer - Property reference CWB050099. The information displayed about this property comprises a property advertisement. Rightmove.co.uk makes no warranty as to the accuracy or completeness of the advertisement or any linked or associated information, and Rightmove has no control over the content. This property advertisement does not constitute property particulars. The information is provided and maintained by Curchods Estate Agents, West Byfleet. Please contact the selling agent or developer directly to obtain any information which may be available under the terms of The Energy Performance of Buildings (Certificates and Inspections) (England and Wales) Regulations 2007 or the Home Report if in relation to a residential property in Scotland.
*This is the average speed from the provider with the fastest broadband package available at this postcode. The average speed displayed is based on the download speeds of at least 50% of customers at peak time (8pm to 10pm). Fibre/cable services at the postcode are subject to availability and may differ between properties within a postcode. Speeds can be affected by a range of technical and environmental factors. The speed at the property may be lower than that listed above. You can check the estimated speed and confirm availability to a property prior to purchasing on the broadband provider's website. Providers may increase charges. The information is provided and maintained by Decision Technologies Limited. **This is indicative only and based on a 2-person household with multiple devices and simultaneous usage. Broadband performance is affected by multiple factors including number of occupants and devices, simultaneous usage, router range etc. For more information speak to your broadband provider.
Map data ©OpenStreetMap contributors.





